€1.250.000
€1.250.000
Göra en förfrågan Kontakta

Villa · Nybyggnad Alicante - Costa Blanca · Orihuela

€1.250.000
€1.250.000
Göra en förfrågan Kontakta

Egenskaper

Sovrum: 3
Badrum: 3
Byggd: 335m2
Tomt: 936m2
Slå samman: Ja
Gated
Nära golfbana / golfresort
Private Pool
Garden
Near Schools
Double Bedrooms: 3
Number of Parking Spaces: 2
Beach: 7000 Meters
Under-Build / Basement
Parking - Space
Location: Rural, Urbanisation
Useable Build Space: 130 Msq.
Terrace: 80 Msq.
Near Commercial Center
Förvaring / Trastero
Toalett: 1
Göra en förfrågan

Beskrivning

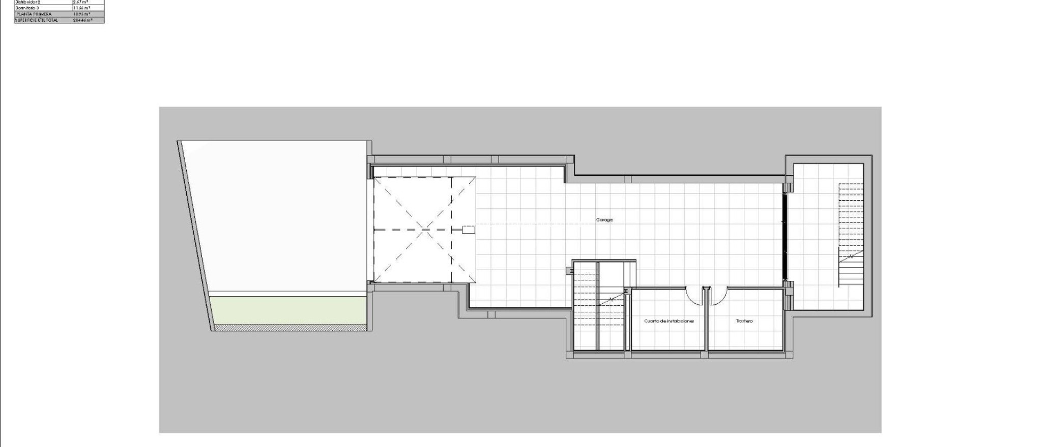
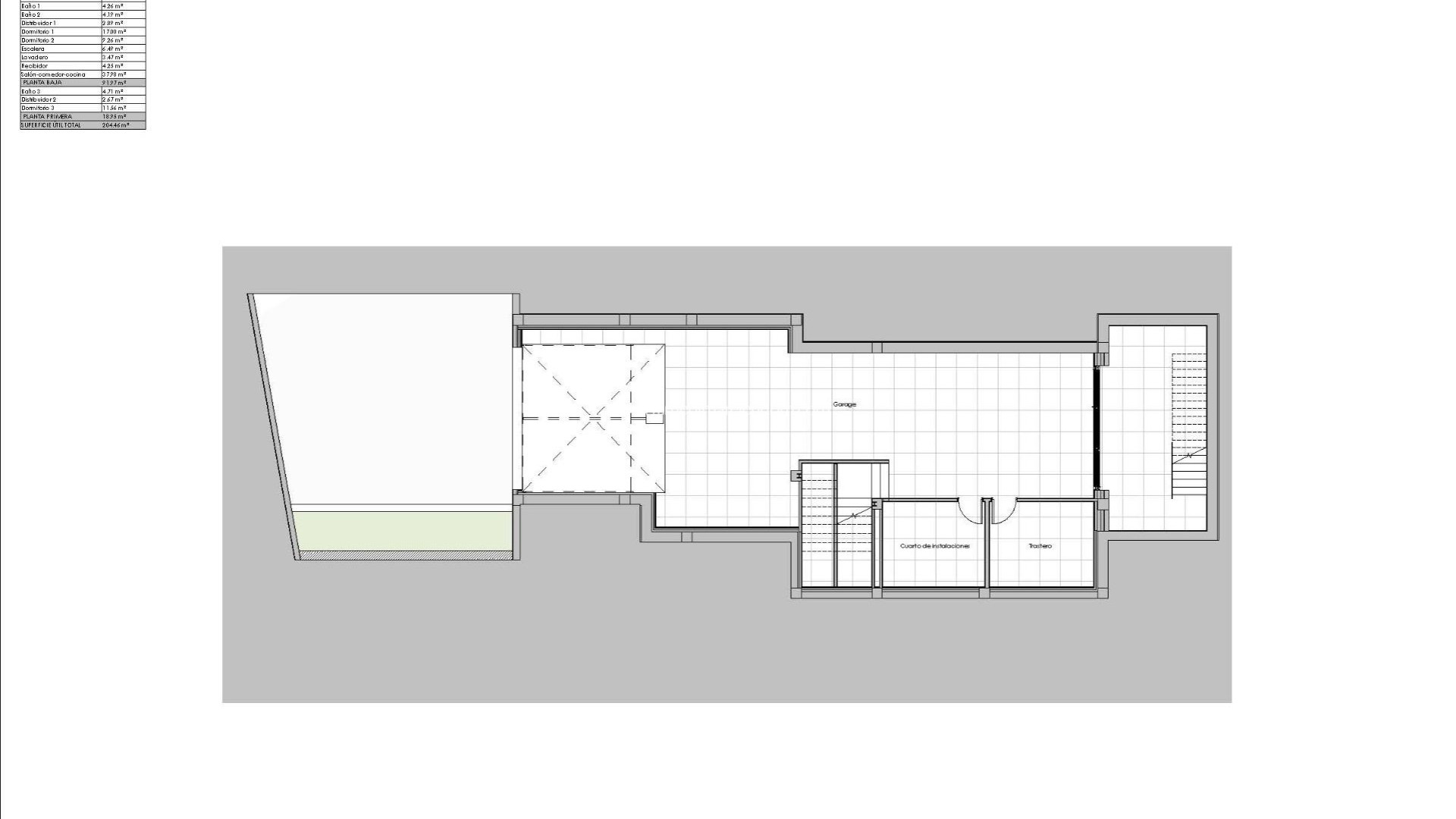
Nybyggd villa i Las Colinas Golf & Country Club, Orihuela Exklusivt läge i södra Costa Blanca Denna fantastiska nybyggda villa ligger i Las Colinas Golf & Country Club, en av de mest prestigefyllda semesterorterna i Orihuela Costa. Beläget i en grönskande dal på 330 hektar omgiven av medelhavsskog och grönområden, erbjuder området en exklusiv livsstil med maximal avskildhet. Resorten ligger bara 40 km från Alicante flygplats och 60 km från Murcia–Corvera flygplats, med vackra medelhavsstränder bara en kort bilresa bort. Modern villa med rymlig planlösning Denna villa är designad med elegans och komfort i åtanke och är fördelad på två våningar plus en källare. Den har 3 sovrum, alla med egna badrum, och en gästtoalett. På bottenvåningen finns ett öppet kök i anslutning till vardagsrummet, två sovrum och tillgång till en stor terrass med en privat 60 m2 stor pool och anlagd trädgård. På första våningen finns en privat sovrumssvit, medan källaren har ett rymligt garage för två bilar med naturligt ljus och ventilation via en engelsk uteplats. Högsta kvalitet och teknik Denna villa är byggd enligt högsta standard och har: Fullt installerad luftkonditionering Uppvärmning och varmvatten via aerotermiskt system Inbyggd LED-belysning Fullt utrustade badrum med möbler och duschväggar Kök utrustat med premiumvitvaror Hemmaautomationssystem för maximal komfort och effektivitet Resortliv och tjänster Las Colinas Golf & Country Club är internationellt erkänd för sin 18-håls golfbana, som anses vara en av de bästa i Spanien. Resorten erbjuder ett brett utbud av tjänster för boende, inklusive tennis- och padelbanor, ett modernt gym, wellness- och massagefaciliteter, gourmetrestauranger och en minimarknad med färskt bakat bröd varje dag. Med över 200 000 m2 medelhavslandskap kan boende njuta av natursköna promenader genom inhemsk flora, samt fält med apelsin- och citronlundar. Kombinationen av natur, exklusivitet och förstklassiga tjänster gör Las Colinas till en verkligt unik plats att bo på. Ditt exklusiva hem i Orihuela Costa väntar Denna villa i Las Colinas Golf är mer än en fastighet, det är en livsstil som kombinerar lyx, avskildhet och natur. Kontakta oss idag för att boka en visning och säkra ditt nya hem i en av de mest prestigefyllda resorterna på Costa Blanca South.

Plats

Kontakta oss Göra en förfrågan

Responsable del tratamiento: Mediaterrean y Mar Eindom, SL, Finalidad del tratamiento: Gestión y control de los servicios ofrecidos a través de la página Web de Servicios inmobiliarios, Envío de información a traves de newsletter y otros, Legitimación: Por consentimiento, Destinatarios: No se cederan los datos, salvo para elaborar contabilidad, Derechos de las personas interesadas: Acceder, rectificar y suprimir los datos, solicitar la portabilidad de los mismos, oponerse altratamiento y solicitar la limitación de éste, Procedencia de los datos: El Propio interesado, Información Adicional: Puede consultarse la información adicional y detallada sobre protección de datos Aquí.

© 2026 Medimar Eiendom · All rights reserved · Juridisk anteckning Privatliv Cookies Web karta

Design and CRM: Mediaelx

Göra en förfrågan WhatsApp