€339.000
€339.000
Złóż zapytanie Kontakt

Apartament · Nowo zbudowane Murcia · Los Alcazares

€339.000
€339.000
Złóż zapytanie Kontakt

Szczegóły oferty

Dodatkowe funkcje

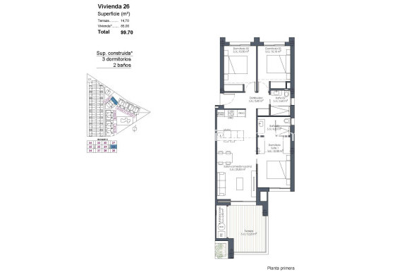
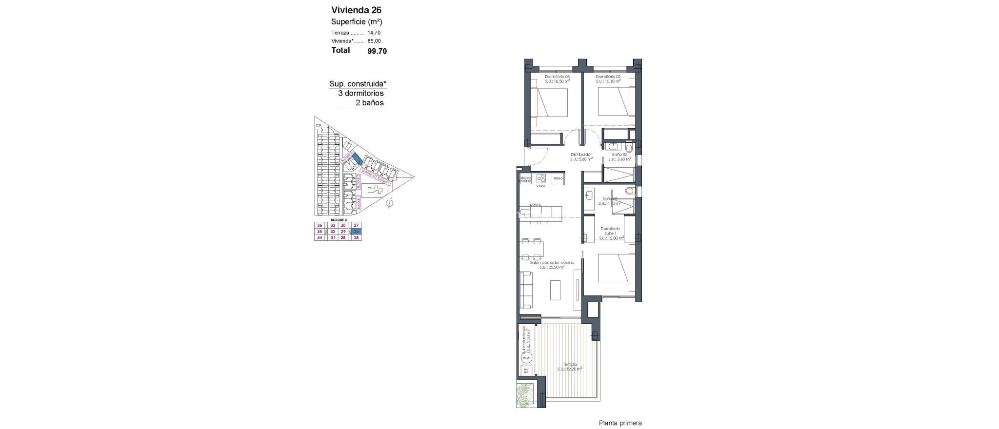
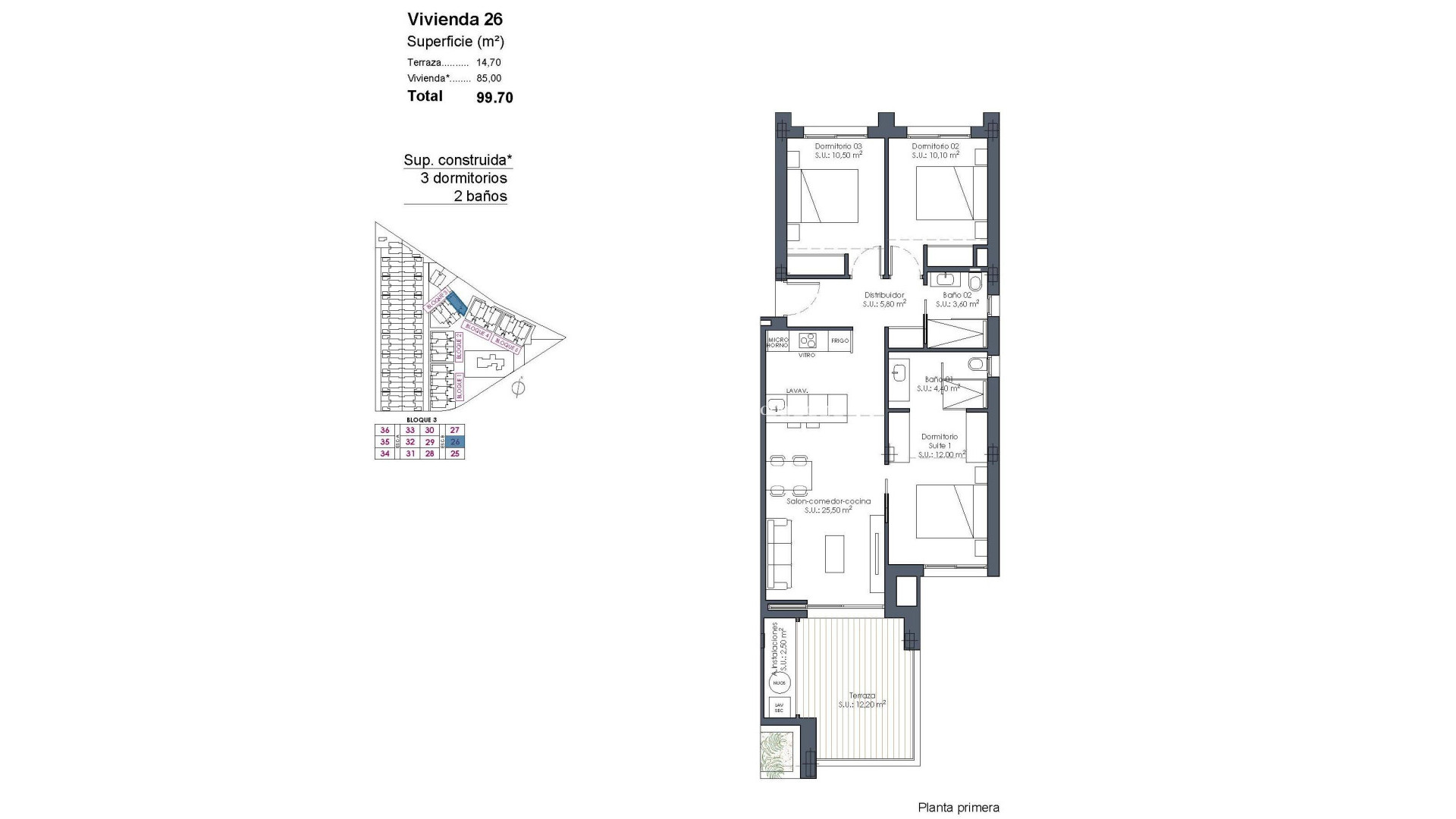
Sypialnie: 3
Łazienki: 2
Powierzchnia: 85m2
Basen: Tak
W pobliżu pola golfowego / ośrodka golfowego
Location: Coastal, Urbanisation
Winda
Near Schools
Double Bedrooms: 3
Gym
Parking - Space
Useable Build Space: 80 Msq.
Terrace: 14 Msq.
Beach: 300 Meters
Laundry Room
Near Commercial Center
Communal Pool
Gated
Number of Parking Spaces: 1
Złóż zapytanie

Opis

Nowe apartamenty w ośrodku wypoczynkowym La Serena Golf-Los Alcazares w pobliżu plaży Nowoczesne mieszkanie z widokiem na pole golfowe na wybrzeżu Costa Calida Odkryj ten ekskluzywny, nowo wybudowany ośrodek wypoczynkowy położony w La Serena Golf w Los Alcazares. Ta nowoczesna inwestycja obejmuje 66 stylowych apartamentów z 2 lub 3 sypialniami i 2 łazienkami, z których jedna jest łazienką przy sypialni, zaprojektowanych z myślą o komforcie, elegancji i wyjątkowym śródziemnomorskim stylu życia, zaledwie 300 metrów od Mar Menor. Los Alcazares to urocze nadmorskie miasteczko znane z relaksującej atmosfery, piaszczystych plaż i długiej nadmorskiej promenady. Dzięki ponad 300 słonecznym dniom w roku okolica ta oferuje idealne warunki do spędzania czasu na świeżym powietrzu, uprawiania sportów wodnych i gry w golfa. Miasteczko oferuje również szeroki wybór restauracji, sklepów, przystani i obiektów sportowych, co czyni je bardzo atrakcyjnym miejscem zarówno do zamieszkania na stałe, jak i na wakacje. Apartamenty z tarasami, ogrodami i prywatnymi solarium Kompleks mieszkaniowy oferuje kilka rodzajów nieruchomości dostosowanych do różnych stylów życia. Kupujący mogą wybierać między apartamentami na parterze z prywatnymi ogrodami, mieszkaniami na środkowych piętrach z przestronnymi tarasami lub penthouse'ami z tarasami i dużymi solarium na dachu. Solaarium wyposażone jest w prysznic na świeżym powietrzu i oferuje możliwość dodania letniej kuchni oraz prywatnego jacuzzi, tworząc idealną przestrzeń do relaksu i rozrywki, z której można podziwiać otwarty widok na pole golfowe i otaczający krajobraz. Każdy dom został zaprojektowany z jasnymi wnętrzami i otwartymi przestrzeniami mieszkalnymi, które płynnie łączą się z obszarami zewnętrznymi. Udogodnienia w stylu kurortowym i wyjątkowe przestrzenie wspólne Jedną z najbardziej charakterystycznych cech tej inwestycji jest koncepcja w stylu kurortowym. Mieszkańcy mogą korzystać ze spektakularnego basenu w stylu laguny o powierzchni około 190 m2 z dostępem w stylu plażowym i strefami relaksacyjnymi z łóżkami balijskimi. Dodatkowe udogodnienia wspólne obejmują ogrody krajobrazowe, strefę spa, siłownię i saunę znajdującą się w piwnicy. Kompleks oferuje również plac zabaw dla dzieci, dwa boiska do petanque i wspólne toalety w pobliżu basenu, tworząc przyjazne środowisko dla mieszkańców i gości. Wysokiej jakości wykończenia i nowoczesne wyposażenie Apartamenty zostały zbudowane z nowoczesnych materiałów i zgodnie z wysokimi standardami jakości, z myślą o komforcie i stylu. W pełni wyposażona kuchnia z urządzeniami w kolorze białego szkła Łazienki z szafkami pod umywalkę, kabinami prysznicowymi i podświetlanymi lustrami Zasłony okienne z napędem elektrycznym Podstawowy pakiet oświetlenia W pełni zainstalowana klimatyzacja kanałowa Podziemne miejsce parkingowe dla każdej nieruchomości Podziemny parking dla rowerów i opcjonalne pomieszczenia magazynowe Doskonała lokalizacja w pobliżu plaży i pola golfowego Plaża Mar Menor 0,3 km Pole golfowe La Serena obok inwestycji Centrum miasta Los Alcazares 2 km Kartagena 22 km Murcja 40 km Międzynarodowe lotnisko Region de Murcia 30 km Lotnisko Alicante Elche 90 km Spokojne i płytkie wody Mar Menor są idealne do pływania, żeglowania i paddle surfingu przez cały rok. Zabezpiecz swój dom w La Serena Golf Resort Te nowoczesne apartamenty łączą w sobie życie nad brzegiem morza, widoki na pole golfowe z większości mieszkań oraz udogodnienia w stylu kurortowym w jednej z najbardziej atrakcyjnych okolicy Costa Calida. Skontaktuj się z nami już dziś, aby uzyskać więcej informacji lub umówić się na wizytę i zabezpieczyć swój nowy dom w La Serena Golf-Los Alcazares.

Lokalizacja

Skontaktuj się z nami Złóż zapytanie

Responsable del tratamiento: Mediaterrean y Mar Eindom, SL, Finalidad del tratamiento: Gestión y control de los servicios ofrecidos a través de la página Web de Servicios inmobiliarios, Envío de información a traves de newsletter y otros, Legitimación: Por consentimiento, Destinatarios: No se cederan los datos, salvo para elaborar contabilidad, Derechos de las personas interesadas: Acceder, rectificar y suprimir los datos, solicitar la portabilidad de los mismos, oponerse altratamiento y solicitar la limitación de éste, Procedencia de los datos: El Propio interesado, Información Adicional: Puede consultarse la información adicional y detallada sobre protección de datos Aquí.

© 2026 Medimar Eiendom · Wszelkie prawa zastrzeżone · Nota prawna Prywatność Cookies Mapa strony

Projektowanie i CRM: Mediaelx

Złóż zapytanie WhatsApp