Íbúð · Nýbygging Murcia · Los Alcazares

Einkenni

Önnur lögun

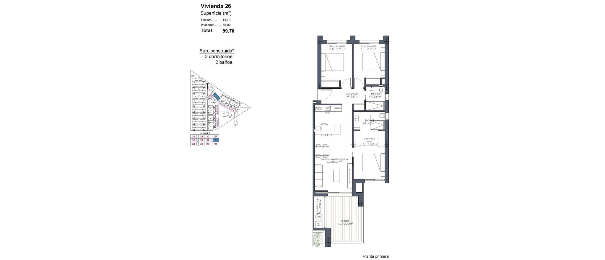
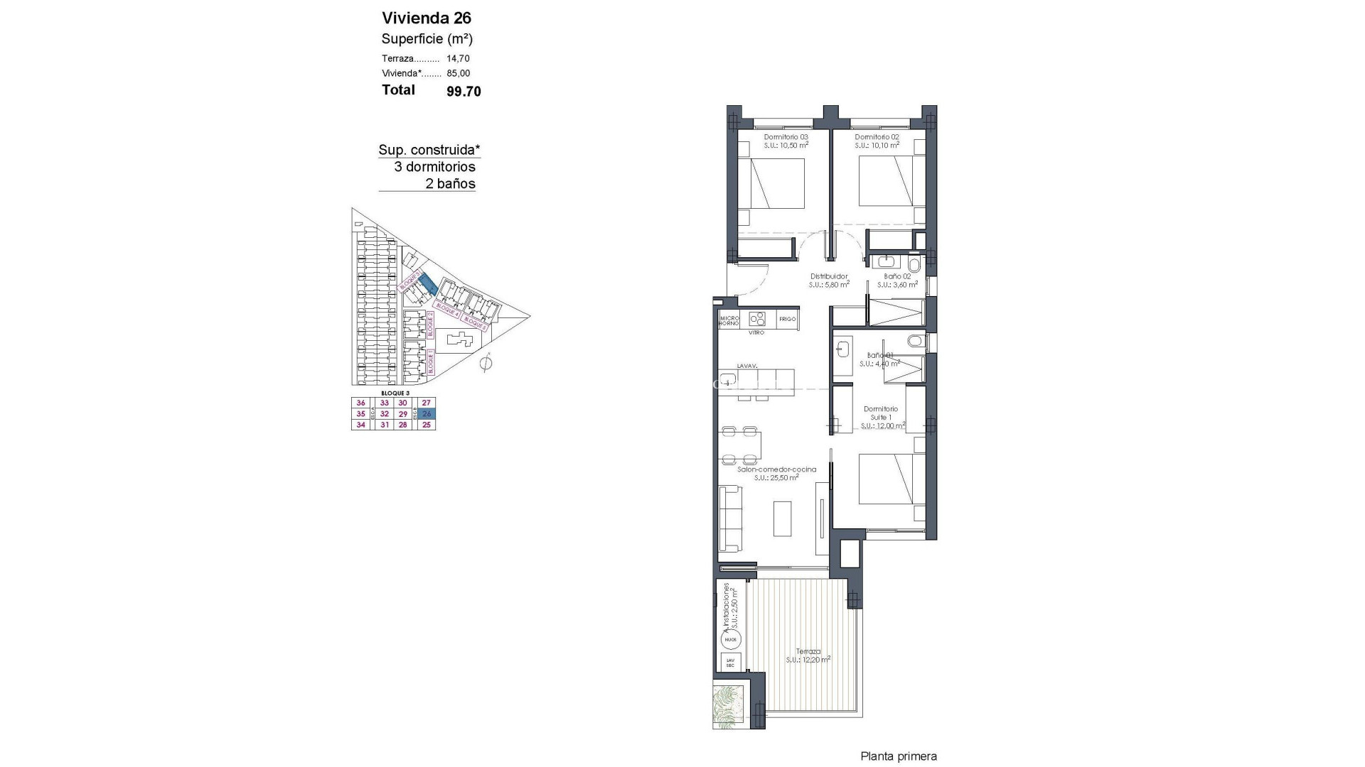
Svefnherbergi: 3
Baðherbergi: 2
Byggir: 85m2
Pool:
Communal Pool
Gated
Number of Parking Spaces: 1
Lähellä golfkenttää / golfkeskuksen kiinteistöä
Location: Coastal, Urbanisation
Lyfta/lyfta
Near Schools
Double Bedrooms: 3
Gym
Parking - Space
Useable Build Space: 80 Msq.
Terrace: 14 Msq.
Beach: 300 Meters
Laundry Room
Near Commercial Center
Gera fyrirspurn

Lýsing

Nýbyggðar íbúðir við La Serena Golf-Los Alcazares nálægt ströndinni. Nútímaleg golfíbúð við Costa Calida. Uppgötvaðu þetta einstaka nýbyggða íbúðarúrræði staðsett við La Serena Golf í Los Alcazares. Þetta nútímalega þróunarverkefni býður upp á 66 stílhreinar íbúðir með 2 eða 3 svefnherbergjum og 2 baðherbergjum, þar af eitt með sér baðherbergi, hannaðar til að bjóða upp á þægindi, glæsileika og einstakan Miðjarðarhafslífsstíl, aðeins 300 metra frá Mar Menor. Los Alcazares er heillandi strandbær þekktur fyrir afslappað andrúmsloft, sandstrendur og langa strandgöngustíga. Með meira en 300 sólskinsdaga á ári býður svæðið upp á fullkomið umhverfi fyrir útivist, vatnaíþróttir og golf. Bærinn býður einnig upp á fjölbreytt úrval af veitingastöðum, verslunum, smábátahöfnum og íþróttamannvirkjum, sem gerir hann að mjög eftirsóknarverðum áfangastað bæði fyrir fasta búsetu og frístundahús. Íbúðir með svölum, görðum og einkareknum sólarveröndum. Íbúðarkomplexið býður upp á nokkrar gerðir eigna sem henta mismunandi lífsstíl. Kaupendur geta valið á milli íbúða á jarðhæð með einkagörðum, miðhæðarhúsa með rúmgóðum svölum eða þakíbúða með svölum og stórum þaksólarveröndum. Sólbaðsstofurnar eru með útisturtu og bjóða upp á möguleika á að bæta við sumareldhúsi og einkaheitri potti, sem skapar kjörinn rými til slökunar og skemmtunar á meðan notið er útsýnis yfir golfvöllinn og nærliggjandi landslag. Hvert heimili hefur verið hannað með björtum innréttingum og opnum stofum sem tengjast óaðfinnanlega við útisvæðin. Þægindi í dvalarstaðastíl og einstök sameiginleg rými Einn helsti eiginleiki þessarar þróunar er hugmyndafræði dvalarstaðarins. Íbúar geta notið stórkostlegrar sundlaugar í lónstíl sem er um það bil 190 fermetrar með aðgangi að ströndinni og slökunarsvæðum með balískum rúmum. Önnur sameiginleg aðstaða er meðal annars landslagaður garður, heilsulind, líkamsræktarstöð og gufubað í kjallara. Í íbúðabyggðinni er einnig leiksvæði fyrir börn, tveir petanquevellir og sameiginleg salerni nálægt sundlaugarsvæðinu, sem skapar velkomið umhverfi fyrir íbúa og gesti. Vandað frágangur og nútímalegir eiginleikar Íbúðirnar eru byggðar úr nútímalegum efnum og hágæða forskriftum hannaðar með þægindi og stíl í huga. Fullbúið eldhús með hvítum glerílátum. Baðherbergi með snyrtiskápum, sturtuklefa og baklýstum speglum. Rafknúnir gluggalokar. Grunnlýsingarpakki. Fullbúið loftræstikerfi. Neðanjarðarbílastæði fyrir hverja eign. Neðanjarðarhjólastæði og geymslur (valfrjálsar). Frábær staðsetning: Nálægt ströndinni og golfvellinum í Mar Menor. 0,3 km. La Serena golfvöllur við hliðina á þróunarsvæðinu. Miðbær Los Alcazares 2 km. Cartagena 22 km. Murcia 40 km. Alþjóðaflugvöllurinn í Murcia 30 km. Alicante Elche flugvöllur 90 km. Rólegt og grunnt vatn Mar Menor er tilvalið til sunds, siglinga og standandi róðurs allt árið um kring. Tryggðu þér heimili á La Serena Golf Resort. Þessar nútímalegu íbúðir sameina strandlíf, útsýni yfir golfvöllinn frá flestum íbúðum og þægindi í dvalarstaðastíl á einu aðlaðandi svæði Costa Calida. Hafðu samband við okkur í dag til að fá frekari upplýsingar eða bóka heimsókn og tryggja þér nýja heimilið þitt í La Serena Golf-Los Alcazares.

Staðsetning

Hafðu samband við okkur Gera fyrirspurn

Responsable del tratamiento: Mediaterrean y Mar Eindom, SL, Finalidad del tratamiento: Gestión y control de los servicios ofrecidos a través de la página Web de Servicios inmobiliarios, Envío de información a traves de newsletter y otros, Legitimación: Por consentimiento, Destinatarios: No se cederan los datos, salvo para elaborar contabilidad, Derechos de las personas interesadas: Acceder, rectificar y suprimir los datos, solicitar la portabilidad de los mismos, oponerse altratamiento y solicitar la limitación de éste, Procedencia de los datos: El Propio interesado, Información Adicional: Puede consultarse la información adicional y detallada sobre protección de datos Aquí.

© 2026 Medimar Eiendom · All rights reserved · Legal athugið Privacy Cookies Web Map

Design and CRM: Mediaelx

Gera fyrirspurn WhatsApp