€378.000
€378.000
Een vraag doen Contact

Villa · Nieuw gebouw Alicante - Costa Blanca · La Romana

€378.000
€378.000
Een vraag doen Contact

Kenmerken

Extra functies

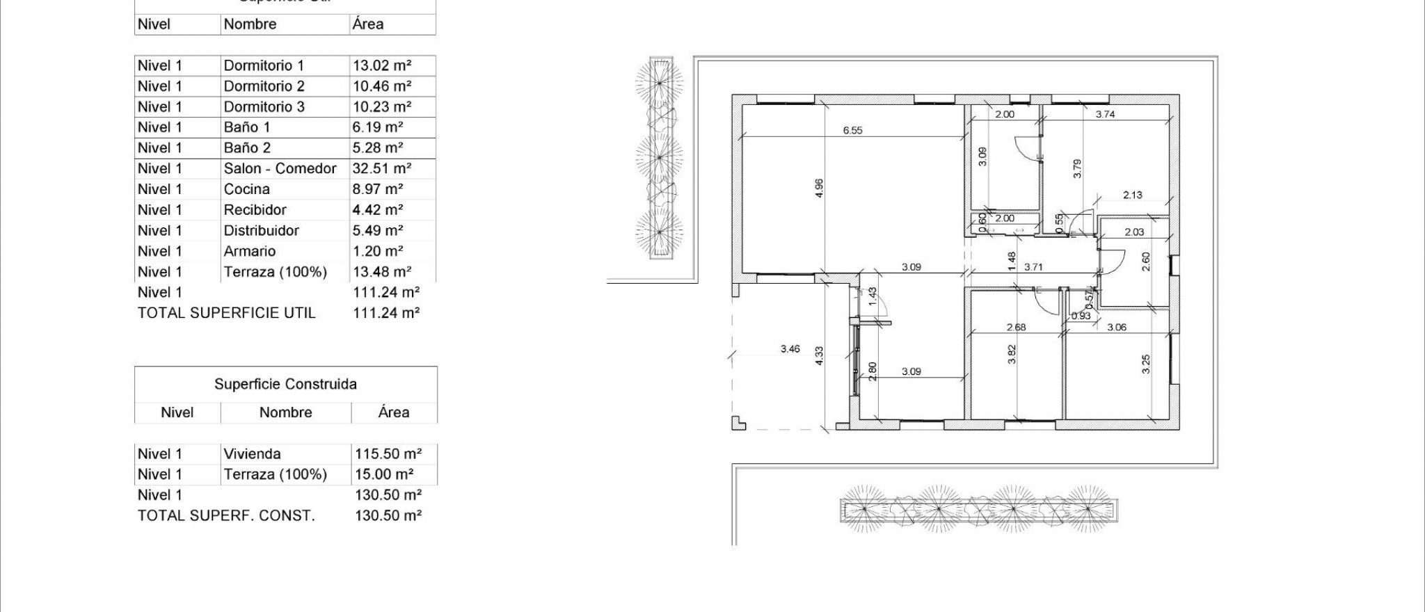
Slaapkamers: 3
Badkamers: 2
Gebouwd: 130m2
Plot: 14.569m2
Zwembad: Ja
Near Schools
Double Bedrooms: 3
Parking - Space
Useable Build Space: 110 Msq.
Terrace: 15 Msq.
Location: Rural, Mountain
Beach: 40000 Meters
Gated
Number of Parking Spaces: 1
Air Conditioning: Pre-Installed
Private Pool
Garden
Een vraag doen

Beschrijving

NIEUWBOUW VILLA'S IN LA ROMANA Nieuwbouw villa gelegen in La Romana. Gelijkvloerse villa gebouwd op het rustieke perceel van 14 569m2, heeft 3 slaapkamers en 2 badkamers, open keuken met zithoek, inbouwkasten, privézwembad en parkeerplaats. Als je op zoek bent naar een rustige omgeving, dicht bij typisch Spaanse dorpjes, omringd door bergen en op ongeveer 30 minuten van de zee, dan is dit je thuis. La Romana typisch Spaans dorp, omringd door bergen en op ongeveer 30 minuten van de zee. Villa gelegen op 30 minuten van de luchthaven van Alicante.

Plaats

Neem contact met ons op Een vraag doen

Responsable del tratamiento: Mediaterrean y Mar Eindom, SL, Finalidad del tratamiento: Gestión y control de los servicios ofrecidos a través de la página Web de Servicios inmobiliarios, Envío de información a traves de newsletter y otros, Legitimación: Por consentimiento, Destinatarios: No se cederan los datos, salvo para elaborar contabilidad, Derechos de las personas interesadas: Acceder, rectificar y suprimir los datos, solicitar la portabilidad de los mismos, oponerse altratamiento y solicitar la limitación de éste, Procedencia de los datos: El Propio interesado, Información Adicional: Puede consultarse la información adicional y detallada sobre protección de datos Aquí.

© 2026 Medimar Eiendom · All rights reserved · Colofon Privacy Cookies Web plan

Design and CRM: Mediaelx

Een vraag doen WhatsApp