€378.000
€378.000
Make an enquiry Contact

Villa · New build Alicante - Costa Blanca · La Romana

€378.000
€378.000
Make an enquiry Contact

Features

Additional Features

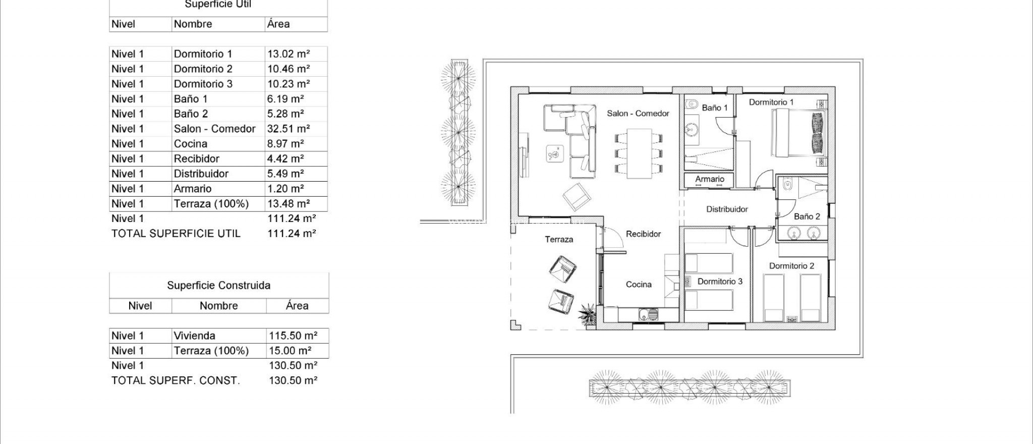
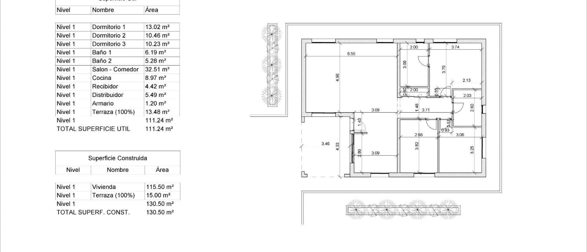
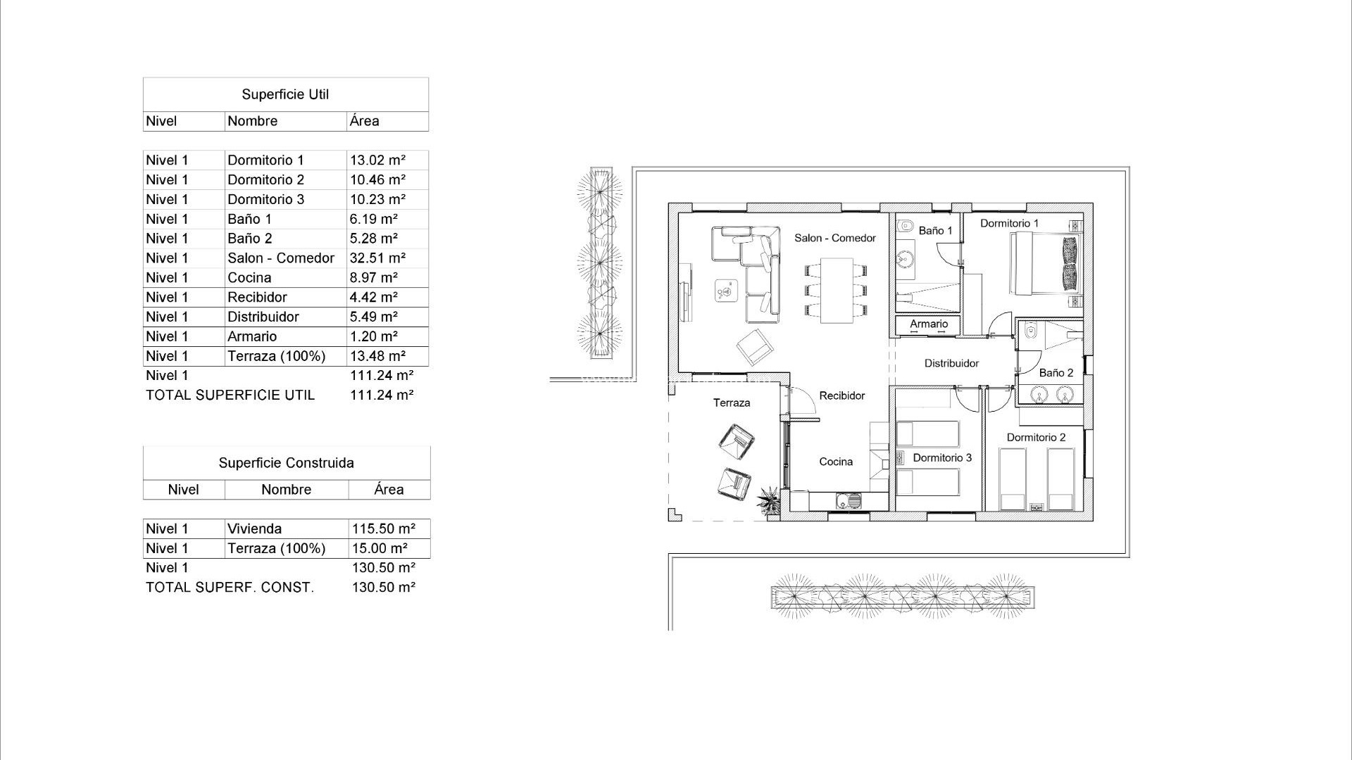
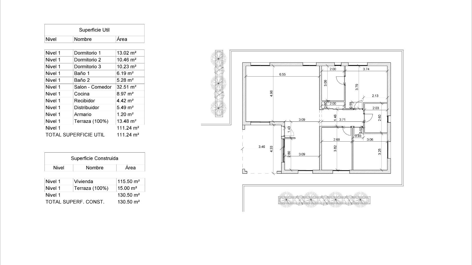
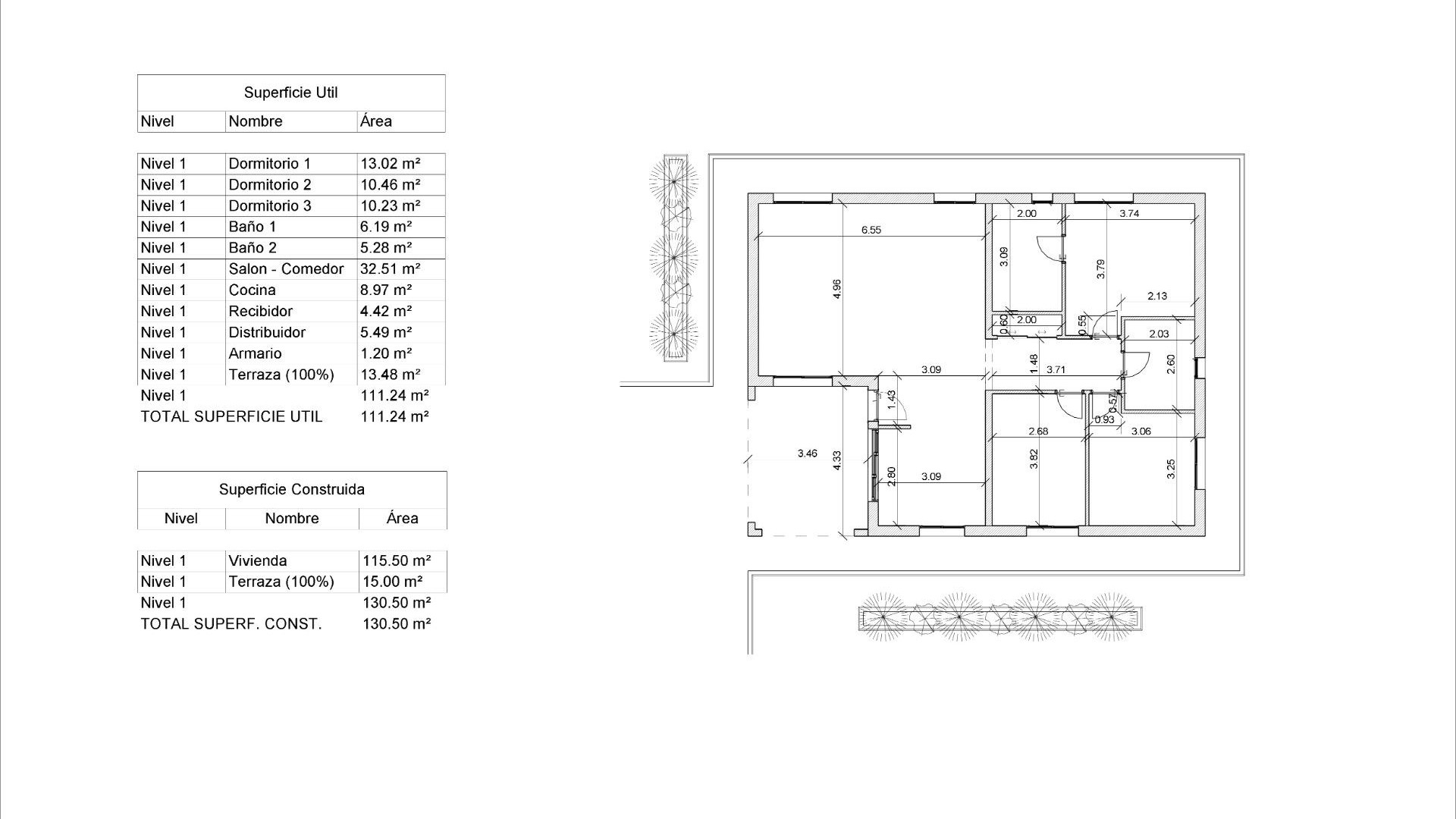
Bedrooms: 3
Bathrooms: 2
Built: 130m2
Plot: 14.569m2
Pool: Yes
Beach: 40000 Meters
Gated
Number of Parking Spaces: 1
Air Conditioning: Pre-Installed
Private Pool
Garden
Near Schools
Double Bedrooms: 3
Parking - Space
Useable Build Space: 110 Msq.
Terrace: 15 Msq.
Location: Rural, Mountain
Make an enquiry

Description

NEW BUILD VILLAS IN LA ROMANA New Build villas situated in La Romana. One level villa build on the rustic plot of 14 569m2, has 3 bedrooms and 2 bathrooms, open plan kitchen with the lounge area, fitted wardrobes, private pool and off road parking space. If you are looking for a quiet environment, close to typical Spanish villages, surrounded by mountains and about 30 minutes from the sea, this is your home. La Romana typical Spanish village, surrounded by mountains and about 30 minutes from the sea. Villa located 30 minutes from Alicante airport.

Location

Contact us Make an enquiry

Responsable del tratamiento: Mediaterrean y Mar Eindom, SL, Finalidad del tratamiento: Gestión y control de los servicios ofrecidos a través de la página Web de Servicios inmobiliarios, Envío de información a traves de newsletter y otros, Legitimación: Por consentimiento, Destinatarios: No se cederan los datos, salvo para elaborar contabilidad, Derechos de las personas interesadas: Acceder, rectificar y suprimir los datos, solicitar la portabilidad de los mismos, oponerse altratamiento y solicitar la limitación de éste, Procedencia de los datos: El Propio interesado, Información Adicional: Puede consultarse la información adicional y detallada sobre protección de datos Aquí.

© 2026 Medimar Eiendom · All rights reserved · Legal Privacy Cookies Web map

Design and CRM: Mediaelx

Make an enquiry WhatsApp