Таунхаусы · Новостройки Murcia · Torre Pacheco

Характеристики

Дополнительные возможности

спальни: 2
В ванных комнатах: 2
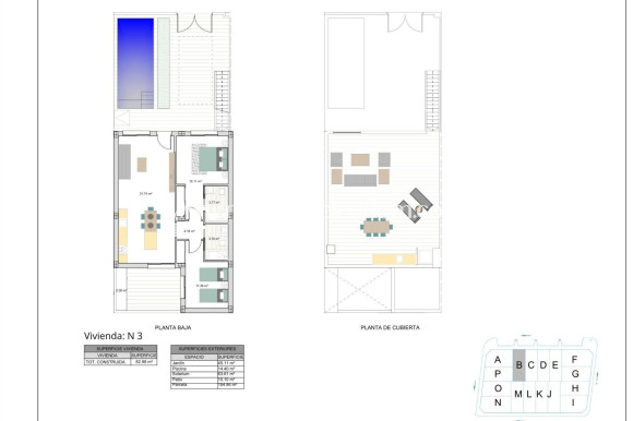
построен: 82m2
участок: 151m2
Бассейн: да
Terrace: 73 Msq.
BBQ
Parking - Space
Useable Build Space: 70 Msq.
Location: Rural, Urbanisation
Beach: 15000 Meters
Gated
Solarium: Yes
Number of Parking Spaces: 1
Рядом с гольфом / гольф-курортом
Air Conditioning: Pre-Installed
Double Bedrooms: 2
Private Pool
Garden
Near Schools
Делать запрос

Описание

Современные, недавно построенные двухквартирные дома и таунхаусы с частными бассейнами в курортном комплексе El Alba Resort-Torre Pacheco Современные дома в развивающемся средиземноморском курортном поселке Этот новый жилой комплекс состоит из 16 эксклюзивных двухквартирных домов и таунхаусов, расположенных в средиземноморском курортном комплексе El Alba в Торре-Пачеко. Эти современные дома, спроектированные как одноэтажные, представляют собой идеальное сочетание комфорта, функциональности и средиземноморского образа жизни на открытом воздухе. El Alba Resort — это перспективный жилой район, окруженный открытой сельской местностью и полями для гольфа, в непосредственной близости от города Рольдан, где вы найдете супермаркеты, рестораны, банки и все необходимое для повседневной жизни. В комплексе уже есть клуб с бассейном и рестораном, а в настоящее время ведется строительство торговой зоны, что добавит удобства и повысит ценность этого места. Одноэтажный дом с частным садом и солнечной террасой Каждый дом имеет 2 спальни и 2 ванные комнаты, одна из которых примыкает к спальне, а также кухню открытой планировки, соединенную со светлой гостиной. Планировка тщательно продумана для максимального использования естественного света и создания плавного перехода между внутренними и внешними пространствами. Все дома включают: Встроенную кухню с бытовой техникой Ванные комнаты с туалетными столиками, зеркалами, освещением и душевыми перегородками Встроенные шкафы с ящиками в спальнях Подготовка к установке канальной системы кондиционирования Внутреннее и наружное светодиодное освещение Три фотоэлектрические солнечные панели мощностью 1,5 кВт на каждый дом Открытые зоны спроектированы так, чтобы ими можно было наслаждаться круглый год: частный сад с бассейном, терраса и большая частная солнечная терраса с летней кухней, идеально подходящая для трапезы на свежем воздухе и отдыха под солнцем. Качественные решения, разработанные для комфорта и эффективности Эти дома построены со стильным и функциональным интерьером, ориентированным на энергоэффективность и современный образ жизни. На участке предусмотрено частное парковочное место, обеспечивающее удобство и безопасность. Сочетание солнечных панелей, высококачественной изоляции и продуманного дизайна создает энергоэффективный дом, идеально подходящий для постоянного проживания, отдыха или в качестве инвестиции в аренду. Отличное расположение рядом с полями для гольфа, пляжами и аэропортами Центр города Рольдан — в 2 км Пляжи Мар-Менор — в 15 км Средиземноморские пляжи — в 20 км Гольф-курорт La Torre — в 5 км Гольф-клуб Terrazas de la Torre — в 6 км Аэропорт Мурсия-Корвера — в 18 км Картахена — в 30 км Это стратегическое расположение обеспечивает легкий доступ к полям для гольфа, пляжам, инфраструктуре и транспортным развязкам, позволяя при этом наслаждаться спокойной жилой обстановкой. Умная инвестиция на побережье Коста-Калида Эти таунхаусы и дома в парной застройке в El Alba Mediterranean Resort представляют собой отличную возможность приобрести современную недвижимость с частным бассейном в быстро развивающемся районе Торре-Пачеко. Свяжитесь с нами сегодня, чтобы получить дополнительную информацию или договориться о просмотре этих эксклюзивных новостроек.

Место нахождения

Свяжитесь с нами Делать запрос

Responsable del tratamiento: Mediaterrean y Mar Eindom, SL, Finalidad del tratamiento: Gestión y control de los servicios ofrecidos a través de la página Web de Servicios inmobiliarios, Envío de información a traves de newsletter y otros, Legitimación: Por consentimiento, Destinatarios: No se cederan los datos, salvo para elaborar contabilidad, Derechos de las personas interesadas: Acceder, rectificar y suprimir los datos, solicitar la portabilidad de los mismos, oponerse altratamiento y solicitar la limitación de éste, Procedencia de los datos: El Propio interesado, Información Adicional: Puede consultarse la información adicional y detallada sobre protección de datos Aquí.
Делать запрос WhatsApp