Апартаменты · Новостройки Alicante - Costa Blanca · Torrevieja

Характеристики

Дополнительные возможности

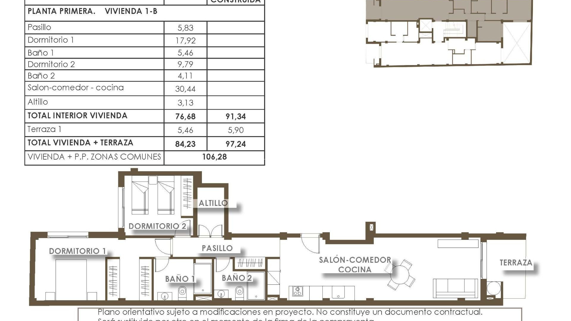
спальни: 2
В ванных комнатах: 2
построен: 91m2
Бассейн: да
Near Schools
Space
Рядом с детскими парками
Рядом с автобусным маршрутом
Useable Build Space: 76 Msq.
Местоположение: Прибрежный
Beach: 150 Meters
Terrace: 5 Msq.
Near Commercial Center
Communal Pool
Gated
Air Conditioning: Pre-Installed
Double Bedrooms: 2
Лифт/подъемник
Делать запрос

Описание

Современные новые апартаменты в центре Торревьехи

Выгодное расположение всего в 150 м от моря
Этот исключительный новый комплекс расположен в самом центре Торревьехи, всего в 150 м от природных бассейнов и набережной, и всего в 500 м от Плайя-дель-Кура. В окружении широкого спектра услуг, включая магазины, супермаркеты, парки, кафе и рестораны, этот район предлагает все необходимое в нескольких минутах ходьбы. Сочетание городских удобств и прибрежной тишины делает его одним из самых привлекательных жилых районов города.

Современные апартаменты с 1 и 2 спальнями
Комплекс предлагает современные апартаменты с 1 или 2 спальнями и 1 или 2 ванными комнатами, включая два эксклюзивных пентхауса с частным солярием, барбекю и частным бассейном. Все дома спроектированы с открытой планировкой, которая максимально использует естественное освещение, и включают просторные террасы и стильные кухни в американском стиле.
Каждая квартира включает в себя полностью оборудованную кухню с бытовой техникой, полностью оборудованные ванные комнаты с мебелью, душевыми перегородками и подогревом пола, а также внутреннее освещение. Также предусмотрена предварительная установка канального кондиционирования, обеспечивающего комфорт в течение всего года.

Привлекательные общие зоны для отдыха
Жители могут пользоваться отличными общими удобствами, предназначенными для благополучия и досуга. На первом этаже находится освежающий общий бассейн и расслабляющая сауна. На террасе на крыше есть общий солярий, идеально подходящий для принятия солнечных ванн и наслаждения средиземноморской атмосферой.

Наслаждайтесь уникальной прибрежной и природной средой
Торревьеха славится своим мягким средиземноморским климатом со средней годовой температурой 20 ºC, идеально подходящим для проживания круглый год. В городе находятся знаменитые соленые озера и охраняемый природный парк Ла-Мата и Торревьеха, расположенный всего в 4 км от комплекса. С его яркими розовыми и зелеными лагунами, живописными пешеходными маршрутами и разнообразной дикой природой, он обеспечивает здоровую и вдохновляющую природную среду.

Расстояния до основных достопримечательностей
Порт-депортиво-де-Торревьеха 1 км
Природный парк Ла-Мата 4 км
Гольф-клуб Вильямартин 8 км
Аэропорт Аликанте 45 км
Аэропорт Мурсия 60 км

Живите по-средиземноморски
Приобретите современный дом в одном из самых популярных прибрежных городов Коста-Бланки. Свяжитесь с нами сегодня, чтобы запланировать посещение и забронировать место в этом выдающемся новом комплексе.

Место нахождения

Свяжитесь с нами Делать запрос

Responsable del tratamiento: Mediaterrean y Mar Eindom, SL, Finalidad del tratamiento: Gestión y control de los servicios ofrecidos a través de la página Web de Servicios inmobiliarios, Envío de información a traves de newsletter y otros, Legitimación: Por consentimiento, Destinatarios: No se cederan los datos, salvo para elaborar contabilidad, Derechos de las personas interesadas: Acceder, rectificar y suprimir los datos, solicitar la portabilidad de los mismos, oponerse altratamiento y solicitar la limitación de éste, Procedencia de los datos: El Propio interesado, Información Adicional: Puede consultarse la información adicional y detallada sobre protección de datos Aquí.
Делать запрос WhatsApp