Виллы · Новостройки Alicante - Costa Blanca · Finestrat

Характеристики

Дополнительные возможности

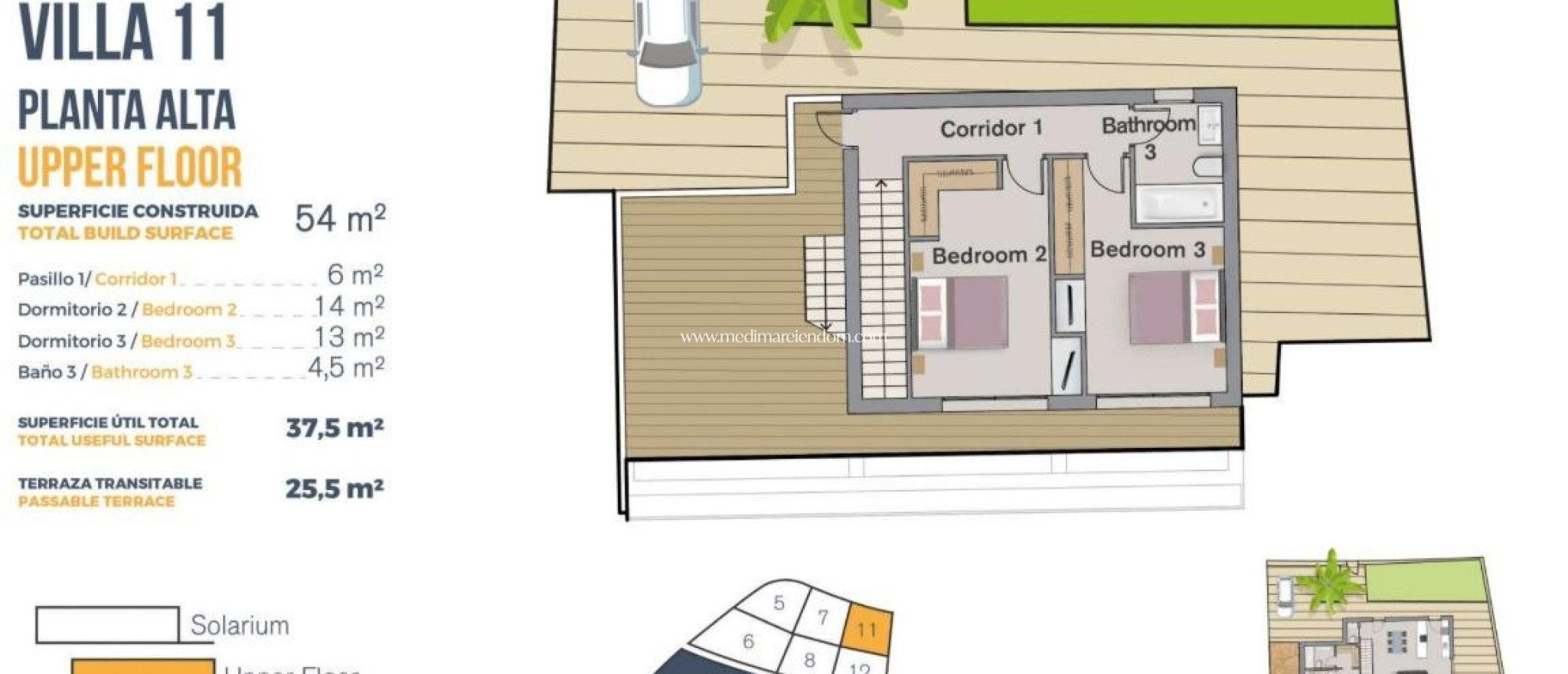
спальни: 3
В ванных комнатах: 2
построен: 107m2
участок: 346m2
Бассейн: да
Garden
Near Schools
Double Bedrooms: 3
Рядом с деревьями
Рядом с автобусным маршрутом
Parking - Space
Location: Mountain, Urbanisation
Beach: 5500 Meters
Terrace: 113 Msq.
Near Commercial Center
Солярий: 40 кв. м.
Gated
Number of Parking Spaces: 1
Рядом с гольфом / гольф-курортом
Air Conditioning: Pre-Installed
Private Pool
Делать запрос

Описание

НОВЫЕ ВИЛЛЫ В БАЛКОН ДЕ ФИНЕСТРАТ Новые современные виллы в Балкон де Финестрат. Широкие и светлые виллы с 3 спальнями и 2 ванными комнатами, кухней открытого плана с гостиной-столовой, красивой террасой, частным садом с бассейном и парковочным местом. Сочетание дерева и натурального камня делает дом современным и деревенским одновременно. Виллы расположены в 10 минутах езды от Бенидорма и всего в 2 км от Финестрата. Поездка до Tierra Mitica, где вы сможете приятно провести время с семьей, займет 6 минут. Такое расположение делает его отличным выбором для дома для отдыха. Финестрат расположен в регионе Марина Байша на побережье Коста Бланка, недалеко от соседнего Бенидорма и примерно в 40 километрах от города Аликанте и международного аэропорта. Поселок расположен на склоне горы Пуиг Кампана, откуда открывается прекрасный вид на горы, побережье и Средиземное море. Бенидорм находится всего в пяти минутах езды от комплекса и предлагает все необходимые услуги, включая магазины, бары, рестораны, супермаркеты, банки, аптеки и несколько частных международных школ. Рядом с пляжами Леванте, Поньенте и Кала де Финестрат, протяженностью более 6 км, которые являются одними из лучших в Европе и отмечены Голубым флагом Европейского Союза. Все услуги для отдыха, такие как тематические парки Aqua Natura, Terra Mítica, Terra Natura, Aqualandia и Mundomar, поля для гольфа Sierra Cortina и Villaitana, походы и скалолазание в Puig Campana в несравненной природной среде или наслаждение морскими видами спорта.

Место нахождения

Свяжитесь с нами Делать запрос

Responsable del tratamiento: Mediaterrean y Mar Eindom, SL, Finalidad del tratamiento: Gestión y control de los servicios ofrecidos a través de la página Web de Servicios inmobiliarios, Envío de información a traves de newsletter y otros, Legitimación: Por consentimiento, Destinatarios: No se cederan los datos, salvo para elaborar contabilidad, Derechos de las personas interesadas: Acceder, rectificar y suprimir los datos, solicitar la portabilidad de los mismos, oponerse altratamiento y solicitar la limitación de éste, Procedencia de los datos: El Propio interesado, Información Adicional: Puede consultarse la información adicional y detallada sobre protección de datos Aquí.
Делать запрос WhatsApp