Виллы · Новостройки Murcia - Costa Calida · Fortuna

Характеристики

Дополнительные возможности

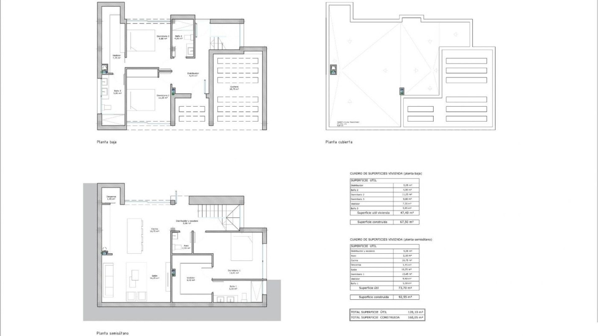
спальни: 3
В ванных комнатах: 2
построен: 146m2
участок: 365m2
Бассейн: да
Gated
Number of Parking Spaces: 1
Private Pool
Garden
Near Schools
Double Bedrooms: 3
Terrace: 20 Msq.
Parking - Space
Useable Build Space: 120 Msq.
Location: Rural
Beach: 44000 Meters
Делать запрос

Описание

НОВЫЕ ВИЛЛЫ В ФОРТУНЕ Новые виллы в Фортуне, Мурсия. Независимая двухэтажная вилла с 3 спальнями, 2 ванными комнатами, 2 гардеробными, кухней открытого плана с гостиной, гаражом, частным садом с бассейном. Город Фортуна находится менее чем в 3 км, где можно совершать ежедневные покупки, а город Мурсия - в 25 км, где есть широкий выбор гастрономических и развлекательных заведений. Климат на Коста Калида, который часто считается лучшим в Европе, позволяет вести очень общительный и здоровый образ жизни на свежем воздухе, отмеченный фантастическими спортивными и развлекательными сооружениями, с захватывающими и космополитическими туристическими городами, которые выделяются предоставлением услуг высшего класса, некоторые из них эксклюзивные, считающиеся настоящей роскошью. На Коста Калида Мурсия более 300 солнечных дней в году. Помимо полей для гольфа и пристаней для яхт, которыми вы можете наслаждаться на всем побережье, этот район также предлагает возможность катания на лыжах в близлежащей Сьерра-Неваде, рае для любителей зимних видов спорта, с прекрасными природными ландшафтами. Возможность насладиться всеми видами культурных и развлекательных предложений близлежащих столиц, таких как Мурсия и Картахена. Райский уголок с прекрасным сообщением со всей Европой. Аэропорты Аликанте-Эльче и Мурсия-Корвера расположены в часе езды.

Место нахождения

Свяжитесь с нами Делать запрос

Responsable del tratamiento: Mediaterrean y Mar Eindom, SL, Finalidad del tratamiento: Gestión y control de los servicios ofrecidos a través de la página Web de Servicios inmobiliarios, Envío de información a traves de newsletter y otros, Legitimación: Por consentimiento, Destinatarios: No se cederan los datos, salvo para elaborar contabilidad, Derechos de las personas interesadas: Acceder, rectificar y suprimir los datos, solicitar la portabilidad de los mismos, oponerse altratamiento y solicitar la limitación de éste, Procedencia de los datos: El Propio interesado, Información Adicional: Puede consultarse la información adicional y detallada sobre protección de datos Aquí.
Делать запрос WhatsApp