€660.000
€660.000
Złóż zapytanie Kontakt

Bliźniak · Nowo zbudowane Almeria · Mojacar

€660.000
€660.000
Złóż zapytanie Kontakt

Szczegóły oferty

Dodatkowe funkcje

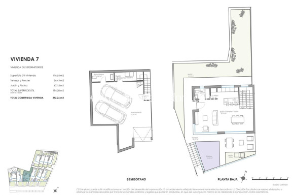
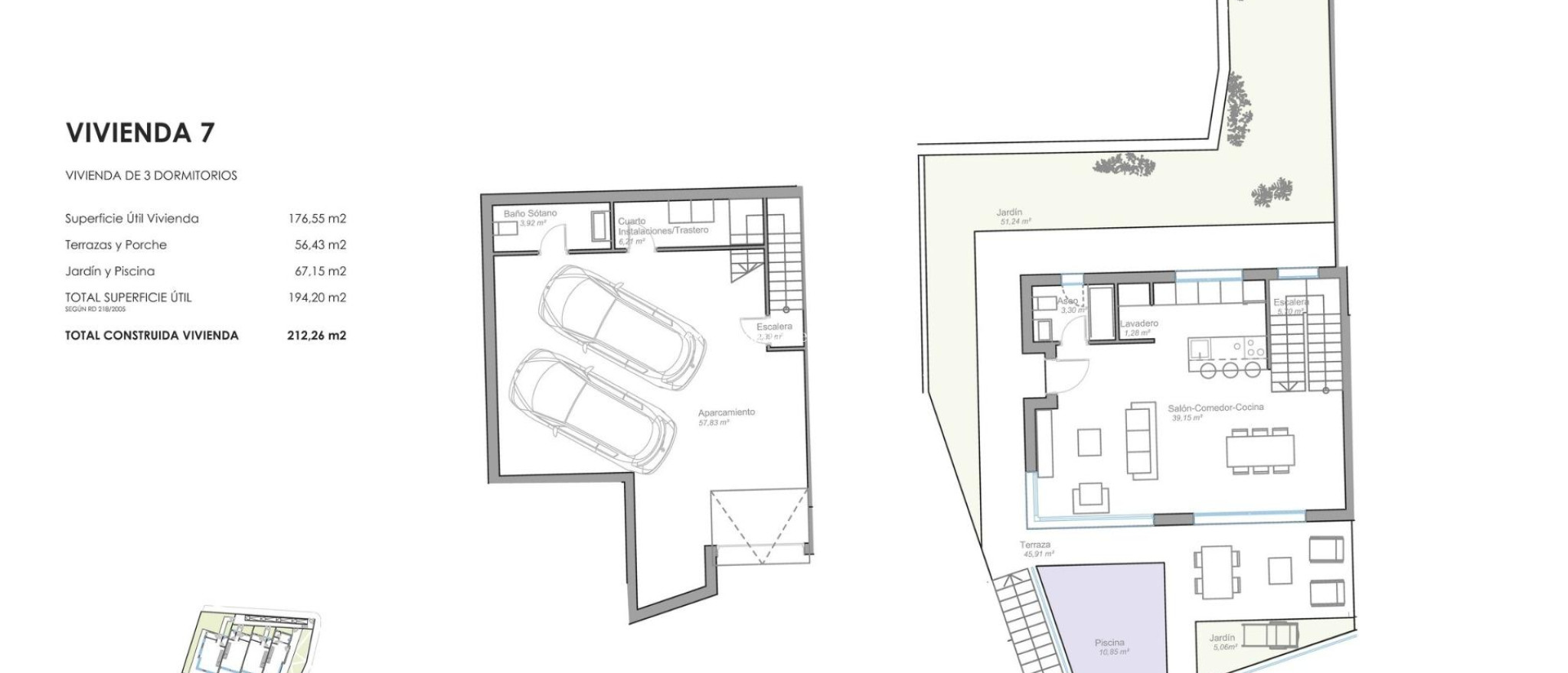
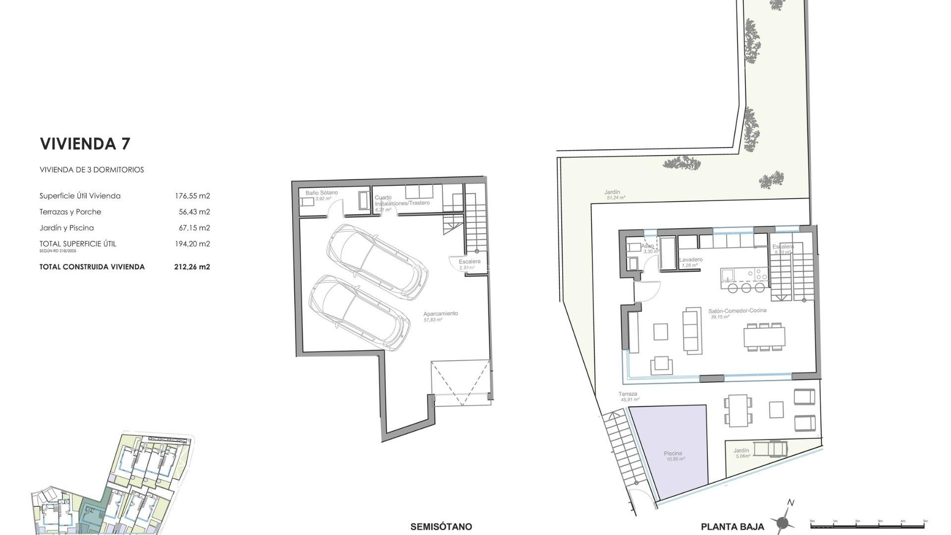
Sypialnie: 3
Łazienki: 3
Powierzchnia: 176m2
Działka: 56m2
Basen: Tak
Gated
First Line to the Sea
Location: Coastal, Urbanisation
Private Pool
Garden
Views: Sea
Near Schools
Double Bedrooms: 3
Number of Parking Spaces: 2
Parking - Space
Terrace: 55 Msq.
Beach: 30 Meters
Useable Build Space: 163 Msq.
Near Commercial Center
Przechowywanie / Trastero
Toaleta: 1
Złóż zapytanie

Opis

Ekskluzywne nowe domy nad brzegiem morza na sprzedaż w Mojácar, Costa de Almería

Butikowe mieszkania nad brzegiem morza w jednej z najbardziej pożądanych lokalizacji w Mojácar
Odkryj wyjątkową butikową inwestycję mieszkaniową składającą się z zaledwie 10 ekskluzywnych domów położonych nad brzegiem morza w dzielnicy La Mena w Mojácar. Ta wyjątkowa lokalizacja oferuje bezpośredni dostęp przez Paseo del Mediterraneo do złotych piasków i krystalicznie czystych wód Morza Śródziemnego. Otoczona klubami plażowymi, restauracjami i spokojną nadmorską atmosferą, okolica ta jest idealna dla osób poszukujących wyrafinowanego stylu życia nad morzem. Mojácar Playa i Parador de Mojácar znajdują się zaledwie 3 km od hotelu, oferując szeroki wachlarz usług, rozrywki i piękno przyrody.

Eleganckie domy zaprojektowane z myślą o komforcie i widokach na morze
Ta wyjątkowa inwestycja oferuje nieruchomości z trzema sypialniami i trzema łazienkami, dostępne w dwóch konfiguracjach. Nabywcy mogą wybierać spośród czterech domów szeregowych z prywatnym solarium i opcjonalnym jacuzzi lub sześciu domów bliźniaczych, każdy z własnym prywatnym basenem. Wszystkie domy posiadają duży garaż podziemny na dwa samochody, przestronne tarasy i obszerne ogrody, które maksymalizują przyjemność z przebywania na świeżym powietrzu i podziwiania widoków na morze.

Wysokiej jakości specyfikacje i opcje personalizacji
Każda nieruchomość jest wyposażona w w pełni zainstalowany system klimatyzacji aerotermicznej, zapewniający maksymalną efektywność energetyczną i komfort przez cały rok. Kuchnie są nieumeblowane, co pozwala właścicielom na personalizację ich wystroju, a kompletny projekt dekoracji jest wliczony w cenę. Dodatkowe funkcje obejmują preinstalację technologii smart home, wzmocnione drzwi wejściowe oraz wysokiej jakości materiały budowlane, które zwiększają bezpieczeństwo, estetykę i trwałość.

Doskonała lokalizacja z doskonałym połączeniem komunikacyjnym
Położona w spokojnej okolicy nad brzegiem morza, inwestycja zapewnia dogodny dostęp do kluczowych miejsc wzdłuż wybrzeża Costa de Almería. Mojácar Pueblo, z malowniczymi bielonymi uliczkami, znajduje się w odległości krótkiej przejażdżki samochodem. Popularne atrakcje turystyczne to:
Mojácar Playa 3 km
Parador de Mojácar 3 km
Marina de Garrucha 12 km
Pole golfowe Marina Golf 6 km
Lotnisko w Almerii 80 km
Lotnisko w Murcji Corvera 150 km

Zabezpiecz sobie dom przy plaży w Mojácar
Doświadcz stylu życia, w którym morze staje się częścią codziennej rutyny, a luksus łączy się z nadmorską spokojnością. Niezależnie od tego, czy szukasz miejsca na wakacje, stałego miejsca zamieszkania, czy ekskluzywnej inwestycji, ta butikowa inwestycja nad brzegiem morza oferuje niezrównaną wartość. Skontaktuj się z nami już dziś, aby otrzymać dodatkowe informacje lub umówić się na oglądanie nieruchomości.

Lokalizacja

Skontaktuj się z nami Złóż zapytanie

Responsable del tratamiento: Mediaterrean y Mar Eindom, SL, Finalidad del tratamiento: Gestión y control de los servicios ofrecidos a través de la página Web de Servicios inmobiliarios, Envío de información a traves de newsletter y otros, Legitimación: Por consentimiento, Destinatarios: No se cederan los datos, salvo para elaborar contabilidad, Derechos de las personas interesadas: Acceder, rectificar y suprimir los datos, solicitar la portabilidad de los mismos, oponerse altratamiento y solicitar la limitación de éste, Procedencia de los datos: El Propio interesado, Información Adicional: Puede consultarse la información adicional y detallada sobre protección de datos Aquí.

© 2026 Medimar Eiendom · Wszelkie prawa zastrzeżone · Nota prawna Prywatność Cookies Mapa strony

Projektowanie i CRM: Mediaelx

Złóż zapytanie WhatsApp