€1.700.000
€1.700.000
Złóż zapytanie Kontakt

Willa · Nowo zbudowane Alicante - Costa Blanca · Orihuela Costa

€1.700.000
€1.700.000
Złóż zapytanie Kontakt

Szczegóły oferty

Dodatkowe funkcje

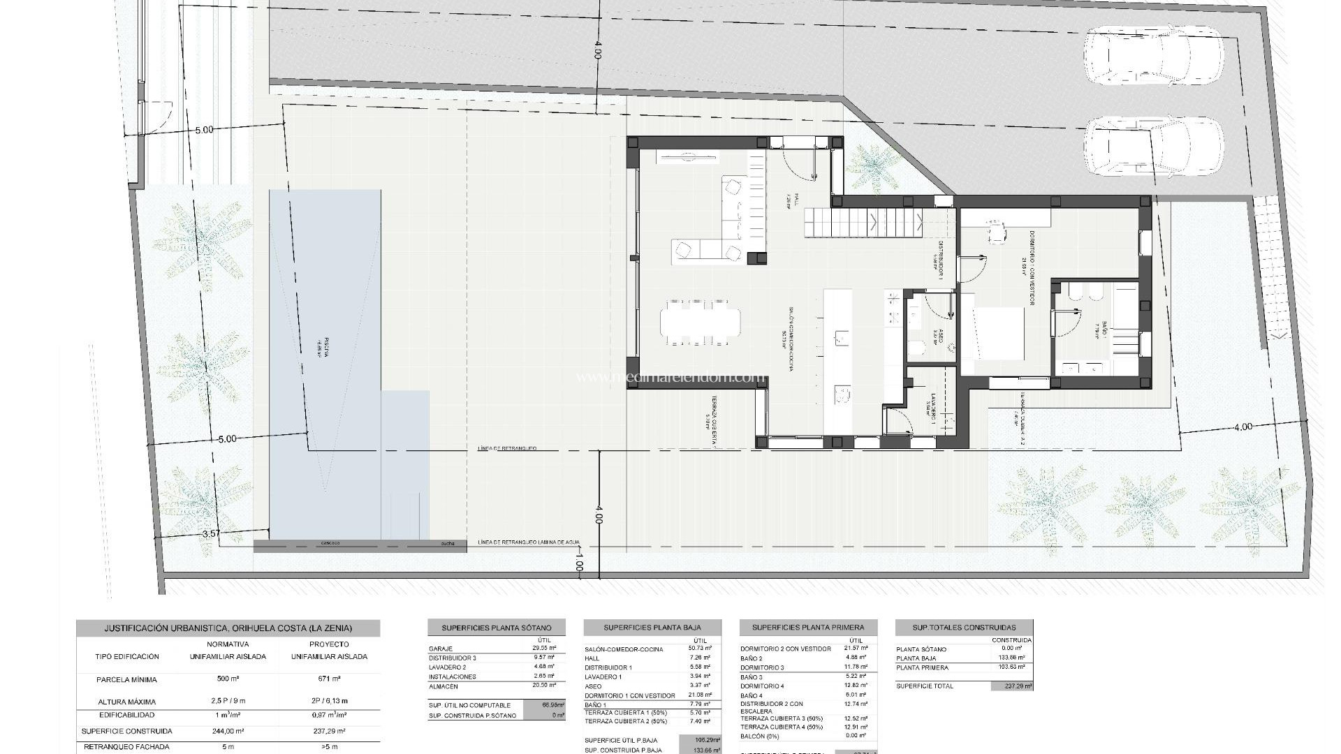
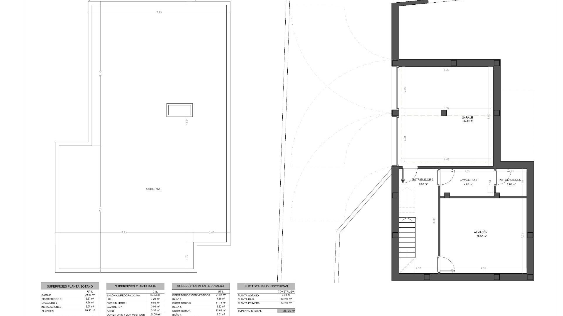
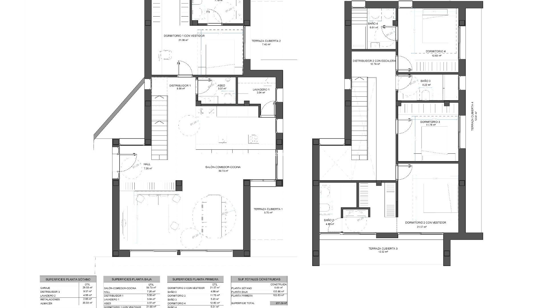
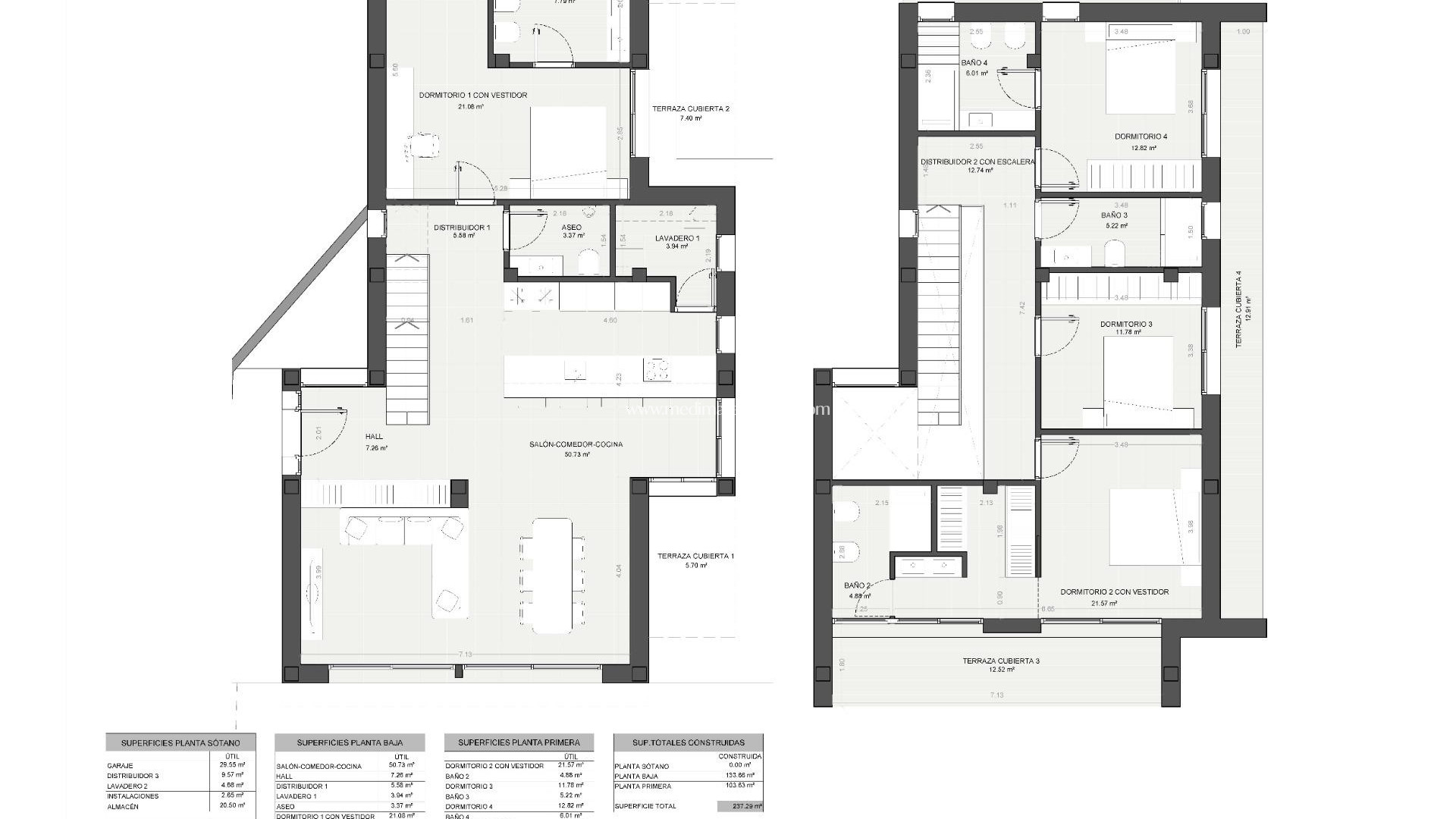
Sypialnie: 4
Łazienki: 4
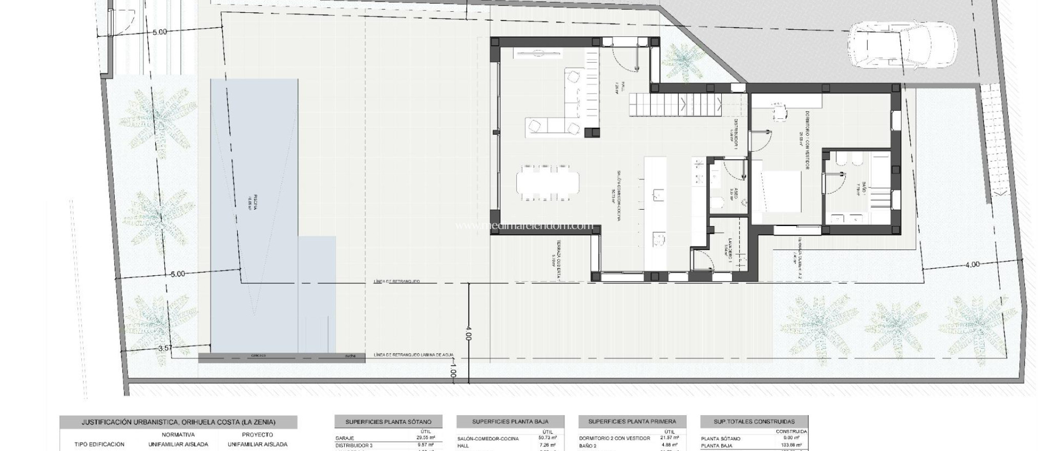
Powierzchnia: 237m2
Działka: 671m2
Basen: Tak
W pobliżu drzew
W pobliżu trasy autobusowej
Under-Build / Basement
Beach: 600 Meters
Terrace: 75 Msq.
Near Commercial Center
Parking - Miejsce - Garaż - Podwójny garaż
Powierzchnia użytkowa: 193 mkw.
Przechowywanie / Trastero
Toaleta: 1
Gated
W pobliżu pola golfowego / ośrodka golfowego
Location: Coastal, Urbanisation
Air Conditioning: Pre-Installed
Private Pool
Garden
Near Schools
Double Bedrooms: 4
Number of Parking Spaces: 2
Złóż zapytanie

Opis

Nowa luksusowa willa na sprzedaż w La Zenia, Orihuela Costa Ekskluzywne życie blisko plaży na Costa Blanca Położona zaledwie 600 m od piaszczystych plaż La Zenia, ta imponująca luksusowa willa w Orihuela Costa oferuje idealną równowagę między komfortem, designem i śródziemnomorskim stylem życia. Dzięki 4 przestronnym sypialniom, każda z własną łazienką, a także toalecie dla gości, dom ten jest idealny dla rodzin lub osób poszukujących przestronnego miejsca na wakacje nad morzem. Najwyższej jakości wykończenie i cechy zewnętrzne Położona na dużej prywatnej działce o powierzchni 670 m2, willa została zaprojektowana z dbałością o najwyższą jakość wykończenia i detale. Oferuje: Orientacja południowo-południowo-wschodnia zapewniająca optymalny dostęp do naturalnego światła Duży prywatny basen Prywatny podziemny garaż z miejscem na 2 samochody oraz parking naziemny na kilka dodatkowych pojazdów. Piękny ogród krajobrazowy idealny do spędzania czasu na świeżym powietrzu Ta nieruchomość pozwala cieszyć się słonecznym klimatem Costa Blanca przez cały rok. Doskonała lokalizacja w La Zenia La Zenia to bardzo popularna dzielnica mieszkaniowa w Orihuela Costa, znana z tętniącej życiem społeczności, całorocznych usług i bliskości plaży. Mieszkańcy mają dostęp do: Centrum handlowe La Zenia Boulevard: 2,5 km Pole golfowe Villamartín: 4,5 km Centrum Torrevieja: 9 km Lotnisko w Alicante: 40 km Lotnisko Murcia-Corvera: 60 km Otoczona restauracjami, barami, międzynarodowymi szkołami i supermarketami, La Zenia jest jedną z najbardziej dynamicznych dzielnic południowej Costa Blanca. Zabezpiecz sobie willę swoich marzeń w La Zenia Niezależnie od tego, czy szukasz luksusowej rezydencji rodzinnej, czy też wysokiej jakości inwestycji na wybrzeżu Morza Śródziemnego, ta willa jest wyjątkową okazją. Skontaktuj się z nami już dziś, aby uzyskać więcej informacji, umówić się na wizytę i zrealizować marzenie o własnym domu, zanim będzie za późno.

Lokalizacja

Skontaktuj się z nami Złóż zapytanie

Responsable del tratamiento: Mediaterrean y Mar Eindom, SL, Finalidad del tratamiento: Gestión y control de los servicios ofrecidos a través de la página Web de Servicios inmobiliarios, Envío de información a traves de newsletter y otros, Legitimación: Por consentimiento, Destinatarios: No se cederan los datos, salvo para elaborar contabilidad, Derechos de las personas interesadas: Acceder, rectificar y suprimir los datos, solicitar la portabilidad de los mismos, oponerse altratamiento y solicitar la limitación de éste, Procedencia de los datos: El Propio interesado, Información Adicional: Puede consultarse la información adicional y detallada sobre protección de datos Aquí.

© 2026 Medimar Eiendom · Wszelkie prawa zastrzeżone · Nota prawna Prywatność Cookies Mapa strony

Projektowanie i CRM: Mediaelx

Złóż zapytanie WhatsApp