€1.100.000
€1.100.000
Een vraag doen Contact

Villa · Nieuw gebouw Almeria · Mojacar

€1.100.000
€1.100.000
Een vraag doen Contact

Kenmerken

Extra functies

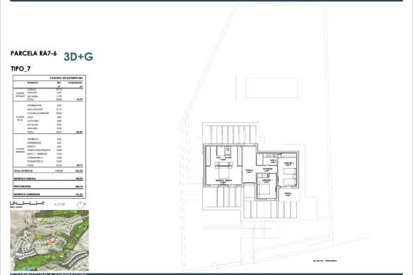
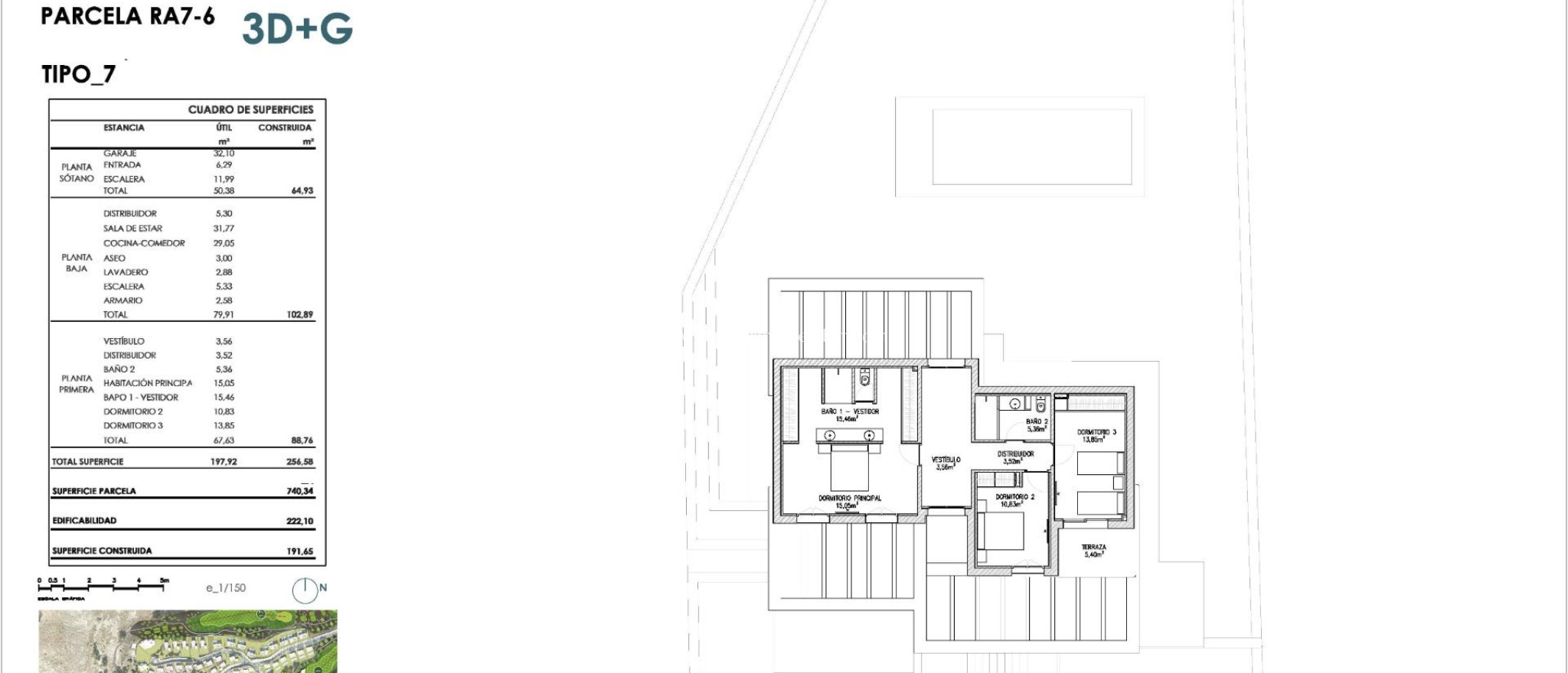
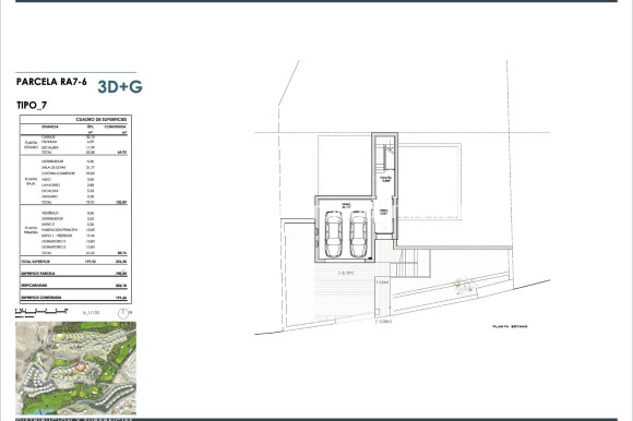
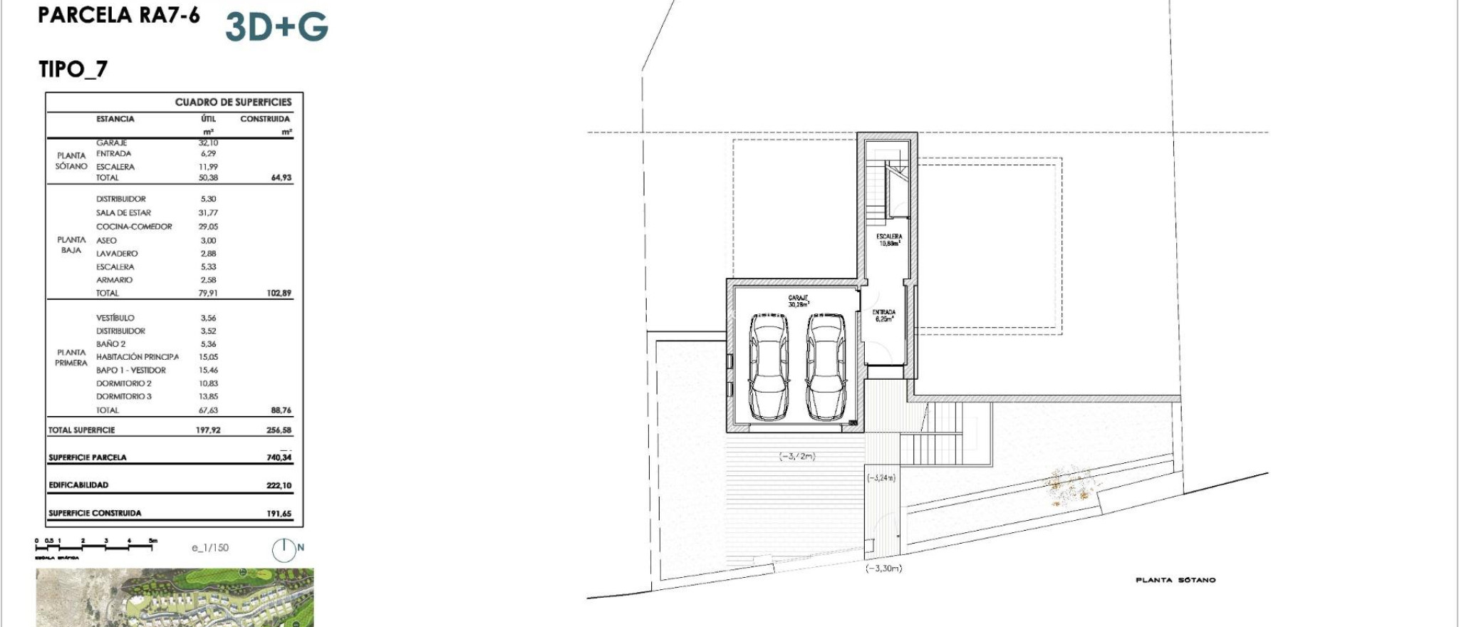
Slaapkamers: 3
Badkamers: 2
Gebouwd: 255m2
Plot: 740m2
Zwembad: Ja
Private Pool
Garden
Near Schools
Double Bedrooms: 3
Number of Parking Spaces: 2
Parking - Space
Beach: 200 Meters
Terrace: 95 Msq.
Useable Build Space: 197 Msq.
Near Commercial Center
Toilet: 1
Gated
Dichtbij golfbaan / golfbaan
Location: Coastal, Urbanisation
Een vraag doen

Beschrijving

Duurzame mediterrane villa's te koop in Macenas, Almería Ervaar de essentie van het mediterrane leven met dit nieuwe project van exclusieve villa's in Macenas, Almería. Gelegen in een omheind resort op slechts 600 meter van het strand en omgeven door ongerepte natuur, zijn deze woningen perfect voor wie op zoek is naar ontspanning, elegantie en duurzaamheid aan zee. Exclusief resortleven aan de Middellandse Zee Dit nieuwe woonproject biedt vrijstaande villa's met 3 of 4 slaapkamers op ruime percelen. Gelegen in een privéresort aan de kust van Almería, beschikt elke woning over royale terrassen met prachtig uitzicht op zee of de golfbaan, ideaal om het hele jaar door te genieten van het milde klimaat. Het resort ligt op slechts 6 km van Mojácar Pueblo, een charmant dorpje dat bekend staat om zijn witgekalkte huizen en cultureel erfgoed. Modern design met mediterrane flair Deze villa's combineren hedendaagse architectuur met traditionele mediterrane accenten en gaan naadloos op in het natuurlijke landschap van Macenas. Het project is gebouwd met duurzame materialen en een waterarm landschap en promoot een milieubewuste levensstijl. Er zijn ook plannen voor een toekomstige 18-holes golfbaan die geïntegreerd is in de omgeving, wat een meerwaarde op lange termijn betekent voor de gemeenschap. Premium voorzieningen en hoogrendementssystemen Elke villa is voorzien van een volledig uitgeruste, aanpasbare SANTOS-keuken met hoogwaardige apparatuur. De klimaatregeling wordt verzorgd door airconditioning met luchtkanalen en vloerverwarming op basis van een energiezuinig aerothermisch systeem. Het Airzone smart zoning-systeem zorgt voor maximaal thermisch comfort in de hele woning. Extra voorzieningen zijn onder meer: Technal aluminium buitenschrijnwerk met thermische onderbreking Gemotoriseerde verstelbare aluminium luiken Privézwembad van 7,5 m x 3,2 m Gelakte aluminium pergola Optionele extra's zoals open haard, zomerkeuken en op maat gemaakte meubelpakketten Toplocatie en bezienswaardigheden in de buurt Strand van Macenas – 600 m Mojácar Pueblo – 6 km Marina de la Torre Golf – 9 km Natuurpark Cabo de Gata – 30 km Stad Almería – 88 km Luchthaven Almería – 77 km Uw mediterrane toevluchtsoord wacht op u Of u nu op zoek bent naar een permanente woning, een vakantiehuis of een solide investering, deze duurzame mediterrane villa's in Macenas bieden een ongeëvenaarde levensstijl aan de kust van Almería. Neem vandaag nog contact met ons op voor meer informatie of om een bezoek te plannen.

Plaats

Neem contact met ons op Een vraag doen

Responsable del tratamiento: Mediaterrean y Mar Eindom, SL, Finalidad del tratamiento: Gestión y control de los servicios ofrecidos a través de la página Web de Servicios inmobiliarios, Envío de información a traves de newsletter y otros, Legitimación: Por consentimiento, Destinatarios: No se cederan los datos, salvo para elaborar contabilidad, Derechos de las personas interesadas: Acceder, rectificar y suprimir los datos, solicitar la portabilidad de los mismos, oponerse altratamiento y solicitar la limitación de éste, Procedencia de los datos: El Propio interesado, Información Adicional: Puede consultarse la información adicional y detallada sobre protección de datos Aquí.

© 2026 Medimar Eiendom · All rights reserved · Colofon Privacy Cookies Web plan

Design and CRM: Mediaelx

Een vraag doen WhatsApp