RAÐHÚS · Nýbygging Murcia · Torre Pacheco

Einkenni

Önnur lögun

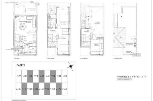
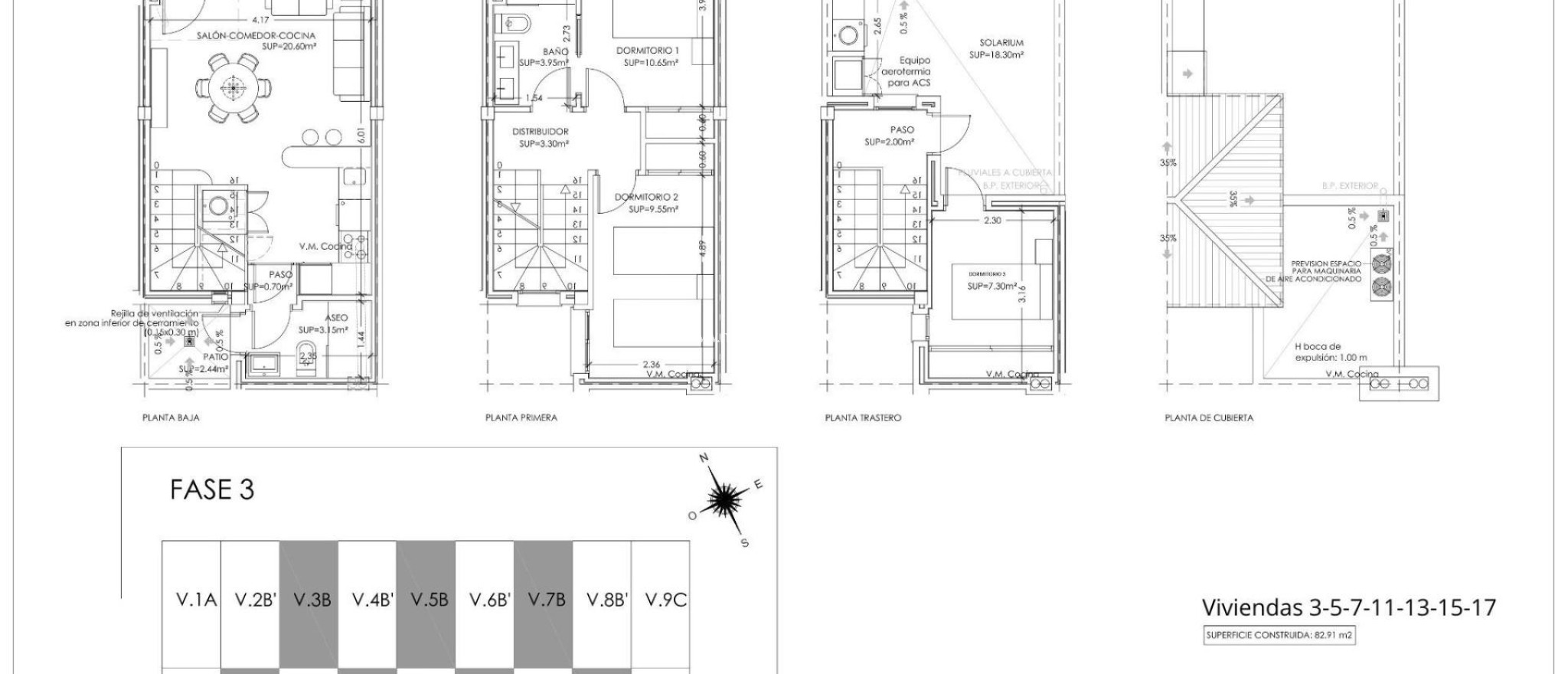
Svefnherbergi: 3
Baðherbergi: 2
Byggir: 82m2
Pool:
Parking - Space
Location: Rural, Urbanisation
Patio
Terrace: 24 Msq.
Geymsla / Geymsla
Strönd: 4200 metrar
Communal Pool
Gated
Solarium: Yes
Number of Parking Spaces: 1
Air Conditioning: Pre-Installed
Garden
Near Schools
Useable Build Space: 75 Msq.
Double Bedrooms: 3
Lähellä puita
BBQ
Gera fyrirspurn

Lýsing

Nútímaleg raðhús nálægt golfvöllum í Santa Rosalia-Murcia Nýbyggð hús í friðsælu þorpi Uppgötvaðu þetta aðlaðandi nýja þróun nútímalegra raðhúsa staðsett í heillandi þorpinu Santa Rosalia í Murcia-héraði. Umkringt nokkrum af virtustu golfvöllum svæðisins og aðeins stuttri akstursfjarlægð frá ströndum Mar Menor, býður þessi staðsetning upp á fullkomna blöndu af ró, þægindum og útivist. Santa Rosalia er hefðbundið spænskt þorp með velkomnu andrúmslofti, þar sem íbúar geta notið góðs af verslunum, matvöruverslun, börum og veitingastöðum, þar á meðal vinsæla La Almazara. Stefnumótandi staðsetning þess milli Roda Golf, Mar Menor Golf og Los Alcazares gerir það mjög eftirsóknarvert bæði fyrir fasta búsetu og frístundahús. Stílhrein raðhús með sólstofu og útiveru Þróunin samanstendur af 18 nútímalegum raðhúsum með 2 eða 3 svefnherbergjum og 2 baðherbergjum, hönnuð með nútímalegu opnu skipulagi. Hvert hús er með bjarta stofu og borðstofu sem tengist fullbúnu eldhúsi með tækjum, sem skapar hagnýtt og þægilegt íbúðarrými. Allar eignirnar eru með sérþakverönd með sumareldhúsi, tilvalið til að njóta Miðjarðarhafsloftslagsins, skemmta gestum eða slaka á utandyra allt árið um kring. Að auki býr hver íbúð yfir einkabílastæði og geymslu í sameiginlegri bílakjallara. Vandaðar frágangur og nútímalegir eiginleikar Þessi heimili eru byggð úr hágæða efnum og hönnuð til að bjóða upp á þægindi og orkunýtingu. Meðal eiginleika eru heitt vatn, foruppsetning á loftkælingu og fullbúin baðherbergi með húsgögnum, speglum og sturtuklefa. Þróunin inniheldur einnig sameiginlega sundlaug, sem býður upp á fullkomið rými til að slaka á og njóta sólríkra daga í friðsælu umhverfi. Frábær staðsetning nálægt golfvelli og sjónum Santa Rosalia er staðsett á kjörnum stað aðeins 4,5 km frá ströndum Los Alcazares, þekkt fyrir kyrrlátt vatn og langa göngustíga meðfram Mar Menor. Nærliggjandi svæði er paradís fyrir golfunnendur, með nokkrum af bestu völlunum í aðeins nokkurra mínútna fjarlægð. Nálægi bærinn Los Alcazares býður upp á fjölbreytt úrval af þjónustu, veitingastöðum, verslunum og afþreyingu, sem gerir daglegt líf auðvelt og skemmtilegt. Fjarlægðir til helstu áhugaverðra staða: Los Alcazares ströndin 4,5 km, Roda Golf 3 km, Mar Menor Golf 4 km, Cartagena 25 km, Murcia alþjóðaflugvöllurinn 30 km. Fullkomna heimilið þitt á Costa Calida. Þetta þróunarverkefni býður upp á frábært tækifæri til að eignast nútímalegt raðhús á vel tengdum og friðsælum stað nálægt golfvöllum og sjónum. Hafðu samband við okkur í dag til að fá frekari upplýsingar eða bóka heimsókn og tryggja þér nýja heimilið þitt í Santa Rosalia.

Staðsetning

Hafðu samband við okkur Gera fyrirspurn

Responsable del tratamiento: Mediaterrean y Mar Eindom, SL, Finalidad del tratamiento: Gestión y control de los servicios ofrecidos a través de la página Web de Servicios inmobiliarios, Envío de información a traves de newsletter y otros, Legitimación: Por consentimiento, Destinatarios: No se cederan los datos, salvo para elaborar contabilidad, Derechos de las personas interesadas: Acceder, rectificar y suprimir los datos, solicitar la portabilidad de los mismos, oponerse altratamiento y solicitar la limitación de éste, Procedencia de los datos: El Propio interesado, Información Adicional: Puede consultarse la información adicional y detallada sobre protección de datos Aquí.

© 2026 Medimar Eiendom · All rights reserved · Legal athugið Privacy Cookies Web Map

Design and CRM: Mediaelx

Gera fyrirspurn WhatsApp