EINBÝLISHÚS · Nýbygging Alicante - Costa Blanca · Polop

Einkenni

Önnur lögun

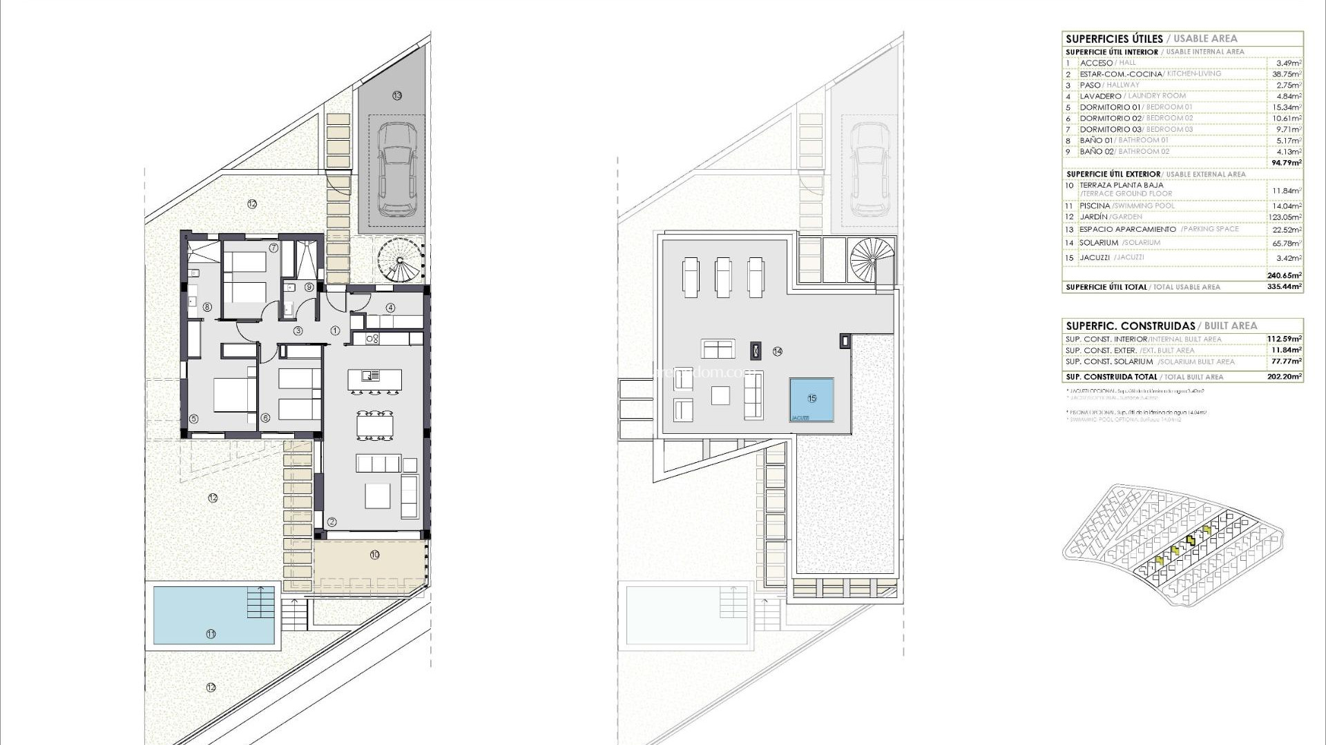
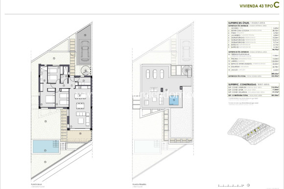
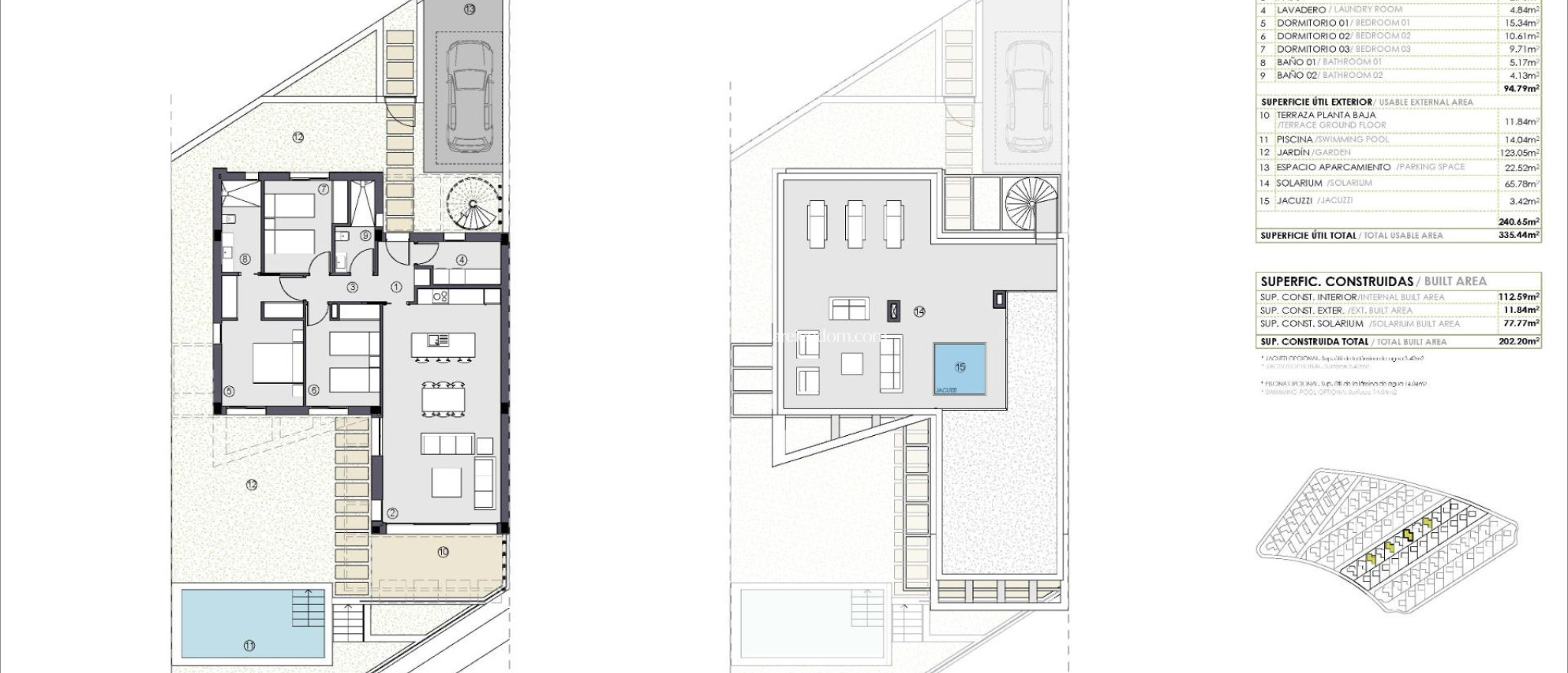
Svefnherbergi: 3
Baðherbergi: 2
Byggir: 112m2
Söguþráður: 325m2
Gated
Solarium: Yes
Number of Parking Spaces: 1
Air Conditioning: Pre-Installed
Garden
Views: Sea
Near Schools
Double Bedrooms: 3
Lähellä bussilinjaa
Location: Coastal
Parking - Space
Terrace: 76 Msq.
Beach: 9000 Meters
Useable Build Space: 94 Msq.
Near Commercial Center
Gera fyrirspurn

Lýsing

NÝBYGGÐAR VILLUR Í POLOP Nýbyggingarþróun einbýlishúsa í Polop býður upp á rými þar sem þú getur notið Miðjarðarhafslífsstílsins til fulls. Veldu á milli einbýlishúsa með 2 og 3 svefnherbergjum í Polop, sem eru hannaðar til að fanga kjarna Miðjarðarhafsins og njóta umhverfisins utandyra. Hápunktar þessa verkefnis eru stórkostlegt útsýni yfir tvo einstaka staði: Altea-flóann með djúpbláum sjó og tignarlegu Alicante-fjöllin með tindum sínum og gróðri. Láttu þig dáleiðast af þessu ótrúlega útsýni frá veröndum þessara húsa í Polop sem einnig eru með stór rými sem bjóða þér að njóta einstaks loftslags Costa Blanca og þú getur sérsniðið eftir þínum óskum. Stærð húsanna er tilvalin til að setja upp borð, stóla, sólstóla eða hvaða útihúsgögn sem þú vilt. Verkefnið er hugsað og hannað til að njóta útiverunnar, ekki aðeins með veröndum, heldur einnig með görðum, svölum og sólstofum í hverju húsi. Að auki bjóða flest hús í Polop upp á möguleikann á að bæta við einkasundlaug (óendanleg eða ekki, allt eftir eiginleikum lóðarinnar). Þeir sem kjósa einbýlishús geta einnig valið að setja upp nuddpott á sólstofunni. Dreifing þessara einbýlishúsa er hönnuð til að veita þægindi í daglegu lífi, með fullbúnum opnum eldhúsum, þar á meðal helluborði, spanhelluborði, ofni, viftu og vaski. Baðherbergi eru einnig búin. Öllum einingum fylgir bílastæði með í verðinu. Staðsetningin er lúxus. Þú verður staðsettur aðeins 5 mínútum frá miðbæ "Polop de la Marina", heillandi þorps sem sameinar hefð og fjölbreytta þjónustu: veitingastaði, verslanir, stórmarkaði, banka, sjúkrahús og allt sem þú þarft fyrir daglegt líf. Til að fullkomna upplifunina, mjög nálægt einbýlishúsunum, finnur þú margar leiðir til gönguferða og fjallahjólreiða, ásamt íþróttamiðstöð með paddle tennisvöllum. Að auki, fyrir golfáhugamenn, eru þekktir golfvellir eins og Villaitana Golf, innan við 15 mínútna akstursfjarlægð, aðeins steinsnar frá. Og það er ekki allt! Í 5 mínútna akstursfjarlægð er ein stærsta íþróttamiðstöð Spánar í byggingu: "Ciudad del Deporte La Nucia". Þar er þegar að finna virta Ferrer Tennis Academy og Camilo Cano Ólympíuleikvanginn. Þessi þróunarmiðstöð inniheldur knattspyrnumiðstöð, aðal brimbrettagarð Spánar með öldulaugum, gistingu fyrir íþróttamenn og fræðslumiðstöðvar. Og ekki má gleyma stórkostlegum ströndum Costa Blanca, sem teygja sig meðfram 244 kílómetra strandlengju, og fallega Altea, eitt af fallegustu þorpum landsins. Að auki finnur þú fyrsta flokks golfvelli og innviði eins og Alicante-Elche Miguel Hernandez flugvöllinn, aðeins 50 mínútna akstursfjarlægð. 472

Staðsetning

Hafðu samband við okkur Gera fyrirspurn

Responsable del tratamiento: Mediaterrean y Mar Eindom, SL, Finalidad del tratamiento: Gestión y control de los servicios ofrecidos a través de la página Web de Servicios inmobiliarios, Envío de información a traves de newsletter y otros, Legitimación: Por consentimiento, Destinatarios: No se cederan los datos, salvo para elaborar contabilidad, Derechos de las personas interesadas: Acceder, rectificar y suprimir los datos, solicitar la portabilidad de los mismos, oponerse altratamiento y solicitar la limitación de éste, Procedencia de los datos: El Propio interesado, Información Adicional: Puede consultarse la información adicional y detallada sobre protección de datos Aquí.

© 2026 Medimar Eiendom · All rights reserved · Legal athugið Privacy Cookies Web Map

Design and CRM: Mediaelx

Gera fyrirspurn WhatsApp