€1.750.000
€1.750.000
Gera fyrirspurn Viltu samband við

EINBÝLISHÚS · Nýbygging Alicante - Costa Blanca · Benissa

€1.750.000
€1.750.000
Gera fyrirspurn Viltu samband við

Einkenni

Önnur lögun

Svefnherbergi: 3
Baðherbergi: 3
Byggir: 227m2
Söguþráður: 876m2
Pool:
Solarium: Yes
Private Pool
Garden
Views: Sea
Near Schools
Double Bedrooms: 3
Number of Parking Spaces: 2
BBQ
Location: Coastal
Parking - Space
Beach: 800 Meters
Laundry Room
Useable Build Space: 170 Msq.
Heating: Yes
Terrace: 156 Msq.
Gated
Gera fyrirspurn

Lýsing

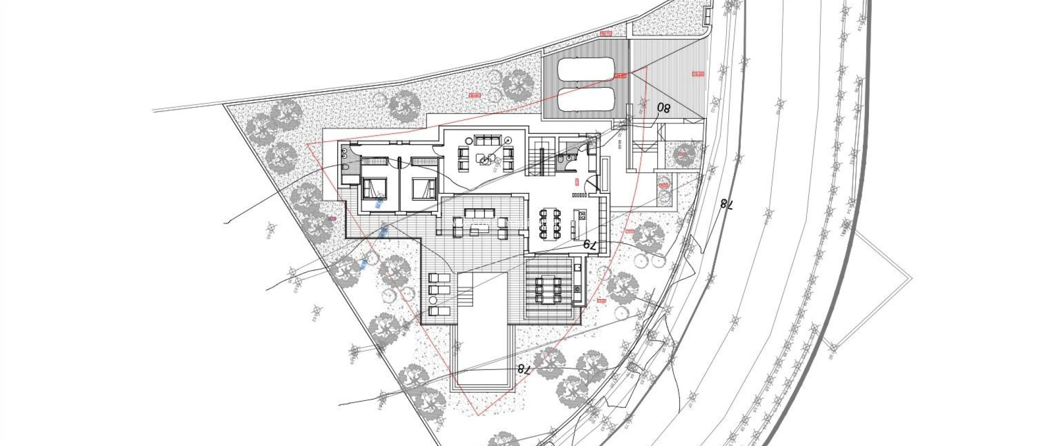
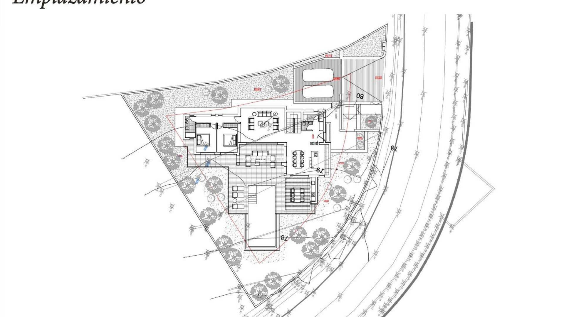
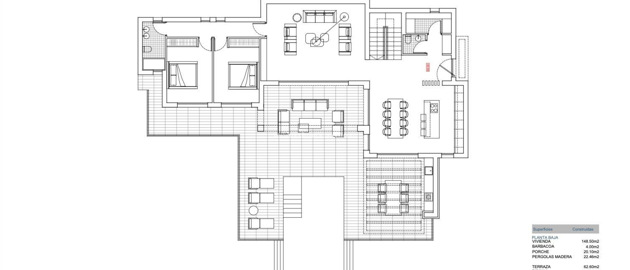
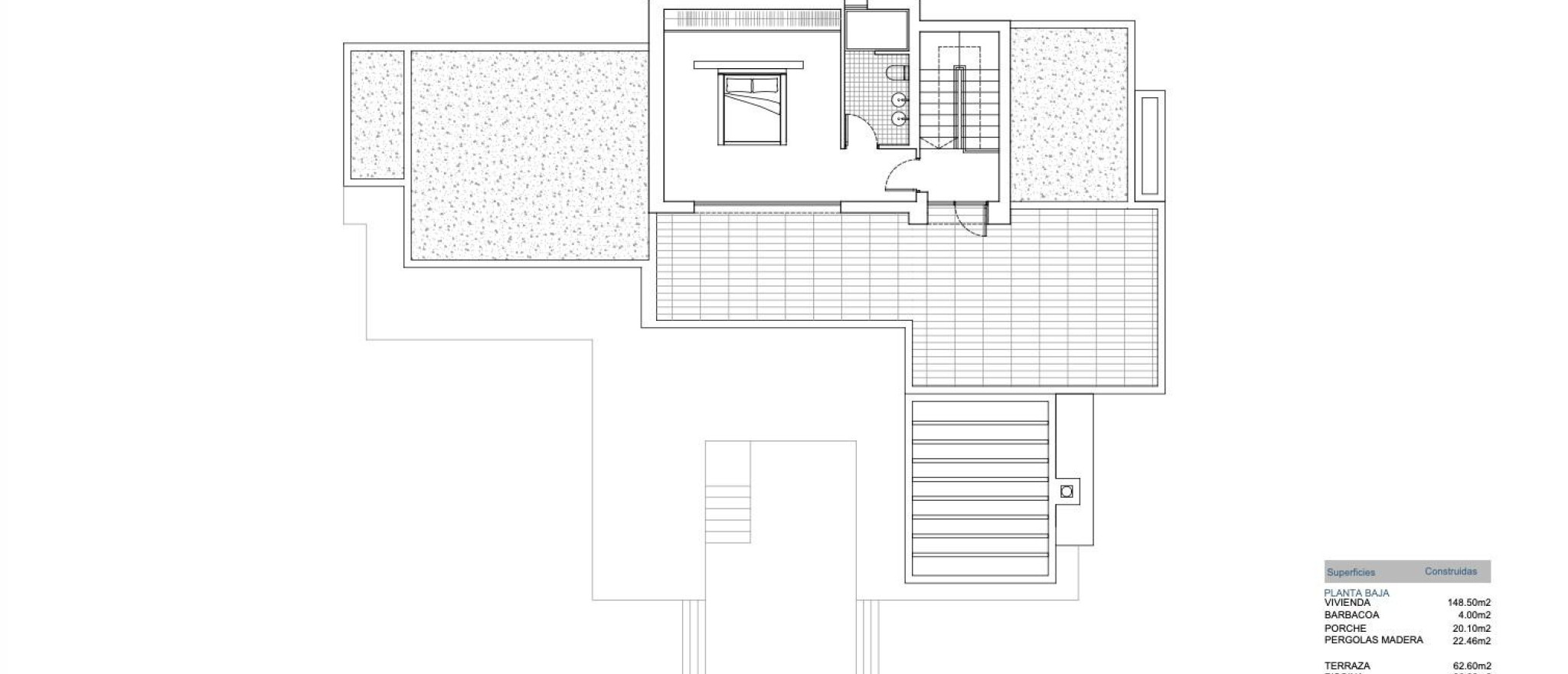
Lúxusvilla í Ibísastíl í La Fustera (Benissa Costa) Aðeins 1 km frá ströndinni. Miðjarðarhafshreiður á norðurhluta Costa Blanca. Þessi einstöku safn fjögurra einbýlishúsa er staðsett í La Fustera, virðulegu íbúðahverfi í Benissa á norðurhluta Costa Blanca. Þessi hús blanda saman sjarma Ibísa-arkitektúrs og nútímalegri Miðjarðarhafsglæsileika og bjóða upp á næði, útsýni yfir sjóinn og fáganlegan lífsstíl í einni eftirsóttustu strandlengju svæðisins. La Fustera er þekkt fyrir kristaltærar víkur, náttúrulegt umhverfi og lágþétta íbúðaandrúmsloft. Villurnar eru aðeins 1 km frá La Fustera ströndinni, sem veitir auðveldan aðgang að einni fallegustu strönd svæðisins, með veitingastöðum við ströndina og fallegum gönguleiðum meðfram strandlengjunni. Frábær staðsetning nálægt Calpe og Moraira. Þróunin er á stefnumótandi stað aðeins 10 mínútna akstursfjarlægð frá Calpe, Moraira og miðbæ Benissa, sem veitir aðgang að matvöruverslunum, smábátahöfnum, golfvöllum, alþjóðlegum skólum og læknisþjónustu. Svæðið sameinar ró og framúrskarandi tengingu við helstu áfangastaði Costa Blanca. Nútímalegt skipulag með sjávarútsýni og sundlaug Þessi villa er á tveimur hæðum á rúmgóðri 876 fermetra lóð með tvöföldum einkabílastæði. Á jarðhæð eru tvö svefnherbergi sem deila baðherbergi, gestasalerni með þvottahúsi og björt stofa með opnu eldhúsi. Stórar rennihurðir tengja innréttinguna við rúmgóða verönd og einkasundlaug með útsýni yfir hafið. Á efri hæðinni er hjónaherbergið með sérbaðherbergi, fataherbergi og aðgangi að glæsilegri 54 fermetra opinni verönd með útsýni yfir hafið. Hönnun á Ibísa og hágæða frágangur Innblásin af hreinum línum og náttúrulegum efnum á Ibísa, sameinar arkitektúrinn rúmmál, tré og stein til að skapa hlýleg og tímalaus rými. Stórir gluggar hámarka náttúrulegt ljós og skapa óaðfinnanlega flæði milli inni- og útiveru. Einbýlishúsin eru afhent með fyrsta flokks búnaði, þar á meðal: Fullbúið eldhús með tækjum Hönnuð baðherbergi með húsgögnum Rafmagnsgardínur Myndbands- og viðvörunarkerfi Hitakerfi fyrir heitt vatn og gólfhita Fullbúið loftkæling Fjarlægðir til helstu áhugaverðra staða La Fustera strönd 1 km Calpe 7 km Moraira 8 km Ifach golfklúbbur 6 km Alicante flugvöllur 80 km Valencia flugvöllur 110 km Upplifðu kjarna Miðjarðarhafslífsins Ef þú ert að leita að nútímalegri einbýlishúsi þar sem hönnun, þægindi og náttúra sameinast í fullkomnu samræmi, þá er þetta tækifærið þitt. Hafðu samband við okkur í dag til að fá frekari upplýsingar eða til að bóka einkaskoðun á þessum einstöku einbýlishúsum í La Fustera, Benissa Costa. 472

Staðsetning

Hafðu samband við okkur Gera fyrirspurn

Responsable del tratamiento: Mediaterrean y Mar Eindom, SL, Finalidad del tratamiento: Gestión y control de los servicios ofrecidos a través de la página Web de Servicios inmobiliarios, Envío de información a traves de newsletter y otros, Legitimación: Por consentimiento, Destinatarios: No se cederan los datos, salvo para elaborar contabilidad, Derechos de las personas interesadas: Acceder, rectificar y suprimir los datos, solicitar la portabilidad de los mismos, oponerse altratamiento y solicitar la limitación de éste, Procedencia de los datos: El Propio interesado, Información Adicional: Puede consultarse la información adicional y detallada sobre protección de datos Aquí.

© 2026 Medimar Eiendom · All rights reserved · Legal athugið Privacy Cookies Web Map

Design and CRM: Mediaelx

Gera fyrirspurn WhatsApp