Íbúð · Nýbygging Alicante - Costa Blanca · Torrevieja

Einkenni

Önnur lögun

Svefnherbergi: 1
Baðherbergi: 1
Byggir: 57m2
Pool:
Communal Pool
Air Conditioning: Pre-Installed
Lyfta/lyfta
Near Schools
Space
Lähellä bussilinjaa
BBQ
Location: Coastal
Beach: 400 Meters
Double Bedrooms: 1
Has Main Electric
Terrace: 8 Msq.
Near Commercial Center
Nýtanlegt byggingarrými: 42 fermetrar
Gera fyrirspurn

Lýsing

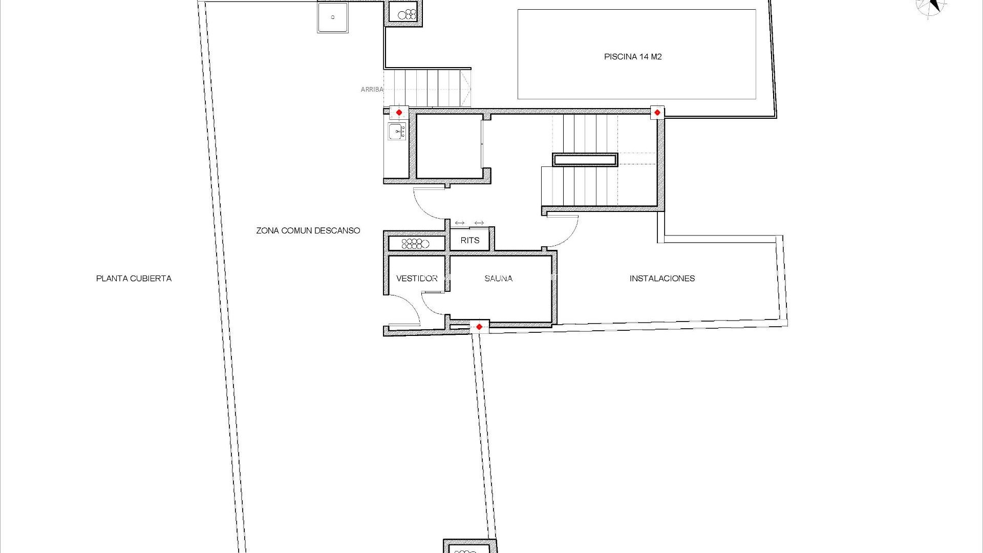
Nýbyggðar íbúðir í Torrevieja, aðeins 600 metra frá Playa del Cura ströndinni. Frábær staðsetning í hjarta Torrevieja. Uppgötvaðu þessar glænýju íbúðir og þakíbúðir í einu eftirsóttasta hverfi Torrevieja, aðeins 600 metra frá Playa del Cura ströndinni og 400 metra frá strandgötunni. Þetta líflega hverfi er staðsett í miðbænum og býður upp á alla nauðsynlega þjónustu í göngufæri, þar á meðal matvöruverslanir, verslanir, veitingastaði, kaffihús og almenningssamgöngur. Torrevieja er þekktur strandbær á Costa Blanca, frægur fyrir milt Miðjarðarhafsloftslag, líflegan andrúmsloft og lífsstíl við sjóinn allt árið um kring. Nútímalegar íbúðir með rúmgóðu skipulagi. Þetta einstaka nýja verkefni samanstendur af aðeins 14 íbúðum og þakíbúðum, þar á meðal stúdíóíbúðum og 1 eða 2 svefnherbergja íbúðum, hannaðar til að bjóða upp á þægindi, virkni og nútímalegan stíl. Öll heimilin eru með opnu eldhúsi tengt stofu-borðstofu, búin tækjum, sem skapar bjarta og notalega innréttingu. Svefnherbergin eru með innbyggðum fataskápum og baðherbergin eru fullbúin með húsgögnum, speglum, gólfhita og sturtuklefa. Vandað frágangur og orkusparandi eiginleikar Íbúðirnar eru byggðar úr hágæða efni með mikilli áherslu á orkunýtni. Ytra byrði álviðar er með hitakerfi og tvöföldu gleri fyrir varma- og hljóðeinangrun. Rafknúnar gluggatjöld auka þægindi og öryggi. Hvert heimili er með foruppsetningu fyrir loftkælingu og hitun með loftstokkum, styrktum inngangshurðum, lýsingu og hvítlökkuðum innri hurðum. Heitt vatn er framleitt með lofthitakerfi, sem dregur úr orkunotkun og eykur sjálfbærni. Þakverönd með sameiginlegri sundlaug Íbúar geta notið einkaréttar þakverönd með sameiginlegri sundlaug, grilli, gufubaði og sólbaðssvæði með sólstólum, aðgengilegt með lyftu eða stiga. Þetta einkasvæði er fullkomið til að slaka á, sólbaða sig og njóta útsýnis yfir borgina. Það býður upp á friðsæla athvarf yfir ys og þys götum Torrevieja og bætir verulegu gildi við bygginguna. Lífsstíll og umhverfi Torrevieja Torrevieja er þekkt fyrir víðáttumikla strandlengju, sandstrendur og helgimynda saltsléttur. Náttúrugarðurinn Lagunas de La Mata y Torrevieja er í um 5 km fjarlægð og býður upp á gönguleiðir og einstakt landslag. Nokkrir golfvellir, eins og Villamartin Golf og Las Colinas Golf, eru í 12 til 18 km fjarlægð. Smábátahöfnin og höfnin í Torrevieja eru í um 1 km fjarlægð. Alicante-flugvöllurinn er í um 45 km fjarlægð og Murcia-alþjóðaflugvöllurinn er í um 65 km fjarlægð, báðir með frábærum tengingum við Evrópu. Heimili þitt við ströndina bíður þín. Ekki missa af þessu tækifæri til að kaupa nútímalega, nýbyggða íbúð nálægt ströndinni í Torrevieja. Hafðu samband við okkur í dag til að fá frekari upplýsingar eða til að bóka einkaskoðun.

Staðsetning

Hafðu samband við okkur Gera fyrirspurn

Responsable del tratamiento: Mediaterrean y Mar Eindom, SL, Finalidad del tratamiento: Gestión y control de los servicios ofrecidos a través de la página Web de Servicios inmobiliarios, Envío de información a traves de newsletter y otros, Legitimación: Por consentimiento, Destinatarios: No se cederan los datos, salvo para elaborar contabilidad, Derechos de las personas interesadas: Acceder, rectificar y suprimir los datos, solicitar la portabilidad de los mismos, oponerse altratamiento y solicitar la limitación de éste, Procedencia de los datos: El Propio interesado, Información Adicional: Puede consultarse la información adicional y detallada sobre protección de datos Aquí.

© 2026 Medimar Eiendom · All rights reserved · Legal athugið Privacy Cookies Web Map

Design and CRM: Mediaelx

Gera fyrirspurn WhatsApp