Íbúð · Nýbygging Alicante - Costa Blanca · Orihuela Costa

Einkenni

Önnur lögun

Svefnherbergi: 2
Baðherbergi: 2
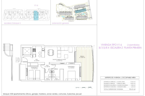
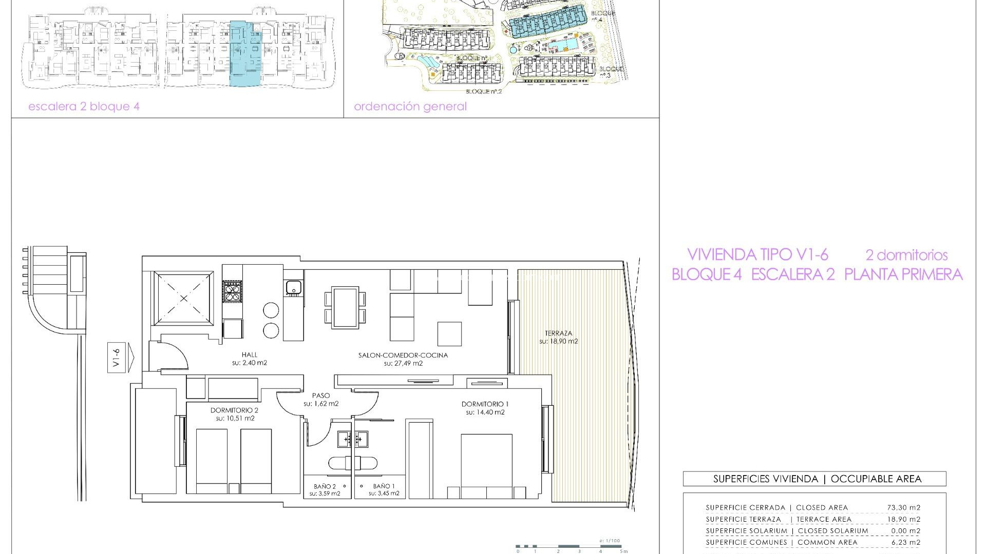
Byggir: 77m2
Pool:
Communal Pool
Gated
Number of Parking Spaces: 1
Location: Coastal, Urbanisation
Air Conditioning: Pre-Installed
Double Bedrooms: 2
Lyfta/lyfta
Near Schools
Lähellä puita
Lähellä bussilinjaa
Parking - Space
Useable Build Space: 65 Msq.
Terrace: 18 Msq.
Beach: 500 Meters
Near Commercial Center
Geymsla / Geymsla
Gera fyrirspurn

Lýsing

NÝBYGGÐ ÍBÚÐARHÚS VIÐ PLAYA FLAMENCA!!! Frá rótgrónu byggingarfyrirtæki erum við stolt af að bjóða upp á þetta nýútgefna íbúðarhúsnæði aðeins 500 metra frá sjónum á vinsæla Playa Flamenca (Orihuela Costa). Íbúðarhúsnæði með góðum sameiginlegum sundlaugum, nuddpottum og fallegum sameiginlegum görðum. Öll þjónusta eins og matvöruverslanir, barir og veitingastaðir o.s.frv. er í göngufæri á mjög miðlægum stað í Orihuela Costa. Fjölbreytt úrval íbúða: stúdíóíbúðir, 1, 2 eða 3 svefnherbergja íbúðir. Neðri hæðir með einkagörðum eða efstu hæðir með einkasólstofum. Öllum húsum fylgir bílastæði og geymslurými innifalið í verðinu. Verslunarmiðstöðin Zenia Boulevard er í 1 km fjarlægð og nokkrir golfvellir eins og Villamartin, Campoamor innan 5 km frá þessu íbúðarhúsnæði gera það að kjörnum stað fyrir frí eða fasta búsetu.

Staðsetning

Hafðu samband við okkur Gera fyrirspurn

Responsable del tratamiento: Mediaterrean y Mar Eindom, SL, Finalidad del tratamiento: Gestión y control de los servicios ofrecidos a través de la página Web de Servicios inmobiliarios, Envío de información a traves de newsletter y otros, Legitimación: Por consentimiento, Destinatarios: No se cederan los datos, salvo para elaborar contabilidad, Derechos de las personas interesadas: Acceder, rectificar y suprimir los datos, solicitar la portabilidad de los mismos, oponerse altratamiento y solicitar la limitación de éste, Procedencia de los datos: El Propio interesado, Información Adicional: Puede consultarse la información adicional y detallada sobre protección de datos Aquí.

© 2026 Medimar Eiendom · All rights reserved · Legal athugið Privacy Cookies Web Map

Design and CRM: Mediaelx

Gera fyrirspurn WhatsApp