Bungalow á efstu hæð · Nýbygging Alicante - Costa Blanca · Rojales

Einkenni

Önnur lögun

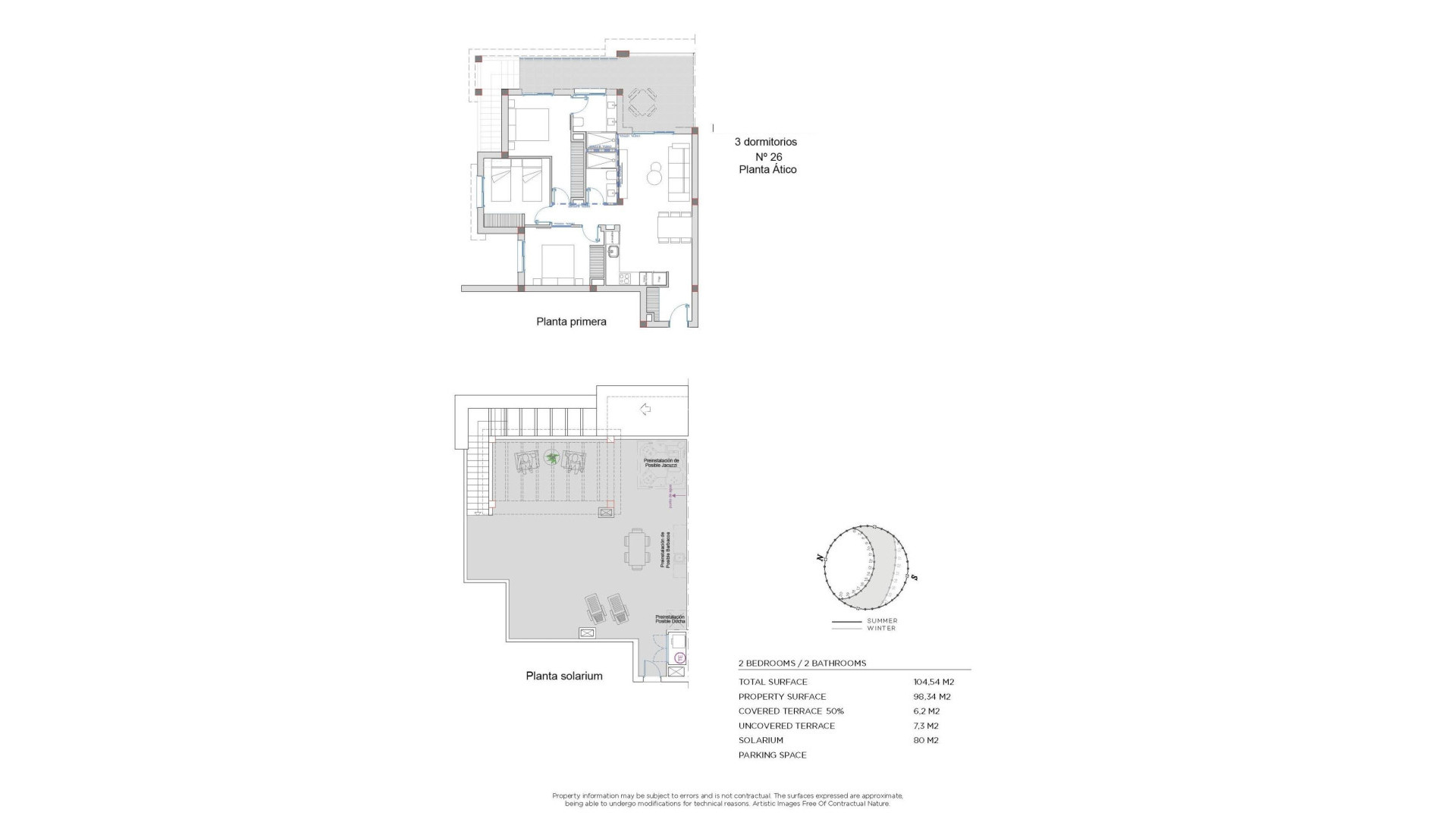
Svefnherbergi: 3
Baðherbergi: 2
Byggir: 108m2
Pool:
Communal Pool
Gated
Solarium: Yes
Number of Parking Spaces: 1
Air Conditioning: Pre-Installed
Near Schools
Double Bedrooms: 3
Parking - Space
Location: Urbanisation
Beach: 6000 Meters
Useable Build Space: 102 Msq.
Terrace: 105 Msq.
Near Commercial Center
Geymsla / Geymsla
Gera fyrirspurn

Lýsing

Nútímalegar Miðjarðarhafsíbúðir í Ciudad Quesada, Costa Blanca Sérstök íbúðarhúsnæði Uppgötvaðu einkarekna íbúðabyggð sem er hönnuð til að bjóða upp á hámarks þægindi, gæði og lífsstíl á einum eftirsóttasta stað á Costa Blanca. Staðsett í Ciudad Quesada, aðeins nokkurra mínútna fjarlægð frá Alicante-alþjóðaflugvellinum, sameinar þetta nútímalega þróunarverkefni tímalausan sjarma Miðjarðarhafsarkitektúrs við ferska, hagnýta hönnun sem er tilvalin fyrir nútímalegt líf. Glæsilegar íbúðir með einkareknum útisvæðum Byggingin býður upp á tvær gerðir af heimilum sem henta mismunandi lífsstílum. Veldu á milli íbúða á jarðhæð með rúmgóðum einkagarði, sem eru fullkomnar fyrir slökun utandyra, eða íbúða á fyrstu hæð með stórum einkasólarverönd, tilvalin til að njóta sólarinnar allt árið um kring og friðsæls útsýnis. Hver íbúð er með 2 eða 3 svefnherbergjum og 2 baðherbergjum, sem bjóða upp á bjarta og þægilega innréttingu. Að auki er hvert heimili með einkabílastæði innan byggingarinnar og geymslu fyrir aukin þægindi. Samfélagsrými fyrir slökun og vellíðan Byggingin er hönnuð til ánægju og slökunar og býður upp á fallega landslagaða sameiginlega garða og stóra sundlaug sem skapar kyrrláta og einkarétta andrúmsloft. Hvort sem þú ert að leita að því að slaka á í sólinni, taka þér hressandi sundsprett eða einfaldlega njóta náttúrunnar, þá býður þetta þróunarverkefni upp á allt sem þú þarft til að búa þægilega á Costa Blanca. Frábær staðsetning nálægt ströndum og golfi Ciudad Quesada er rótgróið og líflegt samfélag, þekkt fyrir framúrskarandi þjónustu, veitingastaði og afþreyingarmöguleika. La Marquesa golfvöllurinn, staðsettur aðeins nokkurra mínútna fjarlægð, er einn af sögufrægustu golfvöllunum á Costa Blanca, með 18 holum og frægu holunni 17 sem er innblásin af Sawgrass, og býður upp á einstaka upplifun fyrir golfáhugamenn. Fallegar bláfánastrendur Guardamar del Segura, La Mata og Torrevieja eru aðeins 15 km frá þróunarverkefninu, fullkomnar til sólbaða eða vatnaíþrótta. Alþjóðaflugvöllurinn í Alicante er staðsettur í 40 km fjarlægð, sem gerir ferðalög auðvelda og aðgengileg. Miðjarðarhafslífsstíll í essinu sínu Umkringdur náttúru, golfvöllum og sjónum, býður þetta íbúðarverkefni upp á fullkomna umgjörð fyrir bæði fasta búsetu og frístundir. Þetta er staður þar sem nútímaleg þægindi mæta sjarma Miðjarðarhafslífsstílsins. Bókaðu heimsókn í dag. Ekki missa af tækifærinu til að eignast nýtt heimili í Ciudad Quesada á Costa Blanca. Hafðu samband við okkur í dag til að fá frekari upplýsingar eða til að bóka einkaskoðun á þessum einstöku nýbyggðu íbúðum.

Staðsetning

Hafðu samband við okkur Gera fyrirspurn

Responsable del tratamiento: Mediaterrean y Mar Eindom, SL, Finalidad del tratamiento: Gestión y control de los servicios ofrecidos a través de la página Web de Servicios inmobiliarios, Envío de información a traves de newsletter y otros, Legitimación: Por consentimiento, Destinatarios: No se cederan los datos, salvo para elaborar contabilidad, Derechos de las personas interesadas: Acceder, rectificar y suprimir los datos, solicitar la portabilidad de los mismos, oponerse altratamiento y solicitar la limitación de éste, Procedencia de los datos: El Propio interesado, Información Adicional: Puede consultarse la información adicional y detallada sobre protección de datos Aquí.

© 2026 Medimar Eiendom · All rights reserved · Legal athugið Privacy Cookies Web Map

Design and CRM: Mediaelx

Gera fyrirspurn WhatsApp