Íbúð · Nýbygging Alicante - Costa Blanca · Orihuela Costa

Einkenni

Önnur lögun

Svefnherbergi: 2
Baðherbergi: 2
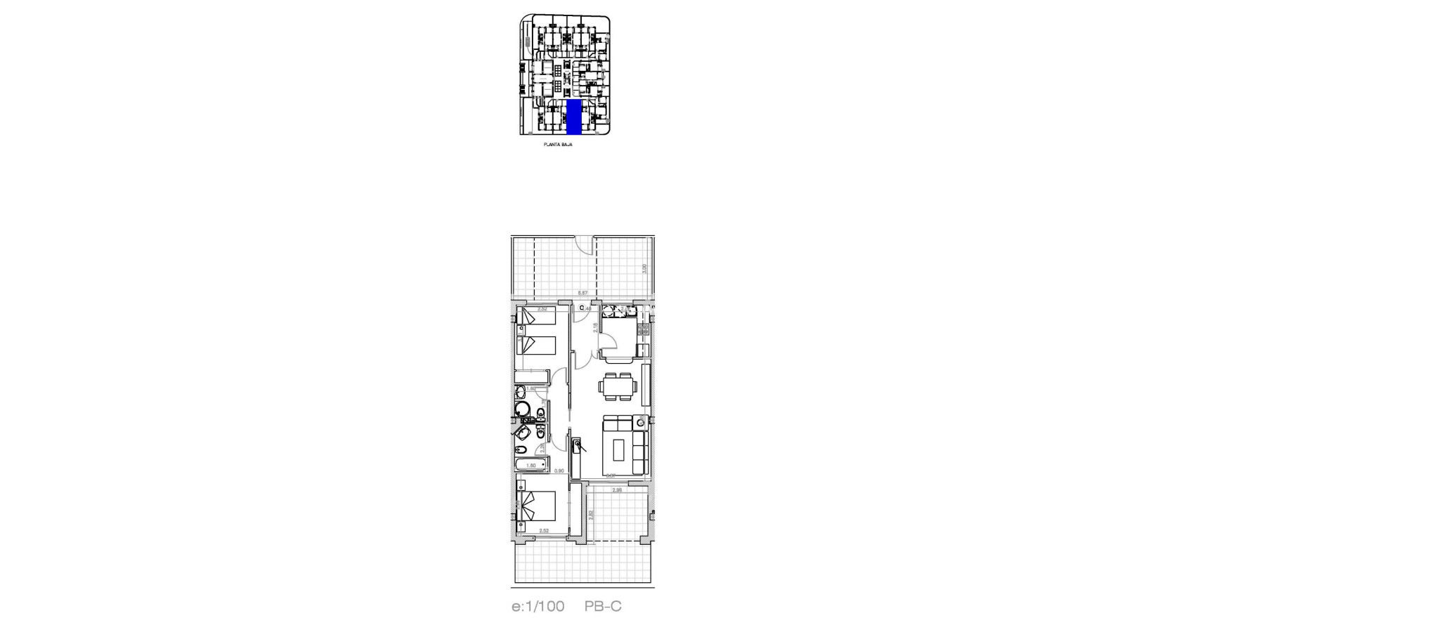
Byggir: 69m2
Pool:
Near Commercial Center
Communal Pool
Gated
Location: Coastal, Urbanisation
Double Bedrooms: 2
Lyfta/lyfta
Near Schools
Lähellä puita
Beach: 2000 Meters
Useable Build Space: 60 Msq.
Parking - Space
Terrace: 51 Msq.
Gera fyrirspurn

Lýsing

Endurnýjuð íbúðabyggð í Lomas de Cabo Roig – Endurnýjaðar íbúðir Íbúðir á frábærum stað Uppgötvaðu þetta einstaka tækifæri til að eignast endurnýjaða íbúð í Lomas de Cabo Roig, eftirsóttu svæði í Orihuela Costa. Þetta íbúðabyggðarhúsnæði, upphaflega byggt árið 2008, er að gangast undir endurnýjun á nokkrum íbúðum og verður afhent í júní 2025. Sýningarhús er í boði til skoðunar, sem gerir þér kleift að sjá gæðafráganginn af eigin raun. Fasteignavalkostir sem henta öllum þörfum Þessi þróun býður upp á 27 endurnýjaðar íbúðir, með fjölbreyttu skipulagi: 1 og 2 svefnherbergja íbúðir, tilvaldar fyrir frístundahús eða fjárfestingu. Íbúðir á jarðhæð með einkagörðum, fullkomnar til útivistar. Íbúðir á miðhæð með rúmgóðum svölum, tilvaldar til að njóta Miðjarðarhafsloftslagsins. Þakíbúðir með einkasólstofum, sem bjóða upp á opið útsýni og hámarks næði. Hvert hús er afhent með sturtuklefa á baðherbergjum og fullbúnum eldhúsum með tækjum, sem tryggir kaupendum tilbúna lausn. Sérstök samfélagsaðstaða Íbúðabyggðarhúsið er hannað með þægindi og slökun í huga og býður upp á: Sameiginlega sundlaug umkringda fallegum landslagsgörðum. Lyftu fyrir auðveldan aðgang að öllum hæðum. Bílastæði í bílakjallara eru í boði gegn aukagjaldi. Óviðjafnanleg staðsetning í Orihuela Costa Lomas de Cabo Roig er virðulegt íbúðahverfi staðsett aðeins 2 km frá strandlengju Cabo Roig, þar sem eru nokkrar af fallegustu ströndum Orihuela Costa. Svæðið er vel tengt við þjóðvegi og býður upp á fjölbreytt úrval þjónustu, þar á meðal verslanir, veitingastaði, stórmarkaði og verslunarmiðstöðvar. Fjarlægðir að helstu áhugaverðum stöðum: Strendur Cabo Roig og Campoamor - 5 mínútna akstur. Verslunarmiðstöðin Zenia Boulevard - 5 km. Golfvöllurinn Villamartín - 4 km. Flugvöllurinn í Alicante - 30 mínútur með bíl. Flugvöllurinn í Murcia-Corvera - 1 klukkustund með bíl. Snjöll fjárfesting á Costa Blanca Með frábærri staðsetningu, fullkomlega endurnýjuðum íbúðum og fyrsta flokks þægindum er þessi þróun kjörið tækifæri til fjárfestingar, frístundahúsnæðis eða fastrar búsetu. Ekki missa af þessu einstaka tækifæri til að eiga heimili á einu eftirsóknarverðasta svæði Costa Blanca á óviðjafnanlegu verði. Hafðu samband við okkur í dag til að fá frekari upplýsingar eða til að bóka skoðun!

Staðsetning

Hafðu samband við okkur Gera fyrirspurn

Responsable del tratamiento: Mediaterrean y Mar Eindom, SL, Finalidad del tratamiento: Gestión y control de los servicios ofrecidos a través de la página Web de Servicios inmobiliarios, Envío de información a traves de newsletter y otros, Legitimación: Por consentimiento, Destinatarios: No se cederan los datos, salvo para elaborar contabilidad, Derechos de las personas interesadas: Acceder, rectificar y suprimir los datos, solicitar la portabilidad de los mismos, oponerse altratamiento y solicitar la limitación de éste, Procedencia de los datos: El Propio interesado, Información Adicional: Puede consultarse la información adicional y detallada sobre protección de datos Aquí.

© 2026 Medimar Eiendom · All rights reserved · Legal athugið Privacy Cookies Web Map

Design and CRM: Mediaelx

Gera fyrirspurn WhatsApp