EINBÝLISHÚS · Nýbygging Alicante - Costa Blanca · Finestrat

Einkenni

Önnur lögun

Svefnherbergi: 3
Baðherbergi: 2
Byggir: 110m2
Söguþráður: 544m2
Pool:
Gated
Number of Parking Spaces: 1
Lähellä golfkenttää / golfkeskuksen kiinteistöä
Location: Coastal, Urbanisation
Air Conditioning: Pre-Installed
Private Pool
Garden
Beach: 4000 Meters
Views: Sea
Near Schools
Double Bedrooms: 3
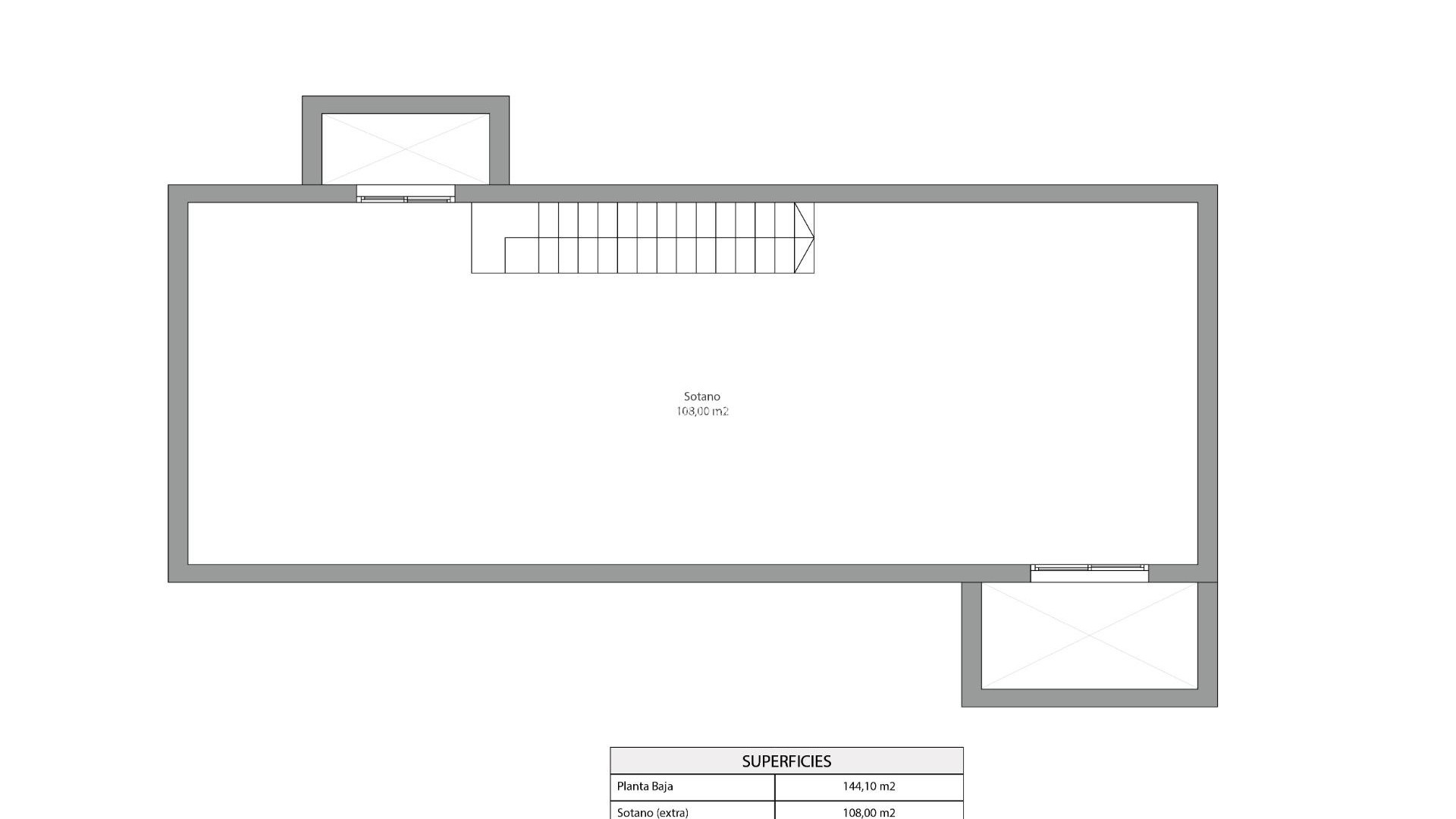
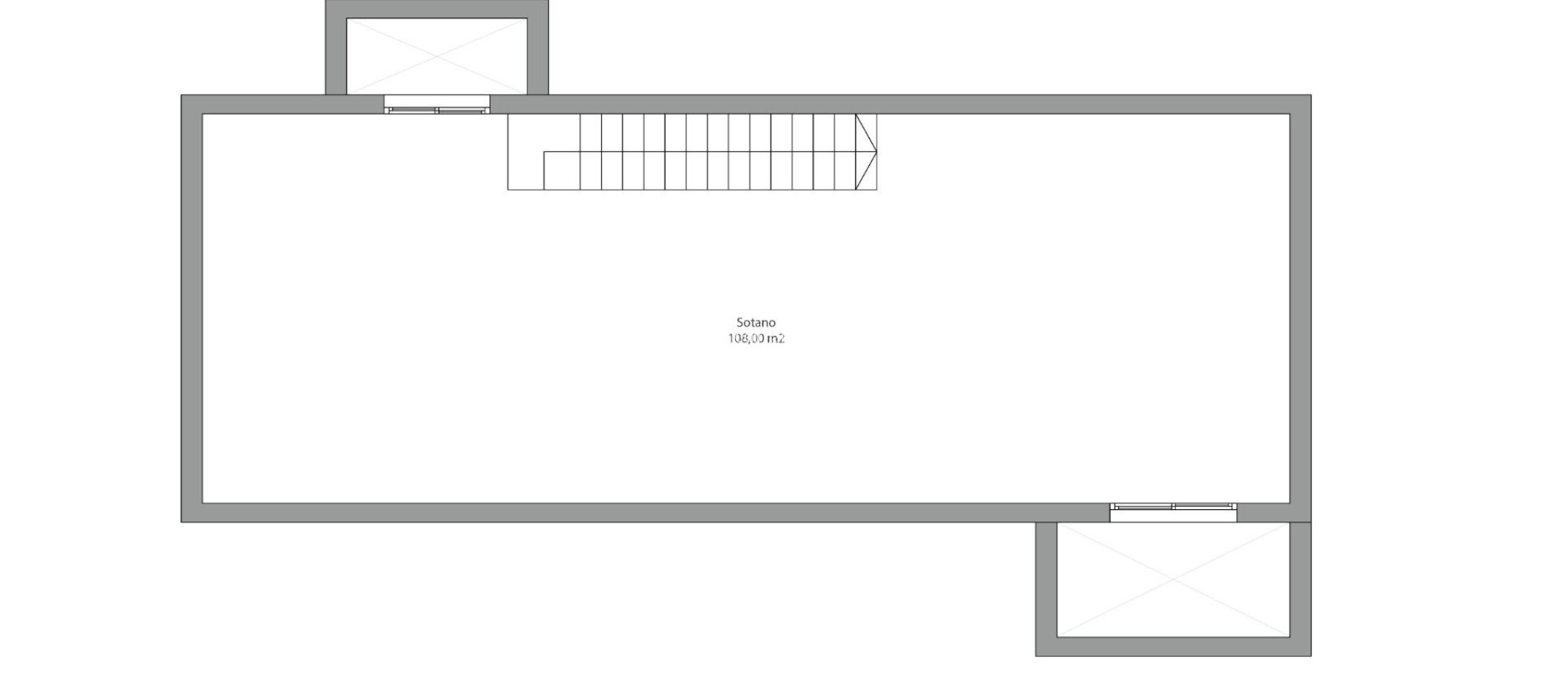
Under-Build / Basement
Parking - Space
Terrace: 50 Msq.
Useable Build Space: 252 Msq.
Near Commercial Center
Salerni: 1
Gera fyrirspurn

Lýsing

Nýbyggðar einbýlishús með útsýni yfir sjóinn í Finestrat-Benidorm. Sérstakt íbúðakomplex með útsýni yfir sjóinn og borgina Benidorm. Sjö nýbyggð einbýlishús í Finestrat-Benidorm bjóða upp á stórkostlegt útsýni yfir Miðjarðarhafið og sjóndeildarhring Benidorm. Þessar nútímalegu eignir eru með 3 svefnherbergi, 2 baðherbergi og 1 salerni, allt á einni hæð, með möguleika á að bæta við kjallara gegn aukagjaldi. Ef þú velur að bæta við kjallara, þá verður náttúruleg loftræsting og krossloftræsting í gegnum tvær enskar veröndir á gagnstæðum hliðum, þú getur bætt við auka svefnherbergi og baðherbergi og þú getur einnig bætt við leikherbergi, skrifstofu, kvikmyndahúsi eða hverju sem framtíðareigendur vilja hanna. Eignirnar eru með einkalóðir sem eru meira en 500 fermetrar með einkasundlaug, bílastæði og útsýni yfir sjóinn. Byggð úr hágæða efnum, nýta þessi hús náttúrulegt ljós allan daginn og eru með stórum veröndum til að njóta meira en 320 sólskinsdaga á ári í Alicante. Frábær staðsetning nálægt því besta á Costa Blanca ströndinni. Þetta einstaka íbúðabyggðarkomplex er staðsett nálægt nokkrum af bestu ströndum, verslunarsvæðum og afþreyingaraðstöðu á Costa Blanca. Fjarlægðir til helstu staða: Strendur (Levante, Poniente, Cala de Finestrat) - 4 km. Golfvellir (Sierra Cortina, Villaitana) - 1 km. Miðbær Benidorm - 5 mínútur með bíl. Alicante alþjóðaflugvöllur - 40 km (30 mínútur með bíl). Háhraðalestartenging (AVE) - 30 mínútur. Svæðið býður upp á framúrskarandi tengingar og er umkringt nauðsynlegri þjónustu eins og sjúkrahúsum, skólum, almenningssamgöngum, verslunarmiðstöðvum og veitingastöðum. Fyrsta flokks þjónusta fyrir þægindi og gæði. Hver eign inniheldur: Bílastæði innan lóðarinnar. Styrkt öryggishurð. PVC gluggar með hitabroti og tvöföldu gleri. Foruppsetning á loftkælingu. Hitakerfi fyrir heitt vatn. Einkasundlaug, 36m2. Einstakt tækifæri til fjárfestingar og lífsgæða. Finestrat er staðsett í fallega Marina Baixa svæðinu og býður upp á rólegt umhverfi en er aðeins í nokkurra mínútna fjarlægð frá líflega Benidorm. Njóttu þess besta úr báðum heimum: slakaðu á í kyrrlátu umhverfi með aðgangi að helstu aðdráttarafl eins og Terra Mitica, Aqualandia, Mundomar og Terra Natura. Með nálægð við strendur, golfvelli og útivist eins og gönguferðir í Puig Campana, er þetta eitt besta svæðið til að fjárfesta í á Costa Blanca. Ekki missa af þessu einstaka tækifæri! Hafðu samband við okkur í dag til að bóka skoðun og finna draumaheimilið þitt í Finestrat-Benidorm.

Staðsetning

Hafðu samband við okkur Gera fyrirspurn

Responsable del tratamiento: Mediaterrean y Mar Eindom, SL, Finalidad del tratamiento: Gestión y control de los servicios ofrecidos a través de la página Web de Servicios inmobiliarios, Envío de información a traves de newsletter y otros, Legitimación: Por consentimiento, Destinatarios: No se cederan los datos, salvo para elaborar contabilidad, Derechos de las personas interesadas: Acceder, rectificar y suprimir los datos, solicitar la portabilidad de los mismos, oponerse altratamiento y solicitar la limitación de éste, Procedencia de los datos: El Propio interesado, Información Adicional: Puede consultarse la información adicional y detallada sobre protección de datos Aquí.

© 2026 Medimar Eiendom · All rights reserved · Legal athugið Privacy Cookies Web Map

Design and CRM: Mediaelx

Gera fyrirspurn WhatsApp