Bungalow á efstu hæð · Nýbygging Murcia · Puerto de Mazarron

Einkenni

Önnur lögun

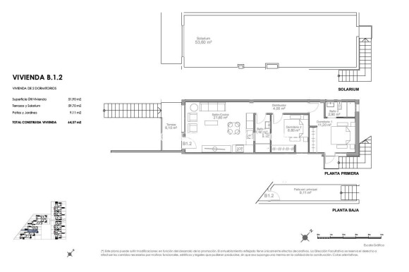
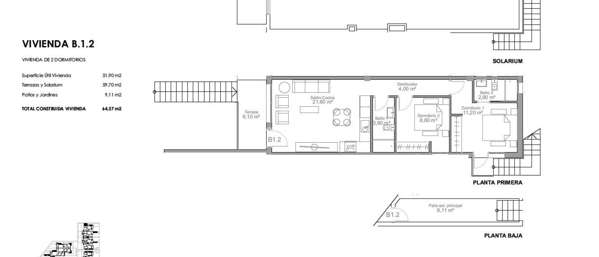
Svefnherbergi: 2
Baðherbergi: 2
Byggir: 64m2
Söguþráður: 9m2
Views: Sea
Near Schools
Lähellä bussilinjaa
Parking - Space
Terrace: 59 Msq.
Beach: 200 Meters
Near Commercial Center
Useable Build Space: 51 Msq.
Gated
Solarium: Yes
Number of Parking Spaces: 1
Location: Coastal, Urbanisation
Air Conditioning: Pre-Installed
Double Bedrooms: 2
Garden
Gera fyrirspurn

Lýsing

Nýbyggð hús aðeins 200 metra frá ströndinni í Puerto de Mazarrón. Sérstök strandlíf í Costa Cálida. Kynnum nýtt íbúðabyggðarþróun með nútímalegum heimilum í Puerto de Mazarrón, staðsett aðeins 200 metra frá fallegu Playa Negra. Þetta verkefni er staðsett í einu eftirsóttasta strandsvæði Murcia-héraðsins og býður upp á einstakt tækifæri til að njóta Miðjarðarhafslífs nálægt sjónum, nauðsynlegum þægindum og náttúrulegu umhverfi. Puerto de Mazarrón er þekkt fyrir stórkostlegar strendur, kristaltært vatn, heillandi smábátahöfn og afslappað andrúmsloft. Með framúrskarandi þjónustu, útivistarmöguleikum og hlýju loftslagi allt árið um kring er það kjörinn áfangastaður bæði fyrir fasta búsetu og frí. Nútímaleg hönnun og hagnýt skipulag. Þetta sérstæða þróunarverkefni samanstendur af 30 nútímalegum heimilum með 2 svefnherbergjum og 1 eða 2 baðherbergjum, vandlega hönnuð til að veita þægindi, stíl og skilvirkni. Lágreista byggðin samanstendur af íbúðum á jarðhæð með sérveröndum og görðum, sem og íbúðum á fyrstu hæð með veröndum og einkaþakveröndum. Húsin bjóða upp á einkabílastæði annað hvort á lóðinni eða innan íbúðarhúsnæðisins. Húsin eru hönnuð til að hámarka náttúrulegt ljós, með opnum stofum, stórum gluggum og fyrsta flokks frágangi. Fyrsti áfanginn býður upp á sérsniðin hús með hagnýtu skipulagi sem hægt er að sníða að þörfum lífsstíls hvers og eins. Hús á jarðhæð eru með einkagarði, verönd að aftan og bílastæði á lóð eða sameiginlegri bílastæði. Hús á efstu hæð eru með einkaaðgang á jarðhæð, verönd á fyrstu hæð og þakverönd, auk sérbílastæða. Meðal aukahluta eru einkasundlaugar á svölum á jarðhæð eða nuddpottar á þakveröndum. Hágæða upplýsingar Hver eign er með styrktum inngangshurð. Fyrirfram uppsetning á loftkælingu. Fullbúin baðherbergi með húsgögnum, spegli og sturtuklefa. Útirými hönnuð fyrir grill, pergólur og slökunarsvæði. Þetta íbúðasamfélag býður upp á öruggt, fjölskylduvænt og rótgróið umhverfi, í göngufæri við matvöruverslanir, skóla, læknisþjónustu, almenningsgarða og ströndina. Frábær staðsetning í Puerto de Mazarrón. Fjarlægðir að helstu áhugaverðum stöðum. Playa Negra 0,2 km. Mazarrón-smábátahöfnin 2 km. Mazarrón Park verslunarmiðstöðin 5 km. Cartagena 35 km. Murcia borg 70 km. Murcia Corvera flugvöllur 45 km. Golfvellirnir Camposol og Hacienda del Álamo 25–35 km. Njóttu vatnaíþrótta, gönguferða og hjólreiða í nálægu Sierra de las Moreras og uppgötvaðu það besta sem lífsstíllinn á Costa Cálida hefur upp á að bjóða. Gerðu Miðjarðarhafið að heimili þínu. Ekki missa af tækifærinu til að tryggja þér nýbyggða eign aðeins skrefum frá ströndinni í Puerto de Mazarrón. Hafðu samband við okkur í dag til að fá upplýsingar um lausa tíma, upplýsingar og tíma til að skoða.

Staðsetning

Hafðu samband við okkur Gera fyrirspurn

Responsable del tratamiento: Mediaterrean y Mar Eindom, SL, Finalidad del tratamiento: Gestión y control de los servicios ofrecidos a través de la página Web de Servicios inmobiliarios, Envío de información a traves de newsletter y otros, Legitimación: Por consentimiento, Destinatarios: No se cederan los datos, salvo para elaborar contabilidad, Derechos de las personas interesadas: Acceder, rectificar y suprimir los datos, solicitar la portabilidad de los mismos, oponerse altratamiento y solicitar la limitación de éste, Procedencia de los datos: El Propio interesado, Información Adicional: Puede consultarse la información adicional y detallada sobre protección de datos Aquí.

© 2026 Medimar Eiendom · All rights reserved · Legal athugið Privacy Cookies Web Map

Design and CRM: Mediaelx

Gera fyrirspurn WhatsApp