€1.450.000
€1.450.000
Gera fyrirspurn Viltu samband við

EINBÝLISHÚS · Nýbygging Alicante - Costa Blanca · Jávea Xàbia

€1.450.000
€1.450.000
Gera fyrirspurn Viltu samband við

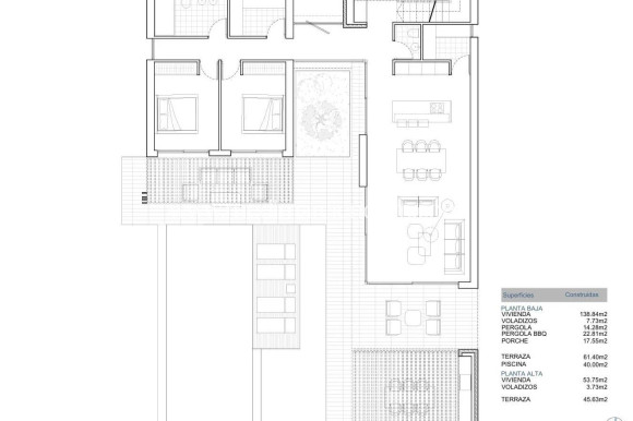
Einkenni

Önnur lögun

Svefnherbergi: 3
Baðherbergi: 2
Byggir: 210m2
Söguþráður: 1.000m2
Pool:
Parking - Space
Beach: 800 Meters
Useable Build Space: 160 Msq.
Terrace: 105 Msq.
Near Commercial Center
Salerni: 1
Gated
Solarium: Yes
Number of Parking Spaces: 1
Air Conditioning: Pre-Installed
Private Pool
Garden
Near Schools
Double Bedrooms: 3
Location: Coastal
Gera fyrirspurn

Lýsing

Nýbyggð nútímaleg einbýlishús nálægt sjónum í Javea. Einstök Miðjarðarhafslíf í Javea. Uppgötvaðu þessa glæsilegu nútímalegu einbýlishúsi staðsett á einu eftirsóttasta og friðsælasta svæði Javea, aðeins 800 metra frá sjónum. Þessi íbúð er staðsett á milli furutrjáa og nálægt frægu Cala de la Barraca og Cala del Portixol og býður upp á einstakan lífsstíl umkringdan náttúru og strandfegurð. Javea, staðsett á Costa Blanca milli Alicante og Valencia, er þekkt fyrir kristaltært vatn, heillandi gamla bæinn og milt loftslag allt árið um kring, sem gerir það að einum eftirsóttasta áfangastaðnum við Miðjarðarhafið. Glæsileg hönnun og björt opin rými. Þessi einbýlishús er hönnuð með þægindi og stíl í huga og einkennist af nútímalegri byggingarlist með mjúkum línum, stórum gluggum og mjúkri samþættingu innandyra og utandyra. Náttúrulegt ljós baðar hvert horn og skapar hlýlegt og aðlaðandi andrúmsloft sem er tilvalið bæði til að búa og skemmta sér. Villan er á tveimur hæðum og samanstendur af opnu stofu- og borðstofurými með óaðfinnanlegu aðgengi að veröndum og sundlaug. Fullbúið opið eldhús, 3 svefnherbergi og 2 baðherbergi ásamt 1 gestasalerni. Þvottahús og búr. Einkarekinn garður, verönd og sundlaugarsvæði með sumareldhúsi. Sér hjónaherbergi og útivist. Jarðhæðin er með tvö svefnherbergi, baðherbergi og rúmgóð samnýtt rými. Á efri hæðinni býður hjónaherbergið upp á einkaaðstaða með sérbaðherbergi, rúmgóðan fataskáp og 45 fermetra verönd, fullkomin til að njóta útsýnis yfir sólarupprásina og Miðjarðarhafsgola. Útisvæðið hefur verið hannað til slökunar, með einkasundlaug, sólarveröndum og gróskumiklu umhverfi sem tryggir ró og næði. Frábær staðsetning í Costa Blanca Norður-Javea býður upp á einstakan lífsstíl með fallegum ströndum, gönguleiðum, smábátahöfnum, golfvöllum og veitingastöðum. Bærinn er 92 km frá Alicante og 105 km frá Valencia. Lykilfjarlægðir Strönd og Cala del Portixol: 0,8 km Höfn og smábátahöfn Javea: 8 km Golfklúbbur Javea: 10 km Flugvöllur Alicante: 100 km Flugvöllur Valencia: 125 km Heimili þitt við Miðjarðarhafið bíður þín Hvort sem þú ert að leita að fastri búsetu, lúxusfríi eða fyrsta flokks fjárfestingu, þá býður þessi villa upp á næði, þægindi og einstakt strandsvæði. Hafðu samband við okkur í dag til að fá frekari upplýsingar eða til að bóka skoðun á þessu einstaka nútímalega heimili í Javea.

Staðsetning

Hafðu samband við okkur Gera fyrirspurn

Responsable del tratamiento: Mediaterrean y Mar Eindom, SL, Finalidad del tratamiento: Gestión y control de los servicios ofrecidos a través de la página Web de Servicios inmobiliarios, Envío de información a traves de newsletter y otros, Legitimación: Por consentimiento, Destinatarios: No se cederan los datos, salvo para elaborar contabilidad, Derechos de las personas interesadas: Acceder, rectificar y suprimir los datos, solicitar la portabilidad de los mismos, oponerse altratamiento y solicitar la limitación de éste, Procedencia de los datos: El Propio interesado, Información Adicional: Puede consultarse la información adicional y detallada sobre protección de datos Aquí.

© 2026 Medimar Eiendom · All rights reserved · Legal athugið Privacy Cookies Web Map

Design and CRM: Mediaelx

Gera fyrirspurn WhatsApp