Íbúð · Nýbygging Alicante - Costa Blanca · Villajoyosa

Einkenni

Önnur lögun

Svefnherbergi: 1
Baðherbergi: 1
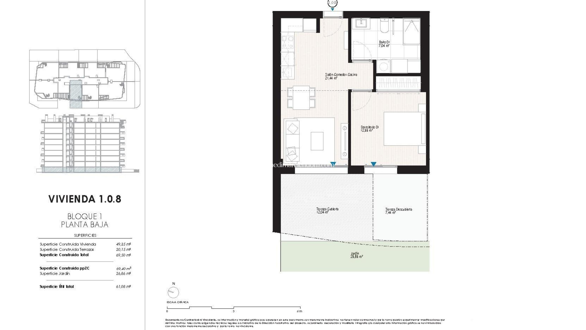
Byggir: 69m2
Söguþráður: 48m2
Pool:
Parking - Space
Beach: 400 Meters
Double Bedrooms: 1
Useable Build Space: 61 Msq.
Near Commercial Center
Geymsla / Geymsla
Communal Pool
Gated
Solarium: Yes
Number of Parking Spaces: 1
Location: Coastal, Urbanisation
Lyfta/lyfta
Garden
Near Schools
Terrace: 20 Msq.
Jacuzzi
Gym
Gera fyrirspurn

Lýsing

Lúxusdvalarstaður í Villajoyosa – Paradís við sjávarsíðuna. Uppgötvaðu einstakt íbúðabyggðarsvæði í Playa del Torres. Staðsett í innan við 5 mínútna göngufjarlægð frá kyrrlátu Playa del Torres í Villajoyosa, býður þetta nýja og einstaka þróunarsvæði upp á 164 nútímalegar íbúðir og þakíbúðir með 1 til 3 svefnherbergjum. Samfélagið er hannað til að bjóða upp á fullkomna lífsstíl og sameinar lúxus, slökun og einstaka þægindi í rólegu Miðjarðarhafsumhverfi. Framúrskarandi þægindi fyrir alla íbúa. Hjarta þessarar þróunar er þakveröndin, sem staðsett er á þaki 2. blokkar. Þetta vandlega hannaða rými inniheldur stórkostlega sundlaug með útsýni, slökunarsvæði, grillsvæði, fjölnota svæði og skáli, fullkomið til að spjalla eða slaka á. Innanhúss setustofa, tilvalin fyrir veitingastaði með vinum eða sem samvinnurými. Fyrir vatnsunnendur býður samstæðan upp á: Sundlaugar í hitabeltisstíl með aðgangi að ströndinni. Upphitaða sundlaug með sundlaugarbraut, barnasundlaug og upphitaðan nuddpott. Líkamsræktaráhugamenn geta notið: Innanhúss og utandyra líkamsræktarstöðva, ásamt líkamsræktarbraut. Púttvöll og minigolf fyrir afþreyingu. Nútímaleg heimili með fyrsta flokks eiginleikum. Hver íbúð er búin: Fullbúnu eldhúsi með hágæða tækjum, þar á meðal ísskáp, örbylgjuofni, ofni, uppþvottavél og innbyggðri þvottavél/þurrkara. Orkusparandi hitakerfi fyrir heitt vatn og loftkælingu. Gólfhiti á baðherbergjum. Hágæða PVC gluggar með einangrun og tvöföldum glerjun. Einkabílastæði og geymslurými fyrir aukin þægindi. Byggingin státar af orkuflokki A, sem tryggir hámarksnýtingu og sjálfbærni. Fullkomin staðsetning í Villajoyosa. Þessi íbúðabyggð er staðsett í Playa del Torres og býður upp á friðsælan stað umkringdur náttúrufegurð. Kristaltært vatn og tyrkisbláir litir strandarinnar bjóða upp á friðsælan bakgrunn fyrir slökun. Þróunin er vel staðsett: 2 km frá heillandi miðbæ Villajoyosa. 10 km frá Benidorm, með líflegu næturlífi og verslunum. 30 mínútna akstur frá Alicante flugvelli. Villajoyosa, þekkt fyrir litrík hús og ríka sögu, er enn ósvikin gimsteinn Miðjarðarhafsins. Þessi bær, sem nýlega var viðurkenndur sem „Besti leynistaðurinn í Evrópu 2024“ af European Best Destinations, blandar saman hefð, náttúrufegurð og ró. Draumaheimilið þitt bíður þín í Playa del Torres. Upplifðu það besta sem nútímalíf hefur í náttúruparadís. Með frábærri staðsetningu, lúxusþægindum og nútímalegri hönnun er þetta þróunarverkefni fullkomið fyrir þá sem leita að heimili við sjóinn. Hafðu samband við okkur í dag til að bóka skoðun og gera þessa glæsilegu eign að þinni!

Staðsetning

Hafðu samband við okkur Gera fyrirspurn

Responsable del tratamiento: Mediaterrean y Mar Eindom, SL, Finalidad del tratamiento: Gestión y control de los servicios ofrecidos a través de la página Web de Servicios inmobiliarios, Envío de información a traves de newsletter y otros, Legitimación: Por consentimiento, Destinatarios: No se cederan los datos, salvo para elaborar contabilidad, Derechos de las personas interesadas: Acceder, rectificar y suprimir los datos, solicitar la portabilidad de los mismos, oponerse altratamiento y solicitar la limitación de éste, Procedencia de los datos: El Propio interesado, Información Adicional: Puede consultarse la información adicional y detallada sobre protección de datos Aquí.

© 2026 Medimar Eiendom · All rights reserved · Legal athugið Privacy Cookies Web Map

Design and CRM: Mediaelx

Gera fyrirspurn WhatsApp