Íbúð · Nýbygging Murcia · Torre Pacheco

Einkenni

Önnur lögun

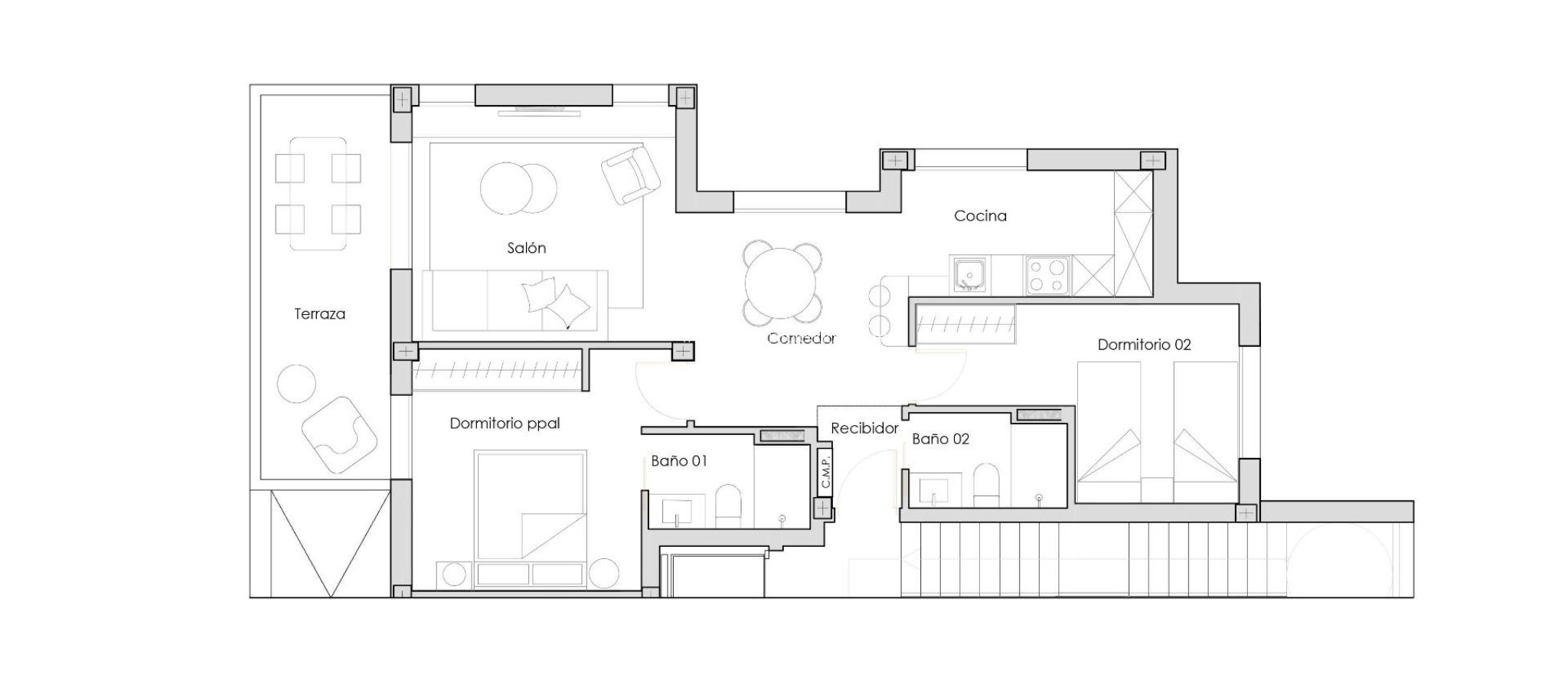
Svefnherbergi: 2
Baðherbergi: 2
Byggir: 83m2
Pool:
Near Commercial Center
Geymsla / Geymsla
Leyfisbundin ferðamannastaður
Communal Pool
Gated
Number of Parking Spaces: 1
Lähellä golfkenttää / golfkeskuksen kiinteistöä
Double Bedrooms: 2
Lyfta/lyfta
Beach: 4000 Meters
Near Schools
Gym
Parking - Space
Useable Build Space: 70 Msq.
Terrace: 10 Msq.
Location: Urbanisation
Furnished
Laundry Room
Gera fyrirspurn

Lýsing

Nýbyggðar ferðamannaíbúðir í Santa Rosalía Lake og Life Resort Costa Cálida Frábær staðsetning í hjarta Costa Cálida Þessar nýbyggðu ferðamannaíbúðir í Santa Rosalía Lake og Life Resort eru einn besti fjárfestingar- og lífsstílsmöguleikinn í Murcia-héraði. Íbúðin er staðsett innan við 4 km frá ströndum Los Alcázares og aðeins 22 km frá Murcia-alþjóðaflugvellinum og býður upp á óviðjafnanlega blöndu af aðgengi, afþreyingu og nútímalegu Miðjarðarhafslífi. Sögulega borgin Cartagena er aðeins í 15 mínútna fjarlægð og nokkrir virtir golfvellir eru innan 10 km radíuss. Sérstakt íbúðakomplex með 40 íbúðum Verkefnið samanstendur af fimm sjálfstæðum byggingum með samtals 40 fullbúnum íbúðum, dreift á fjórum hæðum með tveimur einingum á hverri hæð. Hver íbúð er með 2 svefnherbergi og 2 baðherbergi, hönnuð með þægindi og virkni að leiðarljósi. Kaupendur geta valið á milli íbúða á jarðhæð með einkagörðum, íbúða á miðhæð með stórum svölum eða þakíbúða með einkasólstofu og stórkostlegu útsýni. Fullbúin heimili, tilbúin til innflutnings. Allar eignir eru afhentar tilbúnar, þar á meðal húsgögn, loftkæling, lýsing, eldhústæki, rúmföt, handklæði og skreytingarpakka. Þetta tryggir að bæði eigendur og gestir geti notið þægilegrar upplifunar frá fyrsta degi, sem gerir hana að kjörinni vöru fyrir leigu á frístundahúsum eða einkanota. Fyrsta flokks þægindi og sameiginleg rými. Lokað hverfi er staðsett á 7.000 fermetra lóð, hönnuð með friðhelgi og öryggi í huga þökk sé girðingu um allt húsið og stýrðum aðgangi. Íbúar og gestir njóta góðs af landslagssnyrtidum Miðjarðarhafsgörðum, sameiginlegum sundlaugum, leiksvæðum fyrir börn og nægum bílastæðum. Að auki felur byggingin í sér sérstaka byggingu fyrir sameiginlega þjónustu eins og móttöku, kaffihús, þvottahús og líkamsræktarstöð. Lífsstíll Santa Rosalía Lake and Life Resort. Að eiga íbúð hér þýðir aðgang að einkaréttum þægindum Santa Rosalía Lake and Life Resort, einstakrar íbúðabyggðar með meira en 126.000 fermetra af grænum svæðum. Meðal hápunkta eru stórkostleg 17.000 fermetra kristaltær lón með hvítum sandströndum, tvær eyjar (önnur með eigin bar), strandklúbbar, íþróttamannvirki, hjóla- og gönguleiðir, standandi róður og tennisvellir, minigolf, hundagarðar og líflegt klúbbhús. Öryggis- og viðhaldsþjónusta er í boði allan sólarhringinn, sem tryggir hugarró fyrir íbúa og gesti. Fjárfestu í gæðum og lífsstíl Þessar nýbyggðu ferðamannaíbúðir sameina mikla leigumöguleika og einstakan lífsstíl á Costa Cálida. Hvort sem um er að ræða frístundahús eða fjárfestingu, þá er Santa Rosalía Lake and Life Resort áfangastaður sem tryggir gæði og verðmæti. Hafðu samband við okkur í dag til að fá frekari upplýsingar og tryggja þér íbúð í þessum einstaka Miðjarðarhafsdvalarstað.

Staðsetning

Hafðu samband við okkur Gera fyrirspurn

Responsable del tratamiento: Mediaterrean y Mar Eindom, SL, Finalidad del tratamiento: Gestión y control de los servicios ofrecidos a través de la página Web de Servicios inmobiliarios, Envío de información a traves de newsletter y otros, Legitimación: Por consentimiento, Destinatarios: No se cederan los datos, salvo para elaborar contabilidad, Derechos de las personas interesadas: Acceder, rectificar y suprimir los datos, solicitar la portabilidad de los mismos, oponerse altratamiento y solicitar la limitación de éste, Procedencia de los datos: El Propio interesado, Información Adicional: Puede consultarse la información adicional y detallada sobre protección de datos Aquí.

© 2026 Medimar Eiendom · All rights reserved · Legal athugið Privacy Cookies Web Map

Design and CRM: Mediaelx

Gera fyrirspurn WhatsApp