Íbúð · Nýbygging Alicante - Costa Blanca · Villajoyosa

Einkenni

Önnur lögun

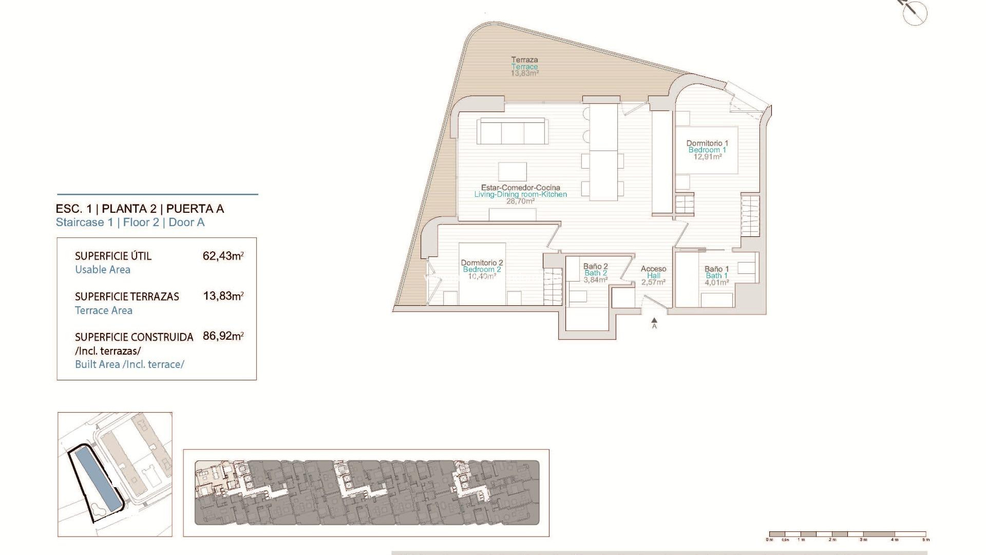
Svefnherbergi: 2
Baðherbergi: 2
Byggir: 82m2
Pool:
Near Commercial Center
Geymsla / Geymsla
Communal Pool
Gated
Number of Parking Spaces: 1
First Line to the Sea
Location: Coastal, Urbanisation
Double Bedrooms: 2
Lyfta/lyfta
Views: Sea
Near Schools
Jacuzzi
Gym
Parking - Space
Terrace: 13 Msq.
Useable Build Space: 62 Msq.
Beach: 60 Meters
Gera fyrirspurn

Lýsing

Sérstakar íbúðir og þakíbúðir við sjávarsíðuna í Villajoyosa með útsýni yfir Miðjarðarhafið. Uppgötvaðu þetta einstaka nýja íbúðabyggðarþróunarsvæði staðsett á hæð í eftirsótta Tellerola-hverfinu í Villajoyosa. Það býður upp á stórkostlegt útsýni yfir sjóinn, beinan aðgang að ströndinni um náttúrulegan slóða og er umkringt óspilltu Miðjarðarhafslandslagi. Það er fullkomin blanda af ró, þægindum og nútímalífi. Frábær staðsetning í Villajoyosa. Þetta lokað hverfi er staðsett á milli Playa del Torres og Playa El Tío Roig og nýtur einstakrar staðsetningar við sjávarsíðuna en er samt nálægt nauðsynlegri þjónustu og afþreyingu. Fallegi gamli bærinn í Villajoyosa er aðeins 1,5 km í burtu, Benidorm með líflegu næturlífi og verslunum er í 10 km fjarlægð og Alicante-flugvöllurinn er aðeins 40 km í burtu. Þessi kjörstaðsetning veitir auðveldan aðgang að golfvöllum, smábátahöfnum og menningarstöðum meðfram Costa Blanca. Glæsileg heimili með veröndum sem snúa að sjónum. Íbúðabyggðin býður upp á 1, 2 og 3 svefnherbergja íbúðir og þakíbúðir, allar hannaðar til að hámarka náttúrulegt ljós og stórkostlegt útsýni yfir sjóinn. Rúmgóðar veröndir gera þér kleift að njóta Miðjarðarhafsloftslagsins allt árið um kring, en fyrsta flokks frágangur tryggir bæði stíl og þægindi. Helstu eiginleikar eru meðal annars: Álgluggar með hitarofi og tvöföldu gleri Brynvarðar aðalinngangar Baðherbergi með speglum, sturtuklefa og rafmagnshita í gólfum Fullbúin eldhús með tækjum Loftræsting um allt húsið Heitt vatn í gegnum hitakerfi Bílastæði og geymsla innifalin Fyrsta flokks samfélagsþjónusta Íbúar munu njóta víðáttumikilla landslagsgarða, stórrar sameiginlegrar sundlaugar, fullbúins líkamsræktarstöðvar og afslappandi heilsulindar. Hápunkturinn er einkaréttur félagsklúbbur á þakinu með óendanlegri sundlaug sem býður upp á óviðjafnanlegt útsýni yfir Miðjarðarhafið. Byggingin sameinar næði, öryggi og nútímalega hönnun til að skapa friðsælt og fágað umhverfi. Villajoyosa – Falinn gimsteinn Costa Blanca Villajoyosa var nýlega verðlaunuð sem „Besti falni áfangastaðurinn í Evrópu 2024“ af European Best Destinations og er þekkt fyrir litrík hús við sjávarsíðuna, heillandi gamla bæinn og óspilltar strendur. Hér getur þú sökkt þér niður í ekta Miðjarðarhafslíf og verið nálægt alþjóðlegum þægindum. Fjarlægðir til helstu áhugaverðra staða: Miðbær Villajoyosa: 1,5 km Benidorm: 10 km Flugvöllur Alicante: 40 km Playa del Torres: 0,2 km Playa El Tío Roig: 0,4 km Villaitana Golf: 12 km Höfnin í Alicante: 35 km Draumaheimilið þitt við sjóinn bíður þín í Villajoyosa. Hafðu samband við okkur í dag til að bóka skoðun og tryggja þér pláss í þessu einstaka samfélagi við sjávarsíðuna.

Staðsetning

Hafðu samband við okkur Gera fyrirspurn

Responsable del tratamiento: Mediaterrean y Mar Eindom, SL, Finalidad del tratamiento: Gestión y control de los servicios ofrecidos a través de la página Web de Servicios inmobiliarios, Envío de información a traves de newsletter y otros, Legitimación: Por consentimiento, Destinatarios: No se cederan los datos, salvo para elaborar contabilidad, Derechos de las personas interesadas: Acceder, rectificar y suprimir los datos, solicitar la portabilidad de los mismos, oponerse altratamiento y solicitar la limitación de éste, Procedencia de los datos: El Propio interesado, Información Adicional: Puede consultarse la información adicional y detallada sobre protección de datos Aquí.

© 2026 Medimar Eiendom · All rights reserved · Legal athugið Privacy Cookies Web Map

Design and CRM: Mediaelx

Gera fyrirspurn WhatsApp