Íbúð · Nýbygging Almeria · Vera

Einkenni

Önnur lögun

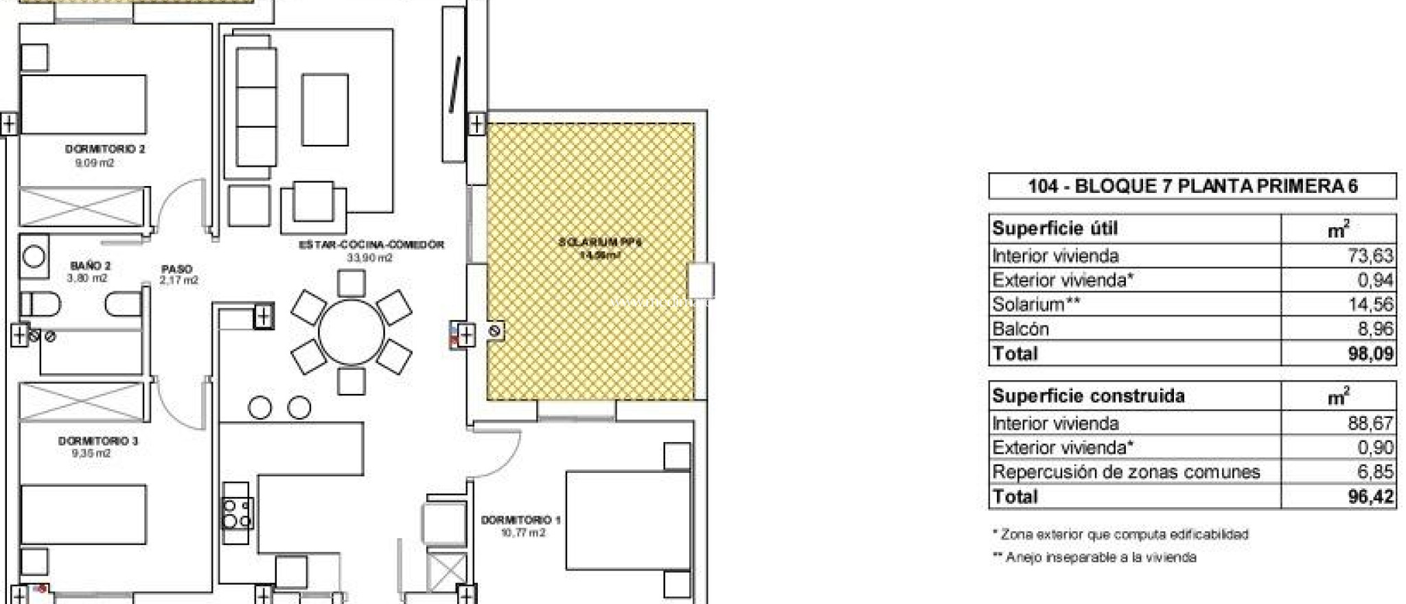
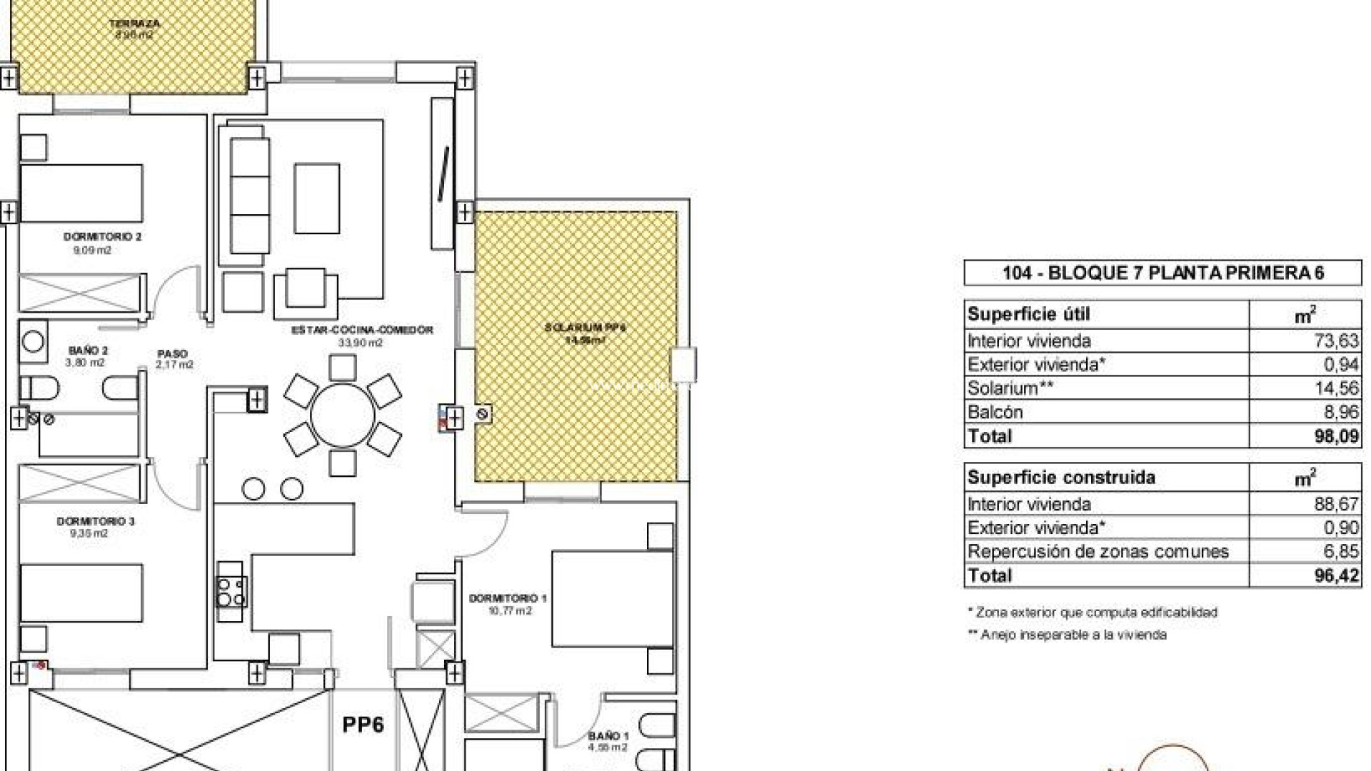
Svefnherbergi: 3
Baðherbergi: 2
Byggir: 95m2
Pool:
Communal Pool
Gated
Number of Parking Spaces: 1
Lähellä golfkenttää / golfkeskuksen kiinteistöä
Location: Coastal, Urbanisation
Air Conditioning: Pre-Installed
Lyfta/lyfta
Garden
Double Bedrooms: 3
Gym
Parking - Space
Beach: 400 Meters
Terrace: 19 Msq.
Useable Build Space: 91 Msq.
Gera fyrirspurn

Lýsing

NÝBYGGÐ ÍBÚARBYGGING Í VERA Nýbyggð íbúðabyggð í Vera, aðeins 400m frá risastóru Vera ströndinni sem heitir „El Playazo“. Tegundirnar eru á jarðhæð með tveimur einkagörðum, einum í hverri stefnu, sem gerir þér kleift að njóta sólar eða skugga hvenær sem þú vilt, allt eftir tíma dags eða árstíð. Fyrstu hæðirnar eru með verönd og þakíbúðirnar eru með stórum ljósabekkjum. Allar íbúðirnar eru með auka lofthæð (2,95 m) sem gefur mikla rýmistilfinningu. Eldhúsið er fullbúið og búið samþætt stofu/borðstofu með barsvæði. Hurðir og fataskápar eru hvítlakkaðir og gólf úr parketi. Heita-kalda loftkælingin og heita vatnið eru framleidd með fullkomnu DAIKIN Aerothermal tæki, tækni sem sparar allt að 70% af rafmagnsnotkun miðað við hefðbundin kerfi. Öll baðherbergi eru með sturtu í stað baðkars, með innfelldum speglum og einnig með steinbekk og glerskilrúmi á aðalbaðherbergi. Gluggatjöld í stofu og hjónaherbergi eru rafdrifin, loftþétt og með stillanlegum rimlum. Garðarnir og ljósabekkurinn eru afhentur með gólfum fullbúnum með gervi grasi og fallegri hellulögn sem líkir eftir viði. Hvert hús fylgir sér bílastæði utandyra. Hver blokk í kynningunni er með sjálfstæða lyftu. Bæði byggingarnar og íbúðirnar hafa röð lífloftslagseinkenna (stefnumótun, einangrun, gluggar og hlerar, pergolas) sem leyfa ákjósanlegri náttúrulegri stjórn á loftræstingu, hitastigi og birtu á mismunandi árstíðum. Sameiginleg svæði eru byggð upp af göngutorgum og grænum svæðum, með stórri sundlaug fyrir fullorðna og önnur fyrir börn á miðtorginu. Allt þéttbýlismyndunin er laus við byggingarhindranir fyrir fatlaða. Hér er ró og slökun tryggð. Vera er einn besti náttúristastaður í Evrópu, viðurkenndur fyrir gæði og hreinleika vatnsins. Það býður upp á sex kílómetra af ströndum (Las Marinas-Bolaga, Puerto Rey, El Playazo, Quitapellejos). Vera á landamæri að frægum ferðamannastöðum eins og Mojacar og Almanzora hellunum. Íbúðarsamstæða staðsett í um 1,5 tíma akstursfjarlægð frá Murcia - Corvera flugvellinum og í um 2 klukkustunda fjarlægð frá flugvellinum í Alicante.

Staðsetning

Hafðu samband við okkur Gera fyrirspurn

Responsable del tratamiento: Mediaterrean y Mar Eindom, SL, Finalidad del tratamiento: Gestión y control de los servicios ofrecidos a través de la página Web de Servicios inmobiliarios, Envío de información a traves de newsletter y otros, Legitimación: Por consentimiento, Destinatarios: No se cederan los datos, salvo para elaborar contabilidad, Derechos de las personas interesadas: Acceder, rectificar y suprimir los datos, solicitar la portabilidad de los mismos, oponerse altratamiento y solicitar la limitación de éste, Procedencia de los datos: El Propio interesado, Información Adicional: Puede consultarse la información adicional y detallada sobre protección de datos Aquí.

© 2026 Medimar Eiendom · All rights reserved · Legal athugið Privacy Cookies Web Map

Design and CRM: Mediaelx

Gera fyrirspurn WhatsApp