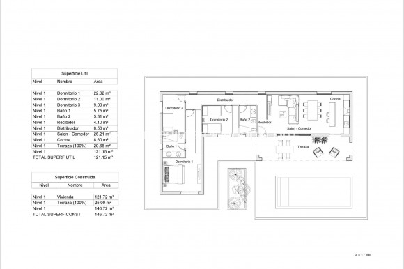
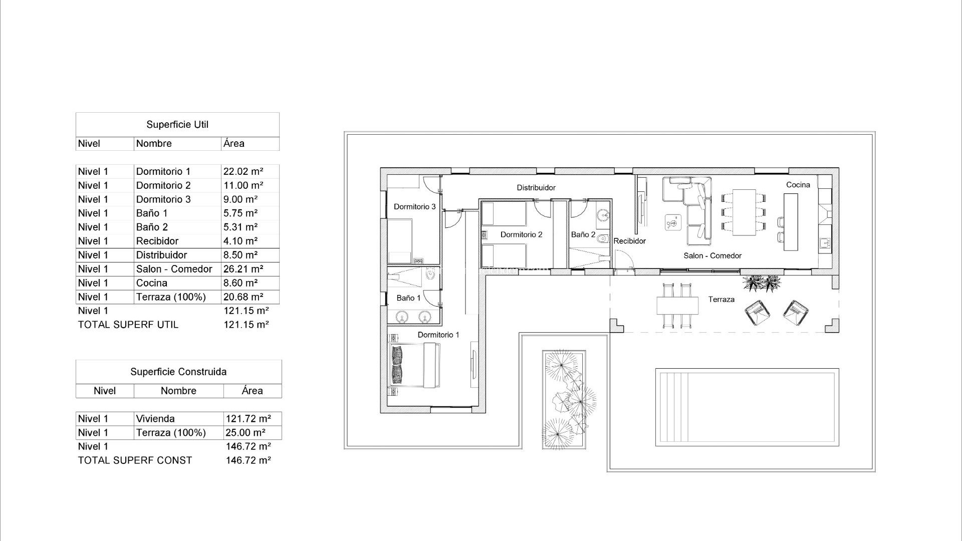
NÝBYGGÐVÍLUR Í LA ROMANA Nýbyggt einbýlishús staðsett í La Romana. Einbýlishús á einni hæð byggt á sveitalegri lóð sem er 14 569m2, hefur 3 svefnherbergi og 2 baðherbergi, opið eldhús með setustofu, fataskápum, einkasundlaug og bílastæði utan vega. Ef þú ert að leita að rólegu umhverfi, nálægt dæmigerðum spænskum þorpum, umkringd fjöllum og um 30 mínútur frá sjó, þá er þetta heimili þitt. La Romana dæmigert spænskt þorp, umkringt fjöllum og um 30 mínútur frá sjónum. Villa staðsett 30 mínútur frá Alicante flugvellinum.