€315.000
€315.000
Faire une enquête Contact

Appartement · Nouvelle Construction Almeria · Vera

€315.000
€315.000
Faire une enquête Contact

Les caractéristiques

Caractéristiques supplémentaires

Chambres: 3
Salles de bain: 2
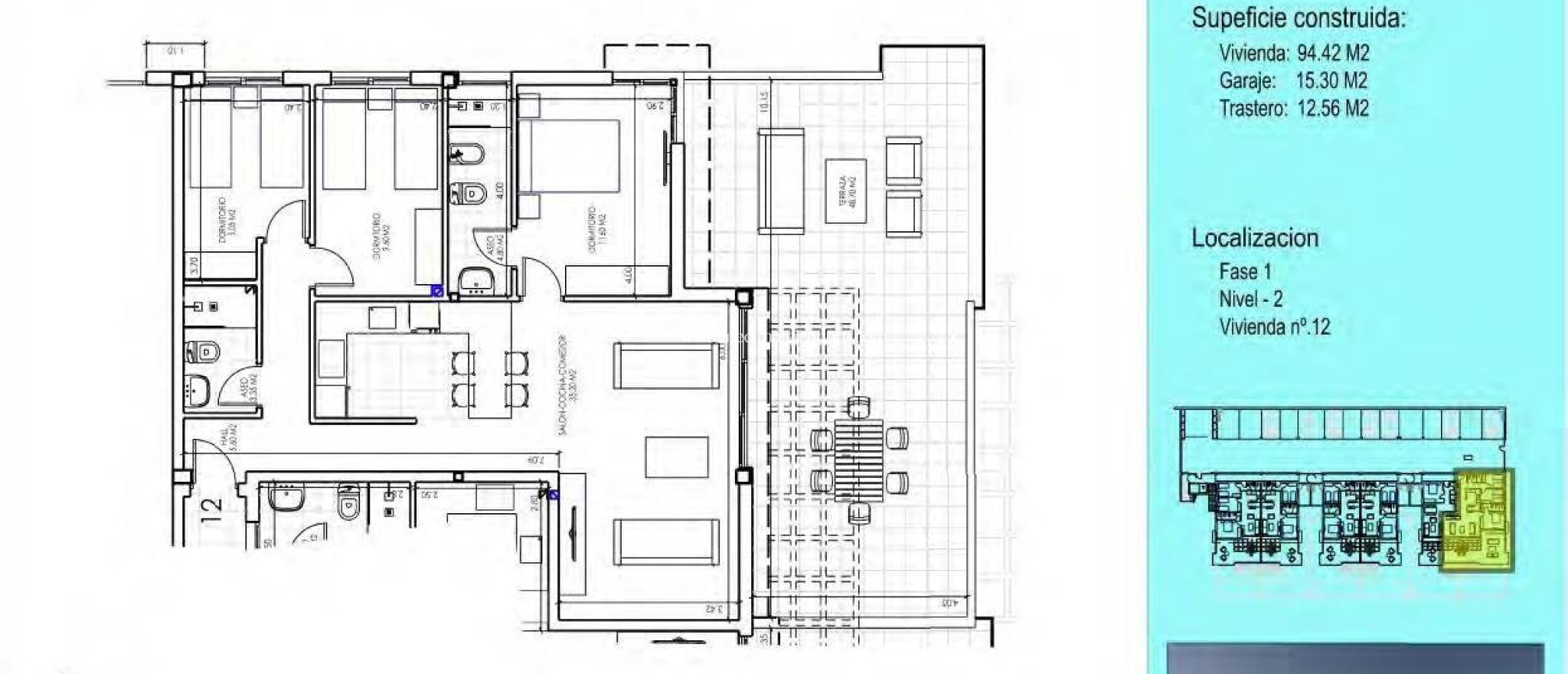
Construit: 94m2
Piscine: Oui
Location: Coastal, Urbanisation
Ascenseur
Views: Sea
Near Schools
Double Bedrooms: 3
Parking - Space
Useable Build Space: 85 Msq.
Terrace: 48 Msq.
Beach: 700 Meters
Furnished
Near Commercial Center
Stockage / Trastero
Communal Pool
Gated
Number of Parking Spaces: 1
Faire une enquête

La description

Appartements neufs avec vue sur la mer à Vera Playa, Almería Découvrez ce nouveau projet résidentiel exceptionnel à Vera Playa, proposant 27 appartements modernes dans sa première phase. Conçu pour allier confort, fonctionnalité et vues spectaculaires sur la Méditerranée, ce projet est idéal pour ceux qui recherchent une maison sur la Costa de Almería alliant style et commodité. Maisons modernes avec vue sur la mer Chaque appartement a été soigneusement conçu pour maximiser la lumière naturelle et la vie en plein air. Vous avez le choix entre des appartements de 1, 2 et 3 chambres, avec des jardins privés au rez-de-chaussée, des terrasses spacieuses aux étages intermédiaires et des penthouses avec solariums privés. Grâce à leur conception en terrasse, toutes les maisons bénéficient de terrasses découvertes avec une vue imprenable sur la mer. Finitions de qualité et maisons entièrement équipées Chaque propriété est entièrement meublée et équipée, prête à emménager. Les caractéristiques comprennent : Cuisine meublée avec appareils électroménagers inclus Salles de bains complètes avec équipements modernes Système de climatisation central Place de parking privée et débarras Installations communautaires exclusives Le point fort de ce complexe résidentiel est sa piscine commune, entourée de jardins paysagers, créant un espace idéal pour se détendre, prendre le soleil et profiter de moments en famille. Emplacement privilégié à Vera Playa Vera Playa est réputée pour ses longues plages de sable, son style de vie décontracté et ses excellentes commodités. Le complexe est situé dans un quartier calme mais bien desservi, avec un accès facile aux services et aux transports. Distances principales : Plage : 700 m Desert Springs Golf Resort : 8 km Centre-ville de Vera : 5 km Port de plaisance et restaurants de Garrucha : 6 km Parc commercial de Mojácar : 10 km Aéroport d'Almería : 85 km (environ 1 heure) Gare TGV AVE (en construction) : 3 km Une maison idéale ou une opportunité d'investissement Que vous recherchiez une résidence permanente, une maison de vacances ou un investissement sûr, ces appartements neufs à Vera Playa offrent un excellent rapport qualité-prix dans l'une des destinations côtières les plus prisées d'Almería. Faites de Vera Playa votre nouveau chez-vous et profitez d'une combinaison parfaite entre vie moderne, vue sur la mer et style de vie méditerranéen. Contactez-nous dès aujourd'hui pour organiser une visite et acquérir la propriété de vos rêves sur la Costa de Almería.

Emplacement

Contactez nous Faire une enquête

Responsable del tratamiento: Mediaterrean y Mar Eindom, SL, Finalidad del tratamiento: Gestión y control de los servicios ofrecidos a través de la página Web de Servicios inmobiliarios, Envío de información a traves de newsletter y otros, Legitimación: Por consentimiento, Destinatarios: No se cederan los datos, salvo para elaborar contabilidad, Derechos de las personas interesadas: Acceder, rectificar y suprimir los datos, solicitar la portabilidad de los mismos, oponerse altratamiento y solicitar la limitación de éste, Procedencia de los datos: El Propio interesado, Información Adicional: Puede consultarse la información adicional y detallada sobre protección de datos Aquí.

© 2026 Medimar Eiendom · All rights reserved · Mentions légales Intimité Cookies Plan du site

Design et CRM: Mediaelx

Faire une enquête WhatsApp