€2.200.000
€2.200.000
Realizar una consulta Contactar

Villa · Obra Nueva Alicante - Costa Blanca · Jávea Xàbia

€2.200.000
€2.200.000
Realizar una consulta Contactar

Características

Características adicionales

Habitaciones: 4
Baños: 4
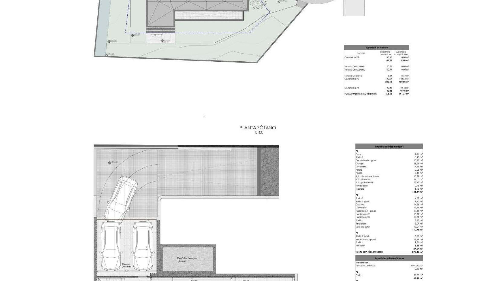
Construidos: 468m2
Parcela: 1.000m2
Piscina:
Vallado
Ubicación: Costa, Urbanización
Piscina privada
Jardín
Escuelas cerca
Habitaciones dobles: 4
Número de Plazas de Parking: 2
Playa: 3000 Metros
Sótano
Aparcamiento - Plaza
Patio
Lavandería
Espacio edificable útil: 270 m2
Cerca centro comercial
Terraza: 124 M2.
Almacenamiento / Trastero
Baño: 1
Realizar una consulta

Descripción

Villa moderna de nueva construcción con características de lujo en Jávea Vida mediterránea contemporánea en la Costa Blanca Esta impresionante villa independiente de nueva construcción en Jávea combina acabados de alta calidad, un diseño elegante y una funcionalidad óptima en tres amplias plantas. Situada en una de las localidades costeras más codiciadas de la Costa Blanca Norte, la propiedad ofrece un entorno residencial tranquilo rodeado de verdes montañas, parques naturales y hermosas playas. Jávea es famosa por sus aguas cristalinas, su gastronomía tradicional y su estilo de vida mediterráneo, lo que la convierte en un lugar ideal tanto para vivir como para invertir. Amplio sótano diseñado para la versatilidad La planta sótano está cuidadosamente diseñada para satisfacer las necesidades del estilo de vida moderno. Incluye un garaje abierto para dos coches, un cuarto de baño, un aseo de invitados, una sala de concepto abierto, una sala polivalente y un patio que aporta luz natural al espacio. Esta planta ofrece infinitas posibilidades, ya sea para un gimnasio, una sala de entretenimiento, una oficina o una suite para invitados. Elegante planta baja con espacios de estar conectados La planta baja cuenta con un luminoso salón-comedor que se integra a la perfección con la cocina totalmente equipada, creando un espacio perfecto para las reuniones familiares. El vestíbulo de entrada, el aseo de invitados y los pasillos añaden practicidad y fluidez. Esta planta incluye dos cómodos dormitorios que comparten un moderno cuarto de baño y un amplio dormitorio principal con cuarto de baño en suite, que ofrece privacidad y comodidad. Lujosa suite principal en la planta superior La planta superior está dedicada a un segundo dormitorio principal, que ofrece un refugio exclusivo con su propio cuarto de baño en suite, vestidor y pasillo. Este espacio privado garantiza comodidad y tranquilidad con hermosas vistas de los verdes paisajes circundantes. Vida al aire libre diseñada para el clima mediterráneo Las zonas exteriores de la propiedad están pensadas para disfrutar de la vida al aire libre durante todo el año. Cuenta con dos terrazas cubiertas y dos terrazas descubiertas en la planta baja. Una de las terrazas cubiertas rodea la piscina, perfecta para relajarse en verano, mientras que la terraza descubierta junto a la cocina es ideal para comer al aire libre y celebrar reuniones. Equipada con calefacción por suelo radiante y aire acondicionado por conductos, la villa garantiza el confort en todas las estaciones. Ubicación privilegiada en Jávea Playa del Arenal a 3 km Puerto y marina de Jávea a 7 km Club de golf de Jávea a 3 km Aeropuerto de Alicante a 100 km Aeropuerto de Valencia a 125 km Su hogar mediterráneo le espera Tanto si busca una residencia de lujo, una casa de vacaciones o una inversión segura a largo plazo, esta villa le ofrece un estilo de vida excepcional en Jávea. Póngase en contacto con nosotros hoy mismo para concertar una visita y descubrir su futuro hogar en la Costa Blanca.

Localización

Contacte con Nosotros Realizar una consulta

Responsable del tratamiento: Mediaterrean y Mar Eindom, SL, Finalidad del tratamiento: Gestión y control de los servicios ofrecidos a través de la página Web de Servicios inmobiliarios, Envío de información a traves de newsletter y otros, Legitimación: Por consentimiento, Destinatarios: No se cederan los datos, salvo para elaborar contabilidad, Derechos de las personas interesadas: Acceder, rectificar y suprimir los datos, solicitar la portabilidad de los mismos, oponerse altratamiento y solicitar la limitación de éste, Procedencia de los datos: El Propio interesado, Información Adicional: Puede consultarse la información adicional y detallada sobre protección de datos Aquí.

© 2026 Medimar Eiendom · All rights reserved · Nota legal Privacidad Cookies Mapa Web

Design and CRM: Mediaelx

Realizar una consulta WhatsApp