€614.000
€614.000
Realizar una consulta Contactar

Villa · Obra Nueva Alicante - Costa Blanca · Aspe

€614.000
€614.000
Realizar una consulta Contactar

Características

Características adicionales

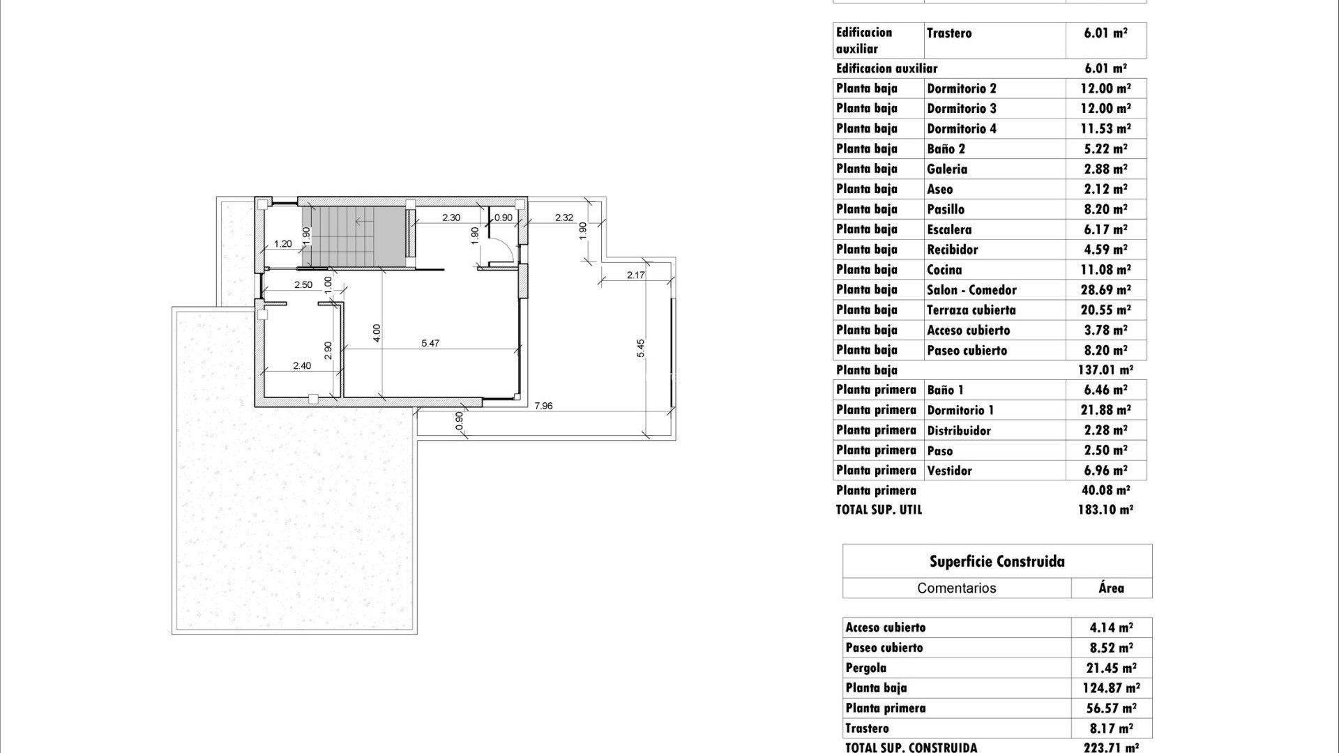
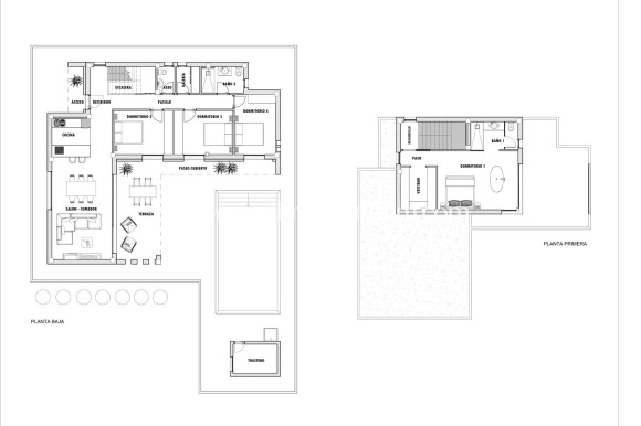
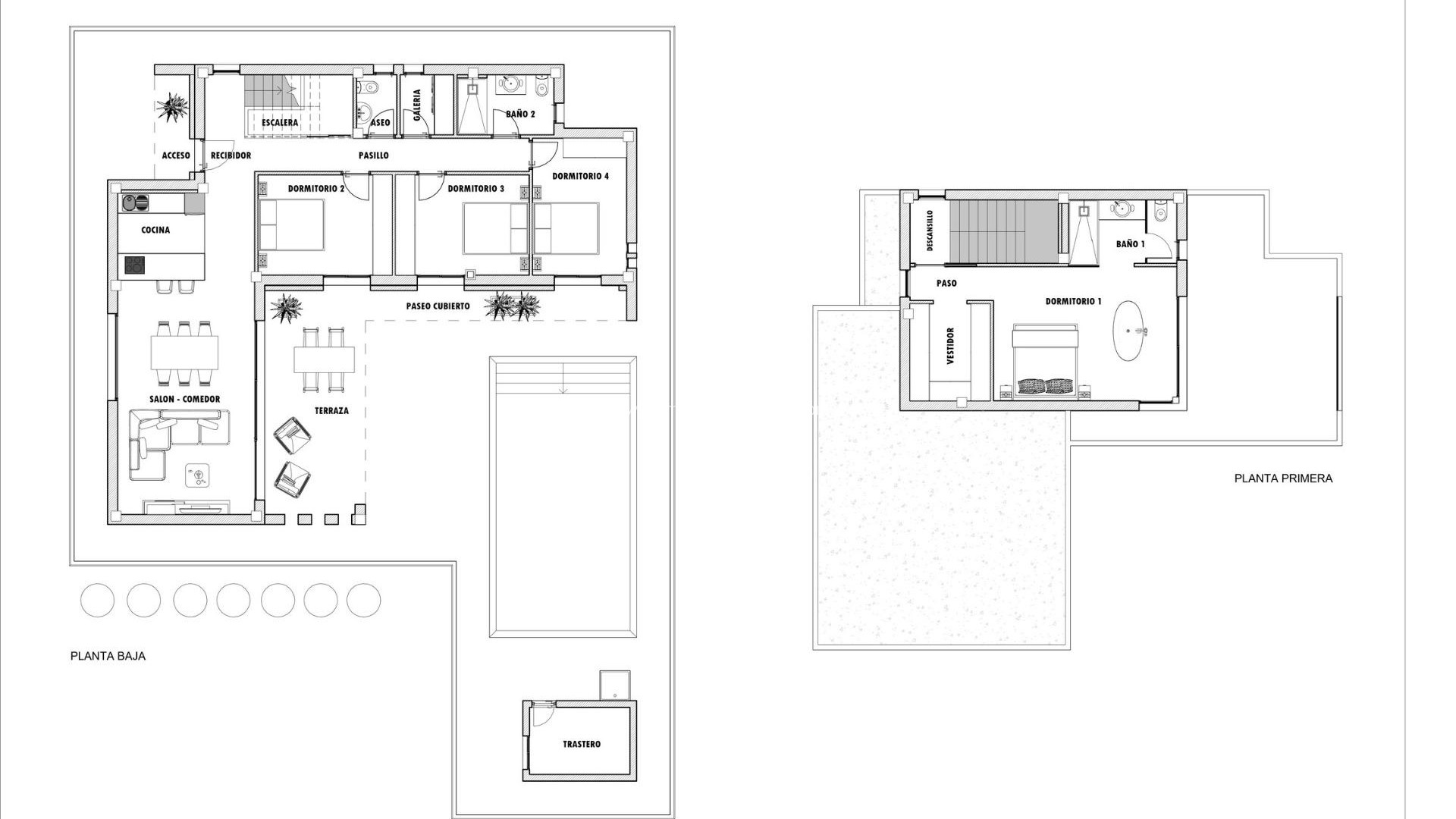
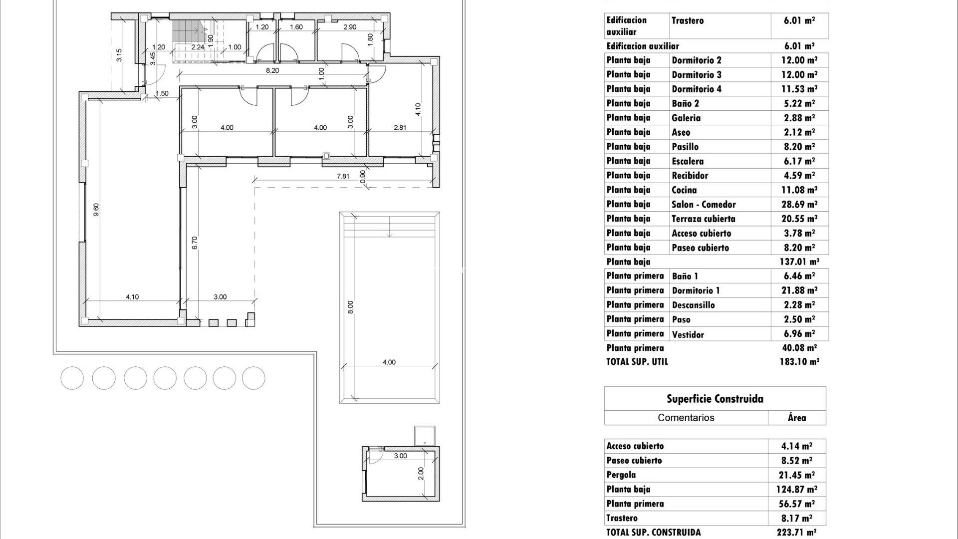
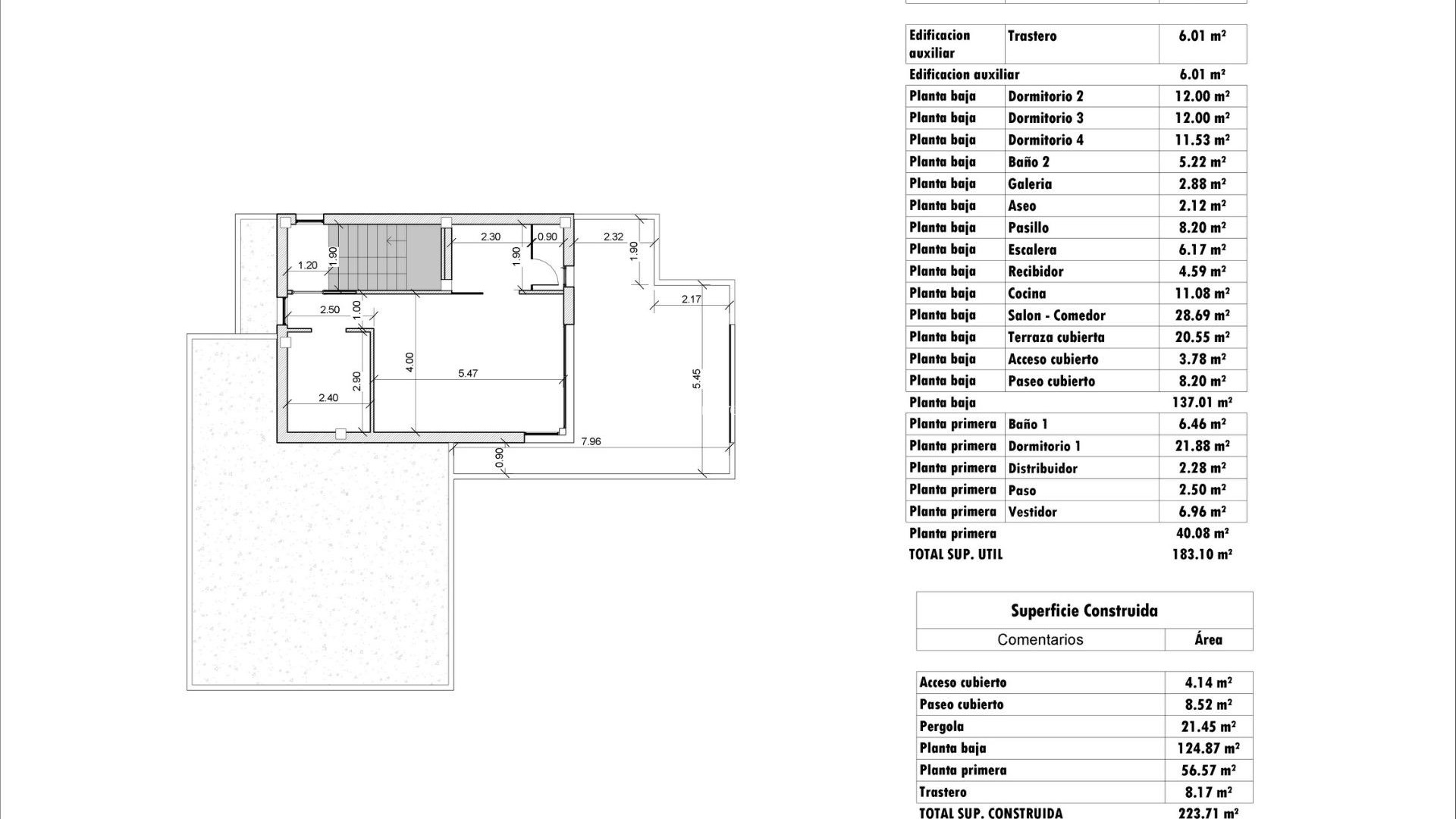
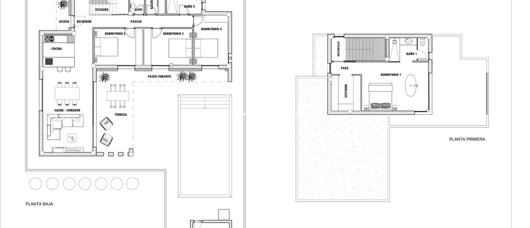
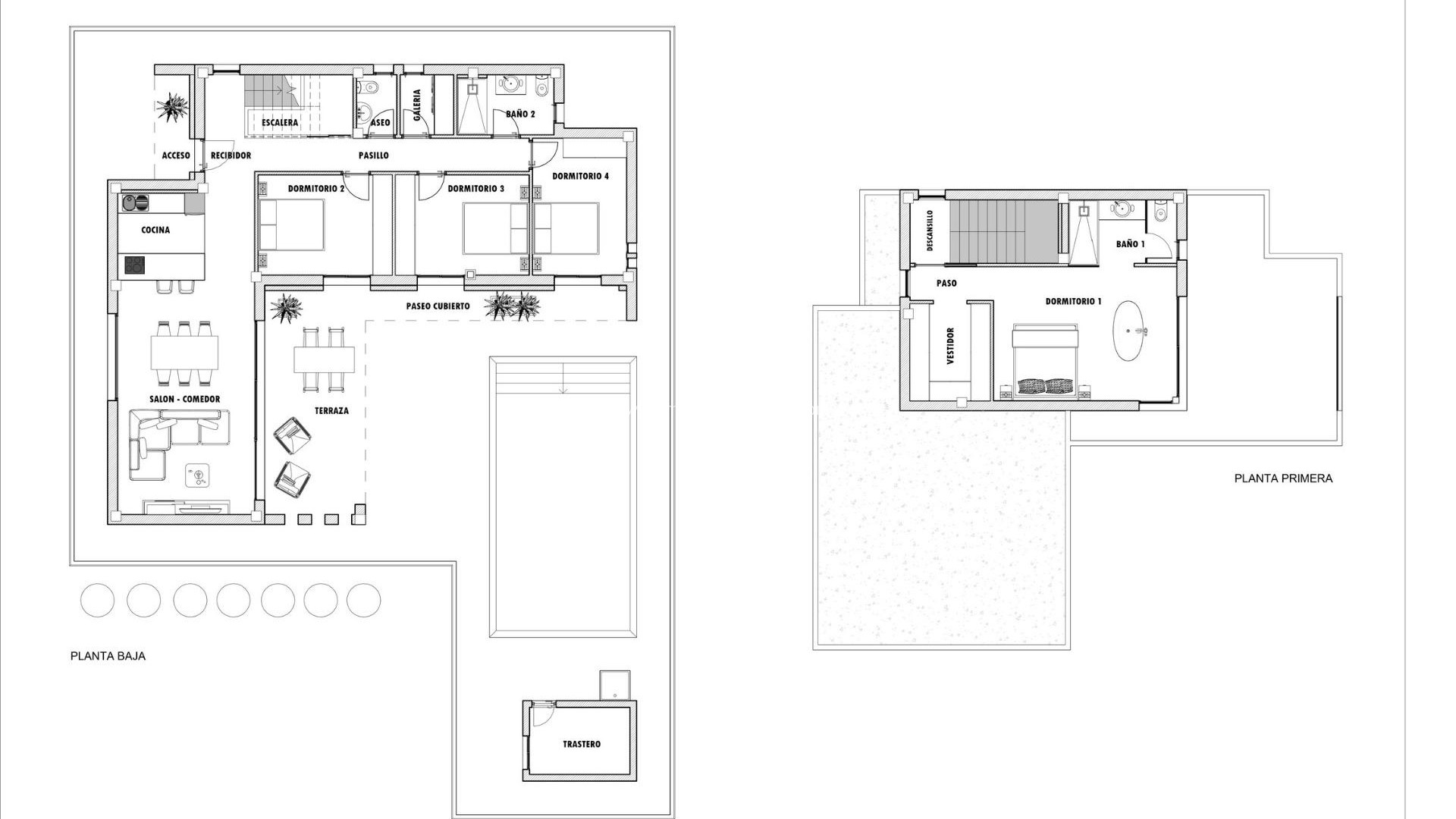
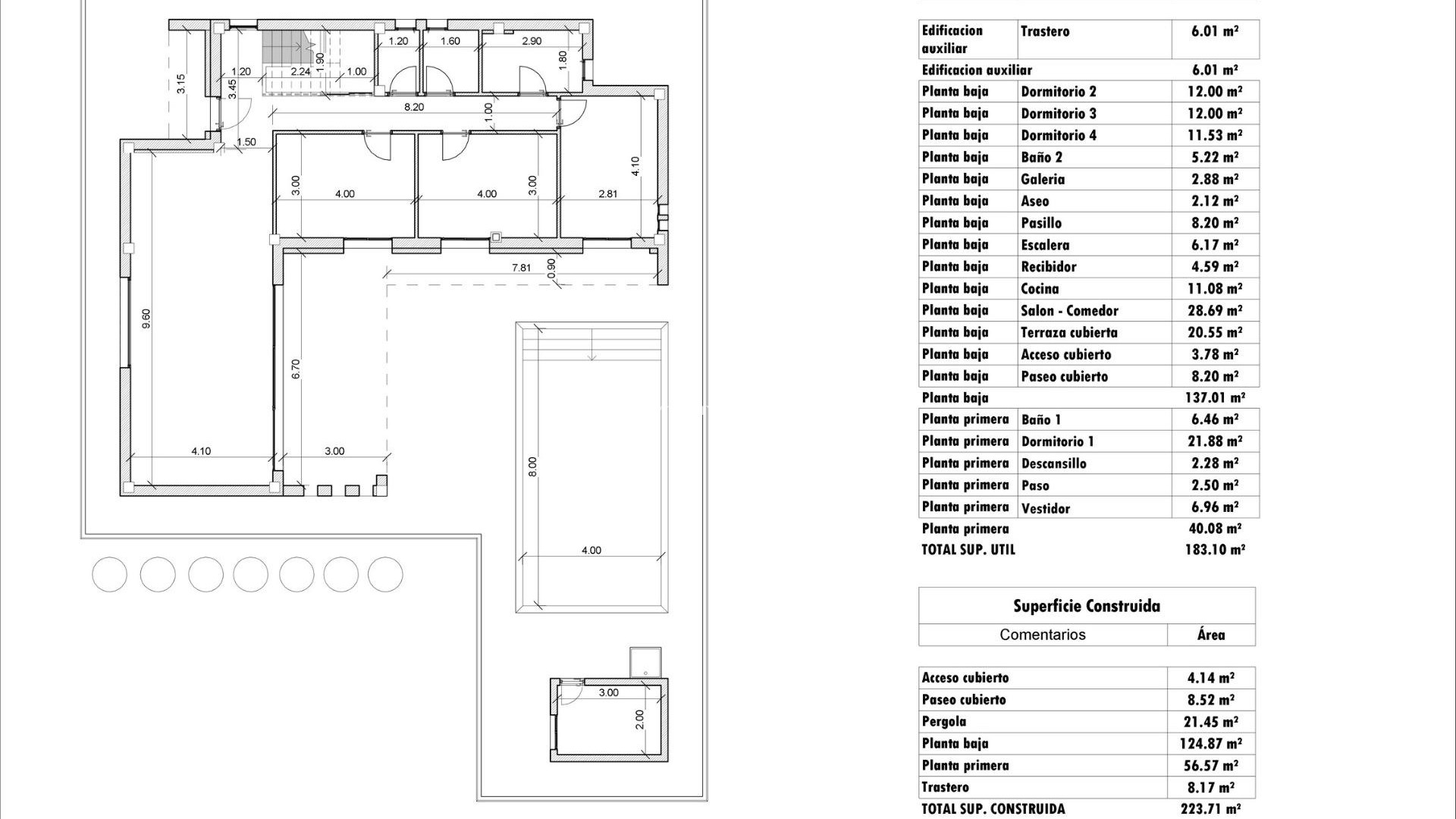
Habitaciones: 4
Baños: 3
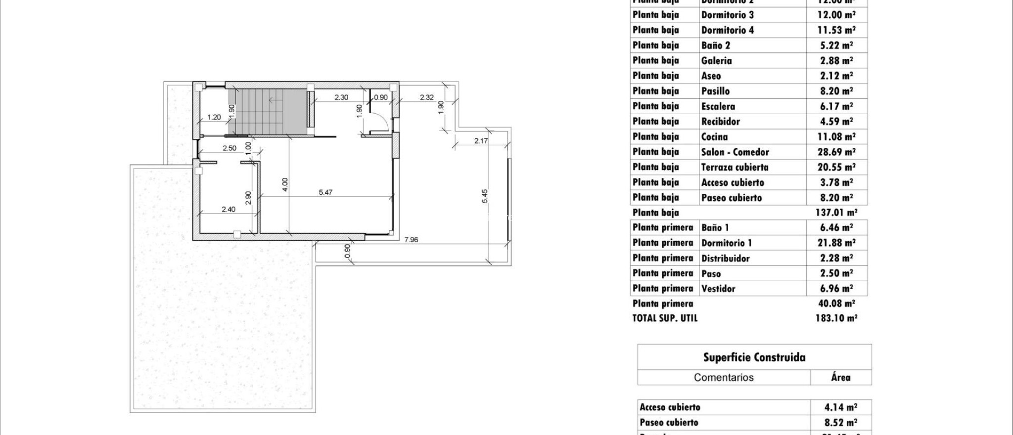
Construidos: 223m2
Parcela: 13.172m2
Piscina:
Vallado
Número de plazas de Parking: 1
Aire acondicionado preinstalado
Piscina privada
Jardín
Escuelas cerca
Habitaciones dobles: 4
Terraza: 34 m2
Aparcamiento - Plaza
Ubicación: Rural, Montaña
Playa: 25000 Metros
Superficie útil construida: 183 m2.
Almacenamiento / Trastero
Realizar una consulta

Descripción

Villas de obra nueva situadas en término de Aspe. Villas de obra nueva con varios modelos a elegir entre 2, 3 o 4 dormitorios, de una o 2 plantas y construidas con losa o con estructura: dependiendo del modelo y la parcela elegida, se calculará el precio exacto. Todas las villas se construyen en parcelas rústicas de más de 10.000 m2 de los cuales se vallarán unos 2.500 m2. Las villas disponen de cocina americana con el salón, armarios empotrados, piscina privada, porche, trastero y plaza de parking exterior. Hay varias parcelas a elegir, para el cálculo del precio se ha considerado una parcela con un precio de 77.500 eur (si se elige otra parcela, se pagará o abonará la diferencia según el precio de la misma). Realizada en régimen de auto promoción, entrega en unos 12 meses desde la concesión de la licencia. Si busca un entorno tranquilo, cerca de pueblos típicos españoles alejados de la masificación turística, rodeado de montañas, con una amplísima parcela y a unos 30 minutos del mar, esta es su casa. Aspe es un típico pueblo español con todos los servicios para el día a día, rodeado de montañas y con varios parajes naturales en las cercanías donde se pueden hacer rutas de senderismo o mountain bike. Situado a 25 km de la playa, a 9 km de Elche y a unos 20 km del aeropuerto de Alicante.

Localización

Contacte con Nosotros Realizar una consulta

Responsable del tratamiento: Mediaterrean y Mar Eindom, SL, Finalidad del tratamiento: Gestión y control de los servicios ofrecidos a través de la página Web de Servicios inmobiliarios, Envío de información a traves de newsletter y otros, Legitimación: Por consentimiento, Destinatarios: No se cederan los datos, salvo para elaborar contabilidad, Derechos de las personas interesadas: Acceder, rectificar y suprimir los datos, solicitar la portabilidad de los mismos, oponerse altratamiento y solicitar la limitación de éste, Procedencia de los datos: El Propio interesado, Información Adicional: Puede consultarse la información adicional y detallada sobre protección de datos Aquí.

© 2026 Medimar Eiendom · All rights reserved · Nota legal Privacidad Cookies Mapa Web

Design and CRM: Mediaelx

Realizar una consulta WhatsApp