€315.000
€315.000
Eine Anfrage machen Kontakt

Penthouse · Neubauten Alicante - Costa Blanca · Monforte del Cid

€315.000
€315.000
Eine Anfrage machen Kontakt

Charakteristik

Zusatzfunktionen

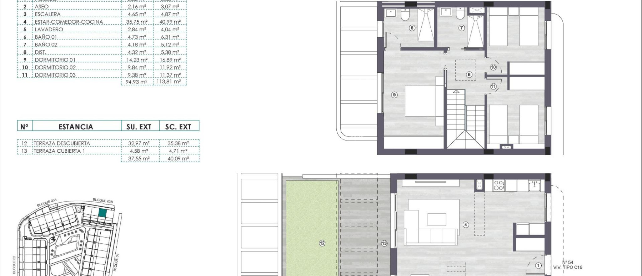
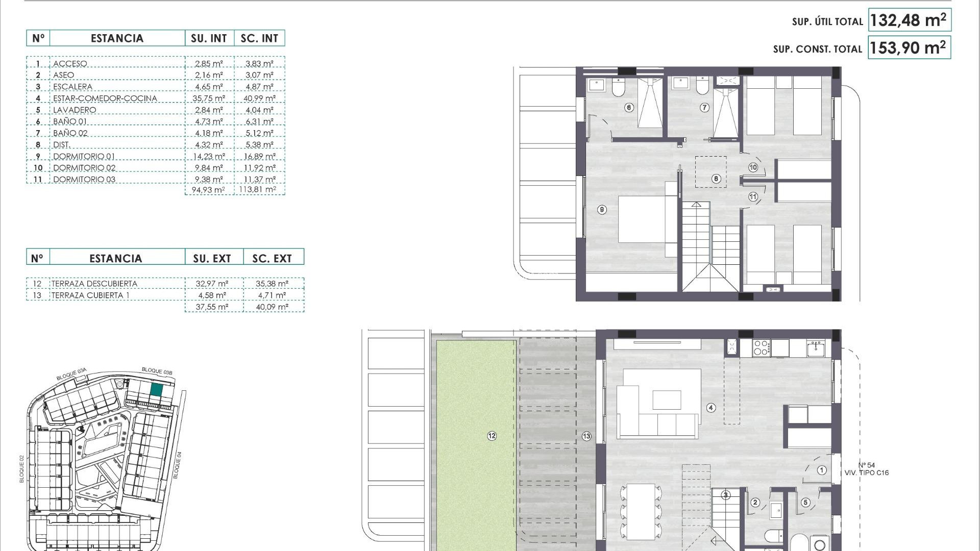
Schlafzimmer: 3
Das Badezimmer: 2
Gebaut: 113m2
Schwimmbad: Ja
Parking - Space
Terrace: 33 Msq.
Nutzbare Baufläche: 100 Msq.
Beach: 17000 Meters
Near Commercial Center
Communal Pool
Gated
Number of Parking Spaces: 1
In der Nähe von Golf / Golf-Resort Eigentum
Location: Coastal, Urbanisation
Near Schools
Double Bedrooms: 3
In der Nähe von Kinderparks
Nähe Buslinie
Eine Anfrage machen

Beschreibung

NEU GEBAUTE WOHNANLAGE IN ALENDA GOLF, ALICANTE Der Neubau einer privaten Wohnanlage mit schönen 2- und 3-Schlafzimmer-Wohnungen mit großen Terrassen und Blick auf den schönen Gemeinschaftsbereich verbindet die ruhige Gegend des Alenda-Golfplatzes mit dem lebhaften Nachtleben am Strand, das in nur 15 Minuten erreichbar ist. Alle Wohnungen verfügen über voll ausgestattete Küchen mit Glaskeramikkochfeld, Dunstabzugshaube und Backofen, Warmwasser durch aerothermische Heizung, glatte weiße Farbe an Wänden und Decken, PVC-Türen und Fenster mit Doppelverglasung. Außerdem verfügen sie über Klimaanlagen/Heizungsanlagen und komplette Einbauschränke in allen Schlafzimmern. Alle Wohnungen verfügen über einen Privatparkplatz, ein Gemeinschaftsschwimmbad für Erwachsene und Kinder und einen Mehrzweckraum. Die Erdgeschosswohnungen haben einen privaten Garten, während die Duplexwohnungen über große Terrassen verfügen. Die Terrassen eignen sich perfekt, um den ganzen Tag über zu speisen. Sie sind entweder von der spektakulären Sierra de las Aguilas umgeben oder bieten einen atemberaubenden Blick auf den Golfplatz. Enthält: Tiefgarage, Außenparkplatz, Abstellraum, Gemeinschaftspool, Aufzug, Gemeinschaftsgarten, Privatgarten, Klimaanlage, Heizung, Aerothermie, Solarthermiepaneele, LED-Strahler, doppelt verglaste Fenster, Vorinstallation für Elektrofahrzeug. Energieausweis: A. Das historische Dorf Monforte del Cid befindet sich ebenfalls in der Nähe und bietet eine Auswahl an lokalen Annehmlichkeiten. In der Anlage Alenda Golf stehen den Bewohnern ein kleiner Supermarkt, ein Restaurant und eine Bar, ein Clubhaus, ein Fitnesscenter und Paddle-Tennisplätze zur Verfügung. Dank der erstklassigen Lage sind die goldenen Strände von Alicante, der Flughafen von Alicante und die Stadt Elche nur 15 Minuten entfernt. Dank des ganzjährig angenehmen Klimas und der hervorragenden Einrichtungen ist die Costa Blanca ein ideales Gebiet, um nicht nur Golf zu spielen, sondern auch um in eine Golfimmobilie zu investieren. Es gibt mehr als 15 Golfplätze in der Nähe, wie z. B. den El Patio Golf Club, der nur 3 km von Alicante entfernt ist und von Severiano Ballesteros entworfen wurde, und den Font del Llop Golf Club in der Nähe von Alenda. Der Alenda Golf Club ist ein 18-Loch-Platz mit einem separaten Pitch & Putt.

Ort

Kontaktiere uns Eine Anfrage machen

Responsable del tratamiento: Mediaterrean y Mar Eindom, SL, Finalidad del tratamiento: Gestión y control de los servicios ofrecidos a través de la página Web de Servicios inmobiliarios, Envío de información a traves de newsletter y otros, Legitimación: Por consentimiento, Destinatarios: No se cederan los datos, salvo para elaborar contabilidad, Derechos de las personas interesadas: Acceder, rectificar y suprimir los datos, solicitar la portabilidad de los mismos, oponerse altratamiento y solicitar la limitación de éste, Procedencia de los datos: El Propio interesado, Información Adicional: Puede consultarse la información adicional y detallada sobre protección de datos Aquí.

© 2026 Medimar Eiendom · All rights reserved · Rechtlicher Hinweis Privatsphäre Cookies Web-Karte

Design and CRM: Mediaelx

Eine Anfrage machen WhatsApp